**Standout Features:**
- Grade II listed building with rich historical character
- Approx. 6 acres of communal gardens ideal for outdoor enjoyment
- Spacious, light-filled rooms with high ceilings and sash windows
- Two allocated parking spaces
- Chain-free sale with a 975-year lease remaining
- Large fitted kitchen with family dining space
- Two generous double bedrooms with built-in storage
**Property Summary:**
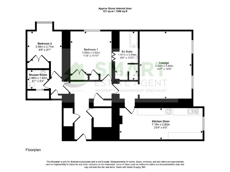
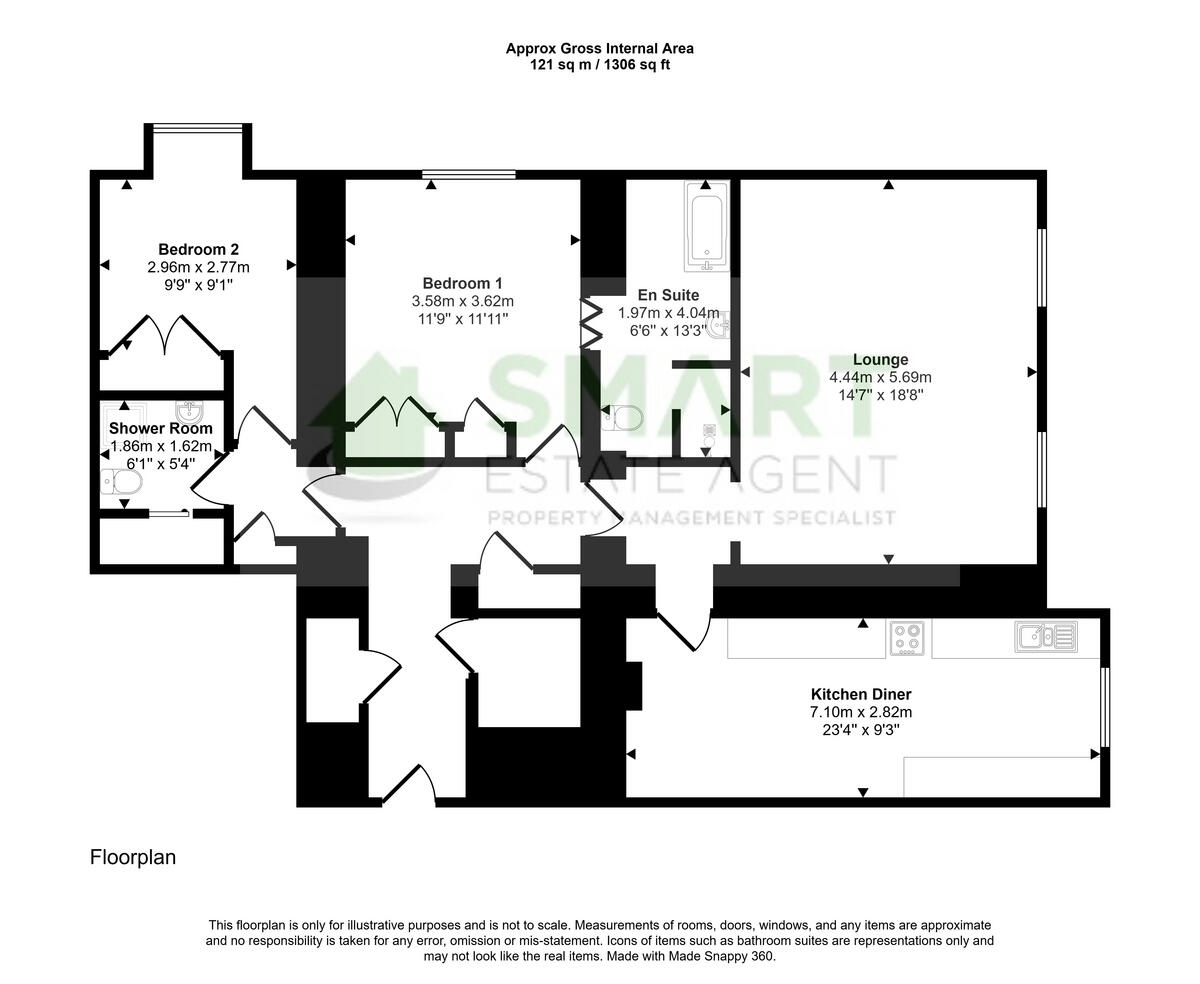
Nestled in the picturesque village of Farringdon, this magnificent Grade II listed apartment offers an exceptional blend of character and comfort. With over 1300 square feet of remarkably spacious living areas, including a light and airy living room with large sash windows, ample storage throughout, and a fully equipped kitchen perfect for family gatherings, this property is truly a gem.
You’ll benefit from two sizable double bedrooms, each featuring clever integrated storage, ensuring functionality without compromising style. The ensuite and family bathroom offer modern conveniences, while the electric storage heating maintains cozy warmth. Outside, revel in approximately 6 acres of stunning communal gardens—a rare find that promises an inviting space for community interactions and tranquil escapes.
Although listed status may introduce some limitations on alterations, the potential for personalization within this home remains vast, allowing you to infuse your unique style while enjoying the historic charm. This property is primed for families seeking roomy living in an affable countryside setting and presents a compelling opportunity for first-time buyers or investors focused on the charm of rural life with amenities nearby. Don’t miss out on this extraordinary offering; seize the chance to make this enchanting retreat your own!
2 bedroom apartment for sale in Farringdon, Exeter, EX5 — £280,000 • 2 bed • 1 bath • 1045 ft²
4 bedroom terraced house for sale in Farringdon Court, Exeter, EX5 — £875,000 • 4 bed • 2 bath • 3614 ft²
2 bedroom terraced house for sale in Farringdon Court, Farringdon, Exeter, Devon, EX5 — £350,000 • 2 bed • 2 bath • 1057 ft²
3 bedroom semi-detached house for sale in Farringdon, Devon, EX5 — £450,000 • 3 bed • 2 bath • 1529 ft²
2 bedroom maisonette for sale in Bracken Court, The Drive, Farringdon, EX5 — £210,000 • 2 bed • 1 bath • 654 ft²
4 bedroom detached house for sale in Withen Lane, Farringdon, EX5 — £650,000 • 4 bed • 2 bath • 2140 ft²


























































