Spacious high‑spec house with landscaped garden and strong transport links.
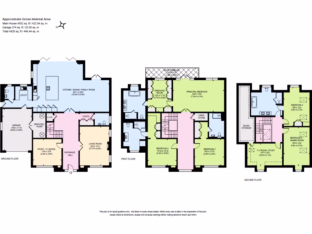
Extremely large 4,826 sq ft family home over multiple floors
This impressive Neo‑Georgian detached home delivers over 4,800 sq ft of family-focused living on approximately 0.3 acres. The house is newly built and recently renovated to a high specification, with generous reception rooms, a fitted kitchen, principal suite with roof terrace, and extensive built‑in technology including home automation, SONOS, CCTV and mood lighting.
Designed for comfortable daily life and large‑scale entertaining, the property combines traditional proportions with modern environmental features — photovoltaic panels, air conditioning and an air‑source heat pump — plus vehicle electric charging points and an integral garage. The rear garden is landscaped with an Indian sandstone terrace and level lawn, ideal for children and outdoor entertaining.
Situated on the prestigious Wentworth Estate, the location offers exceptional local schools, world‑class golf and leisure facilities, easy access to Virginia Water station (approximately 0.3 miles) and straightforward road links to the M25 and Heathrow. The home is sold freehold and comes with a 10‑year build warranty for added peace of mind.
Practical considerations include an average local crime level, a notable service charge (approximately £1,400 average), and very expensive council tax. The generous plot and high‑spec finishes will require ongoing maintenance and running costs to match the property’s scale and specification.
6 bedroom detached house for sale in Virginia Avenue, Virginia Water, GU25 — £7,950,000 • 6 bed • 6 bath • 11000 ft²
6 bedroom detached house for sale in Gorse Hill Road, Virginia Water, GU25 — £7,900,000 • 6 bed • 6 bath • 12820 ft²
9 bedroom detached house for sale in 1 Abbots Drive, Virginia Water, GU25 — £3,250,000 • 9 bed • 9 bath • 5174 ft²
5 bedroom detached house for sale in Pipers End, Wentworth, Virginia Water, Surrey, GU25 — £2,850,000 • 5 bed • 5 bath • 5733 ft²
5 bedroom detached house for sale in Wellington Avenue, Virginia Water, Surrey, GU25 — £1,895,000 • 5 bed • 4 bath • 3600 ft²
6 bedroom detached house for sale in Wentworth Estate, GU25 — £3,950,000 • 6 bed • 4 bath • 4064 ft²






















































































































































































































