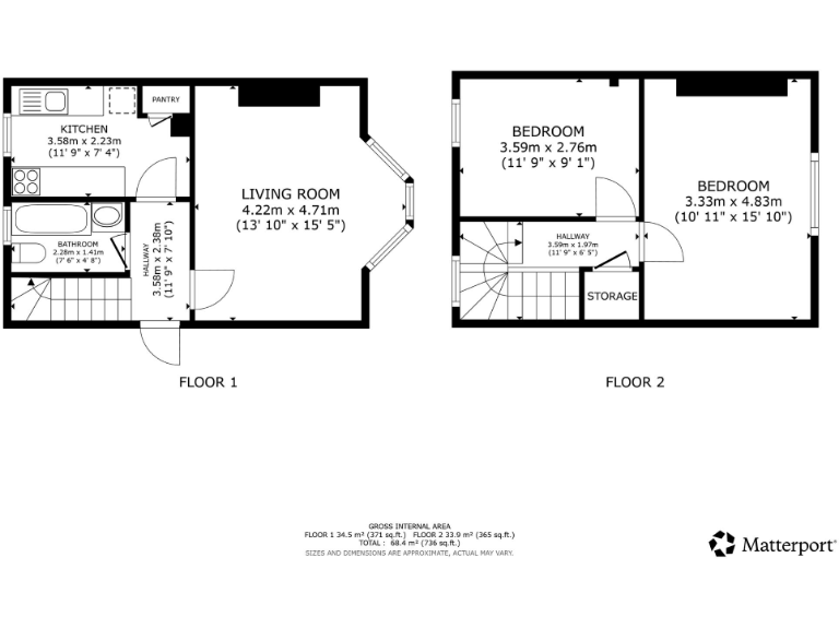
Two-bedroom semi with large garden and renovation potential in well-connected Knightswood..
Bay-windowed living room with natural light
Large rear garden with mature trees and lawn
Driveway provides off-street parking
Visible damp patches and mould present in living room
Exterior and curb appeal need maintenance and clearance
Requires internal refurbishment and cosmetic updating
EPC rating D — potential running cost considerations
Fast broadband and excellent mobile signal
This two-bedroom semi-detached villa on Locksley Avenue offers an affordable entry to Knightswood with spacious rooms over two levels and a large rear garden. The bay-windowed living room and two generous bedrooms suit a young family or first-time buyer seeking immediate space and outdoor area. The property sits in a well-connected residential area with good public transport and road links to the West End and city centre.
The house requires visible repair and updating: exterior maintenance is needed, the garden is overgrown, and internal damp patches and mould are present in the living room. Energy performance sits at EPC D. These issues mean the home is best for buyers willing to complete refurbishment rather than move-in-ready occupants.
Practical positives include fast broadband, excellent mobile signal, a driveway, and a sizable plot with mature trees in the back garden. Council tax is moderate and flooding risk is low. With renovation, the property has clear potential to increase comfort and value for an owner-occupier or small-scale investor prepared to manage works.
2 bedroom house for sale in Archerhill Road, Knightswood, Glasgow, G13 3YZ, G13 — £129,000 • 2 bed • 1 bath • 775 ft²
3 bedroom semi-detached house for sale in Alderman Road, Knightswood, Glasgow, G13 3YF, G13 — £185,000 • 3 bed • 1 bath • 1033 ft²
2 bedroom semi-detached house for sale in 10 Kirkton Avenue, Glasgow, Glasgow City, G13 — £170,000 • 2 bed • 2 bath • 701 ft²
2 bedroom end of terrace house for sale in Kintillo Drive, Scotstounhill, Glasgow, G13 — £170,000 • 2 bed • 1 bath
3 bedroom semi-detached house for sale in 243 Rotherwood Avenue, Glasgow, Glasgow City, G13 — £199,000 • 3 bed • 1 bath • 805 ft²
2 bedroom flat for sale in Boreland Drive, Knightswood, Glasgow, G13 3TR, G13 — £125,000 • 2 bed • 1 bath • 753 ft²


























































