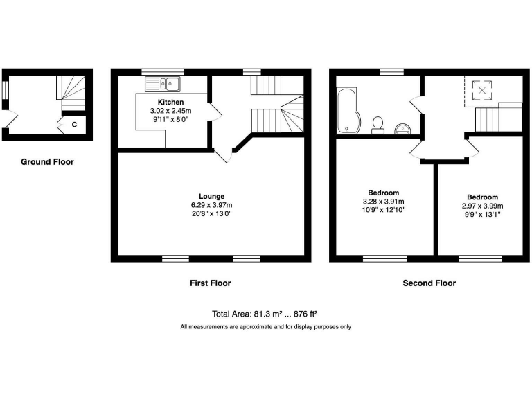
**Standout Features:**
- Two spacious double bedrooms
- Large lounge/dining room with wooden flooring
- Modern kitchen with breakfast bar
- Low maintenance gravelled garden area
- Off-street parking for one vehicle
- Separate entrance via a private courtyard
**Potential Concerns:**
- Average property size
- Limited external views
- Nearby schools with mixed Ofsted ratings
Discover modern city living in this charming mews property located in the vibrant heart of Ripon. Offering two generously sized double bedrooms, this multi-story townhome spans over three floors, with an inviting lounge/dining area perfect for entertaining, and a stylish kitchen featuring a breakfast bar for casual dining. Natural light floods the living spaces thanks to large windows, creating a warm and inviting atmosphere.
The exterior boasts a low-maintenance gravelled area and off-street parking, an added convenience in city center living. While the property size is average for the area, it retains character with double-glazed sash-style windows, and its location provides easy access to local amenities and transport options.
Ideal for families or investors alike, this home provides an opportunity for comfortable living with renovation potential. However, nearby schools have mixed ratings, which may be a consideration for families. With its unique features and prime location, this property is a must-see—act quickly to make it yours!
3 bedroom semi-detached house for sale in Wellington Mews, Ripon, HG4 — £200,000 • 3 bed • 1 bath • 866 ft²
3 bedroom house for sale in Florentines Court, Ripon, HG4 — £220,000 • 3 bed • 2 bath • 951 ft²
2 bedroom terraced house for sale in Brewster Terrace, Ripon, HG4 — £200,000 • 2 bed • 1 bath • 722 ft²
2 bedroom terraced house for sale in Allhallowgate, Ripon, HG4 — £230,000 • 2 bed • 1 bath • 706 ft²
2 bedroom terraced house for sale in Court Terrace, Ripon, HG4 — £189,950 • 2 bed • 1 bath • 668 ft²
4 bedroom terraced house for sale in Low Skellgate, Ripon, HG4 — £295,000 • 4 bed • 3 bath • 2078 ft²










































