Three-bedroom family home with gardens on a corner plot near town amenities.
Highly desired private road location
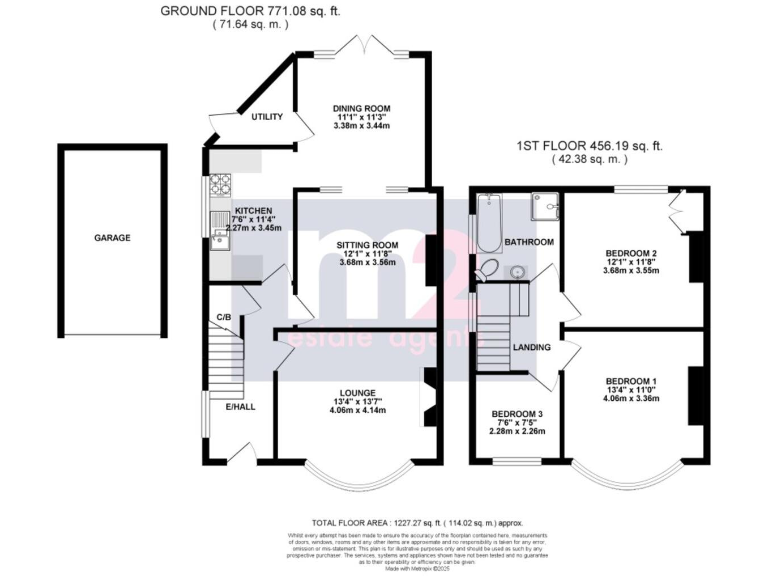
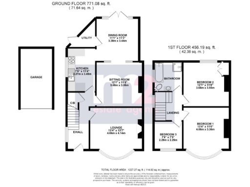
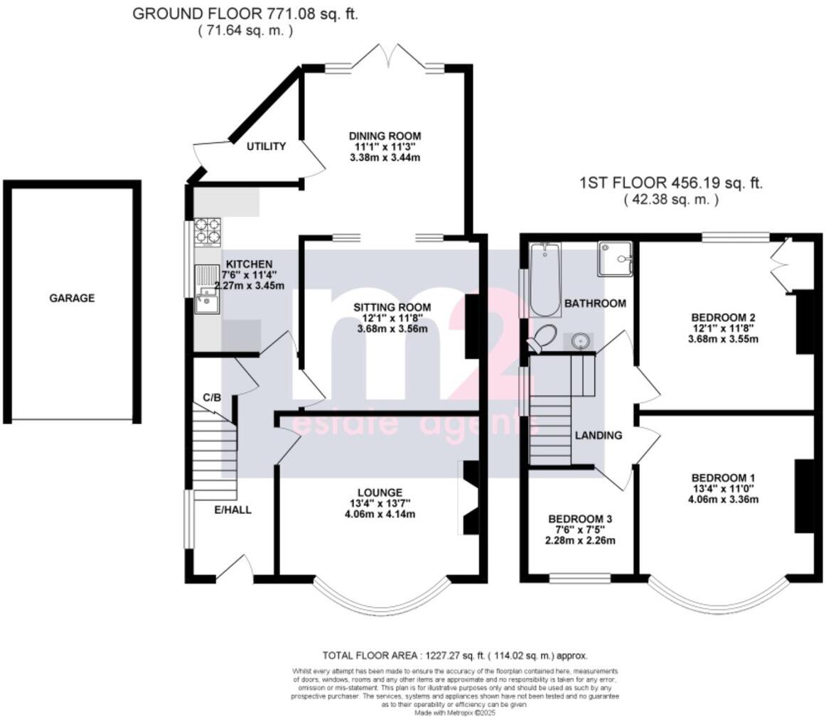
Set on a highly desired private road in the heart of Usk, this extended 1930s semi-detached house sits on a prominent corner plot with lawned front and side gardens. The home blends period character — a bay-fronted lounge, panelled staircase and log burner — with practical family living across an entrance hall, two reception rooms and a dining-room extension with French doors to a sunny patio.
The kitchen has fitted units with a gas hob and oven, and a useful utility room sits to the side. Upstairs are three bedrooms served by a fully tiled four-piece bathroom with separate shower and corner WC. A garage in a nearby block provides parking or storage, and the property is within walking distance of local shops, schools and riverside walks.
Buyers should be aware of a few practical points: the double glazing was installed before 2002 and may be due for upgrade, council tax is high, and the wider area records pockets of deprivation. Overall the house offers comfortable family accommodation with scope to modernise and add value while enjoying a central Usk location and attractive period features.
This is a solid choice for families seeking character, outdoor space and convenience to amenities, with clear potential for improvement to suit modern tastes.
5 bedroom semi-detached house for sale in The Meadows, Usk, NP15 — £385,000 • 5 bed • 2 bath • 1669 ft²
3 bedroom end of terrace house for sale in Ty Brith Gardens, Usk, NP15 — £335,000 • 3 bed • 1 bath • 1121 ft²
2 bedroom semi-detached house for sale in Castle Street, Usk, Monmouthshire, NP15 — £450,000 • 2 bed • 1 bath • 1400 ft²
4 bedroom terraced house for sale in New Market Street, Usk, NP15 — £650,000 • 4 bed • 2 bath • 1777 ft²
3 bedroom semi-detached house for sale in Alexandra Place, Monkswood, Usk, NP15 — £375,000 • 3 bed • 2 bath • 1021 ft²
2 bedroom end of terrace house for sale in New Market Street, Usk, NP15 — £350,000 • 2 bed • 1 bath • 842 ft²






























































