Chain-free 3-bed home with garage, garden and good local schools..
Chain-free three-bedroom semi-detached house
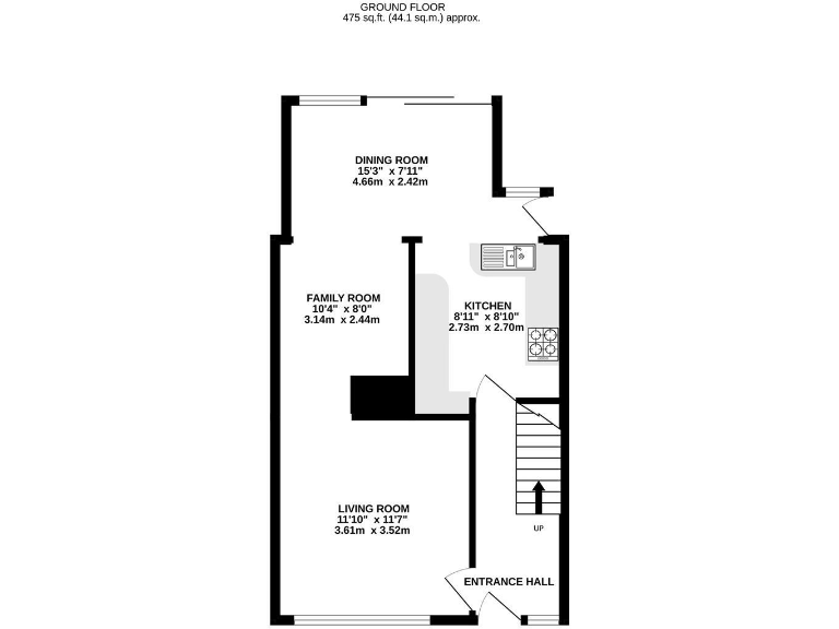
This well-presented three-bedroom semi-detached house in Hucclecote offers a practical family layout in a quiet, established suburb. The ground floor includes versatile reception rooms and a dining area opening onto a private, well-stocked garden — ideal for children or weekend entertaining. Chain-free sale and off-street parking with a single garage add convenience for family life.
The accommodation is light and comfortable throughout, with recent updates including a newly fitted shower room and modern kitchen appliances. The property sits in a popular area close to good primary and secondary schools, local shops, and transport links including easy access to the M5 and Gloucester station.
Buyers should note the property uses electric storage heating and the cavity walls are assumed uninsulated — these factors could mean higher running costs and potential improvement work to upgrade thermal performance. There is just one shower room on the first floor, which may be a consideration for larger households.
Overall this home suits growing families seeking a ready-to-move-into house in a quiet, well-connected neighbourhood with straightforward potential to improve energy efficiency and add value over time.
3 bedroom semi-detached house for sale in Elmgrove Road, Hucclecote, Gloucester, GL3 — £300,000 • 3 bed • 1 bath • 1228 ft²
3 bedroom semi-detached house for sale in Barrington Drive, Hucclecote, GL3 — £285,000 • 3 bed • 1 bath • 1085 ft²
3 bedroom semi-detached house for sale in Gilpin Avenue, Hucclecote, Gloucester, Gloucestershire, GL3 — £280,000 • 3 bed • 2 bath • 1004 ft²
3 bedroom semi-detached house for sale in Barrington Drive, Hucclecote, GL3 — £295,000 • 3 bed • 1 bath • 797 ft²
3 bedroom semi-detached house for sale in Dinglewell, Hucclecote, Gloucester, GL3 — £375,000 • 3 bed • 1 bath • 1100 ft²
3 bedroom semi-detached house for sale in Linden Road, Gloucester, GL1 — £275,000 • 3 bed • 1 bath • 1174 ft²










































































