Affordable starter home with garden and strong connectivity.
Chain-free three-bedroom Victorian terrace with private rear garden
A compact three-bedroom Victorian terrace offering a practical starter home in Fleetwood. The house blends original character with a contemporary kitchen and a small enclosed rear garden, giving immediate liveability for a first purchase. Chain-free sale reduces delay and provides a straightforward route to move in or rent out.
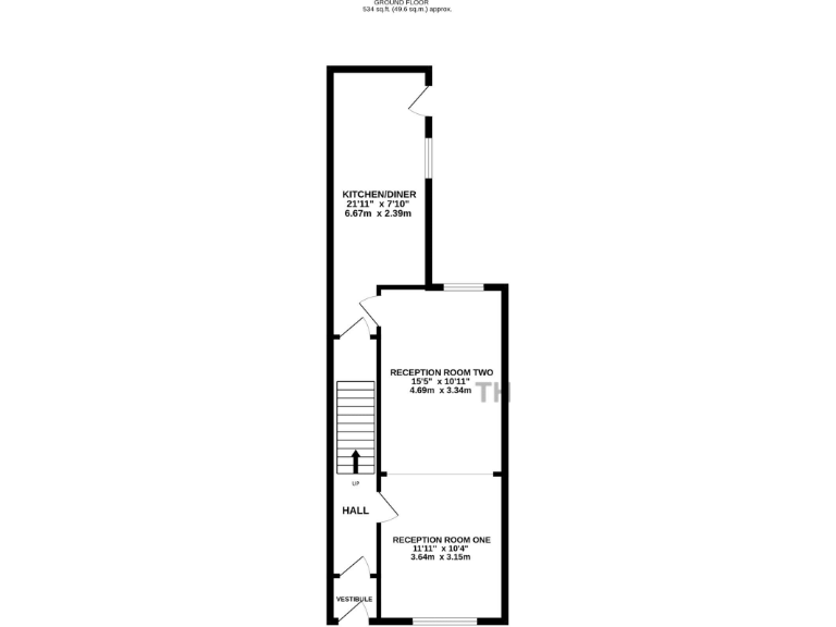
Internally the layout is linear and efficiently arranged across two floors with a cellar for useful storage or conversion subject to consent. Rooms are modest in scale (total approx. 534 sq ft) so the property suits buyers seeking affordable, manageable accommodation rather than generous space.
Location is convenient for local shops, schools and the seafront, and connectivity is strong with excellent mobile signal and fast broadband. Be aware the area scores highly for deprivation and recorded crime is high; this will be a material consideration for some buyers and may affect future resale or rental demand.
Important buyer notes: the purchase process advised by the seller includes an exclusivity fee of £2,000 (refundable on completion) and a £200 processing fee to secure exclusivity. Purchasers should also satisfy themselves about the property’s condition, services and any renovation or conversion works before committing.
3 bedroom terraced house for sale in Harris Street, Fleetwood, FY7 — £130,000 • 3 bed • 1 bath • 1294 ft²
3 bedroom terraced house for sale in Seabank Road, Fleetwood, FY7 — £140,000 • 3 bed • 1 bath • 927 ft²
3 bedroom terraced house for sale in Fleetwood Road, Fleetwood, FY7 — £140,000 • 3 bed • 1 bath • 1110 ft²
3 bedroom terraced house for sale in Gordon Road, Fleetwood, FY7 — £85,000 • 3 bed • 1 bath • 832 ft²
3 bedroom terraced house for sale in Borrowdale Avenue, Fleetwood, FY7 — £142,500 • 3 bed • 1 bath • 1009 ft²
3 bedroom terraced house for sale in Blakiston Street, Fleetwood, FY7 — £120,000 • 3 bed • 1 bath • 1478 ft²


























































































































