Modernised family home near shops and rail links, with garden and basement.
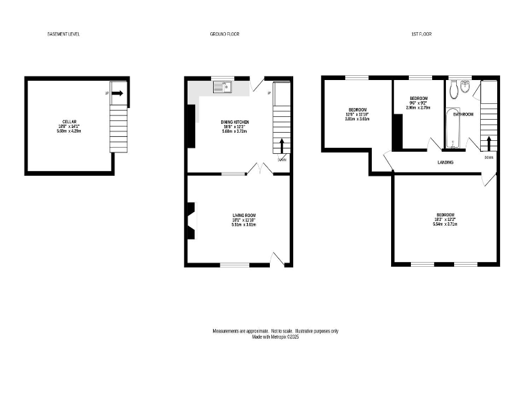
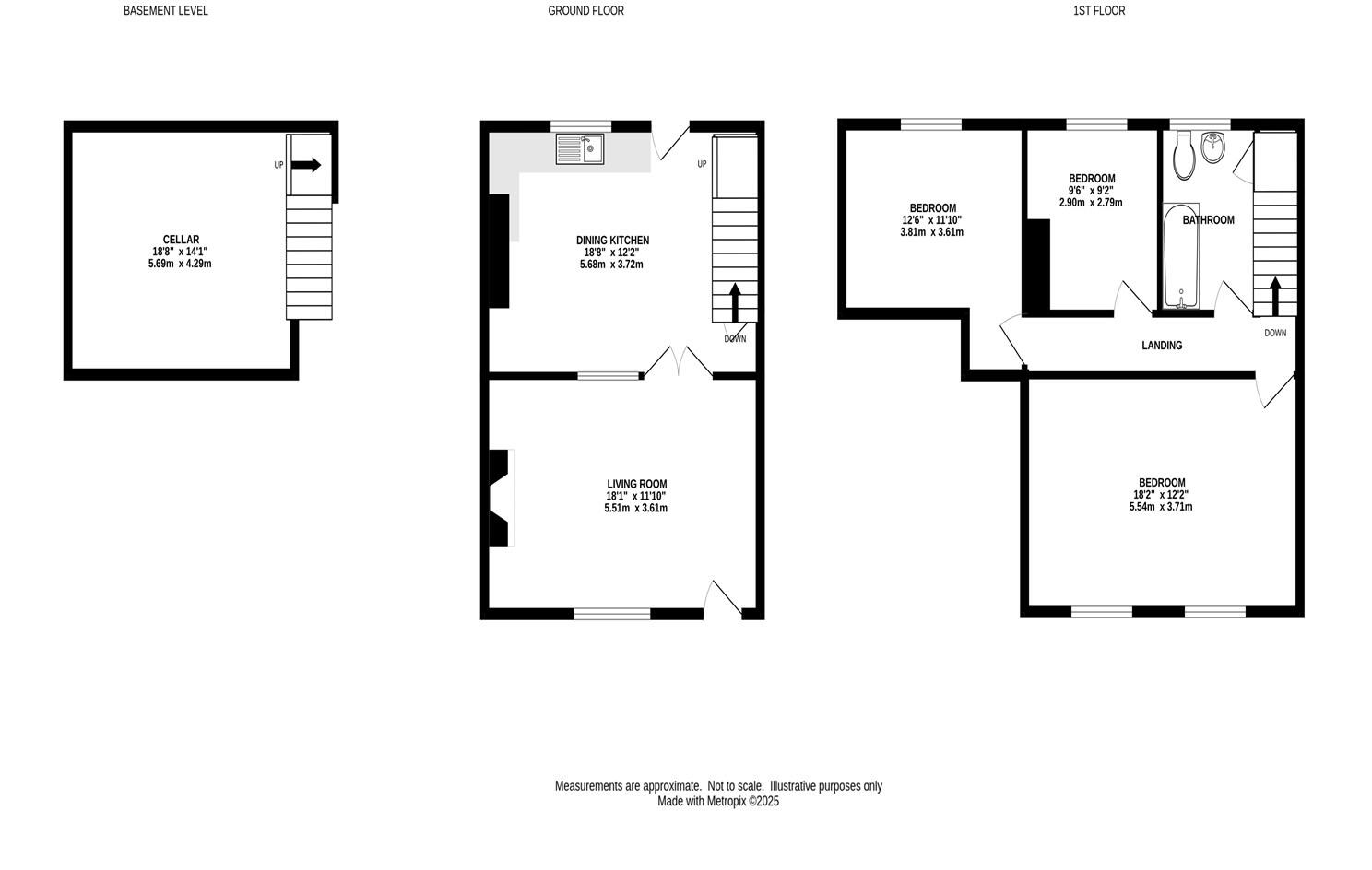
Spacious mid-terrace Victorian house with three double bedrooms
This recently modernised mid-terrace Victorian home offers genuinely spacious family accommodation over two floors, plus a useful basement. The property is presented well throughout with a fitted dining kitchen, sitting room with feature fireplace and three double bedrooms— the main bedroom extends to over 18ft. An enclosed rear garden enjoys an open aspect across neighbouring green space.
Set in the heart of Disley village, the house is minutes from local shops, cafés and frequent rail links into Manchester, making daily commuting straightforward. Local primary schools are rated Good, supporting family life and schooling choices. Gas central heating and double glazing are in place.
Buyers should note a few practical considerations: the property has a single family bathroom, the third bedroom involves a flying freehold above the neighbouring kitchen, and walls are original solid brick which may benefit from insulation improvements for comfort and efficiency. Broadband speeds are reported as slow in the area.
For families seeking a ready-to-move-in period home with scope to tailor thermal performance and connectivity, this Disley terrace combines village convenience with flexible living space and pleasant rear views. A viewing will best reveal the accommodation and garden aspect.
2 bedroom end of terrace house for sale in Buxton Road, Disley, SK12 — £255,000 • 2 bed • 2 bath • 829 ft²
3 bedroom end of terrace house for sale in Hollinwood Road, Disley, Stockport, SK12 — £325,000 • 3 bed • 1 bath • 797 ft²
2 bedroom terraced house for sale in Buxton Road, Disley, Stockport, SK12 — £175,000 • 2 bed • 1 bath • 487 ft²
2 bedroom end of terrace house for sale in Buxton Road, Disley, Stockport, Cheshire, SK12 — £225,000 • 2 bed • 1 bath • 979 ft²
2 bedroom terraced house for sale in Buxton Road, Disley, Stockport, SK12 — £210,000 • 2 bed • 1 bath • 634 ft²
2 bedroom terraced house for sale in Duddy Road, Disley, Stockport, SK12 2GD, SK12 — £265,000 • 2 bed • 1 bath • 602 ft²






























































