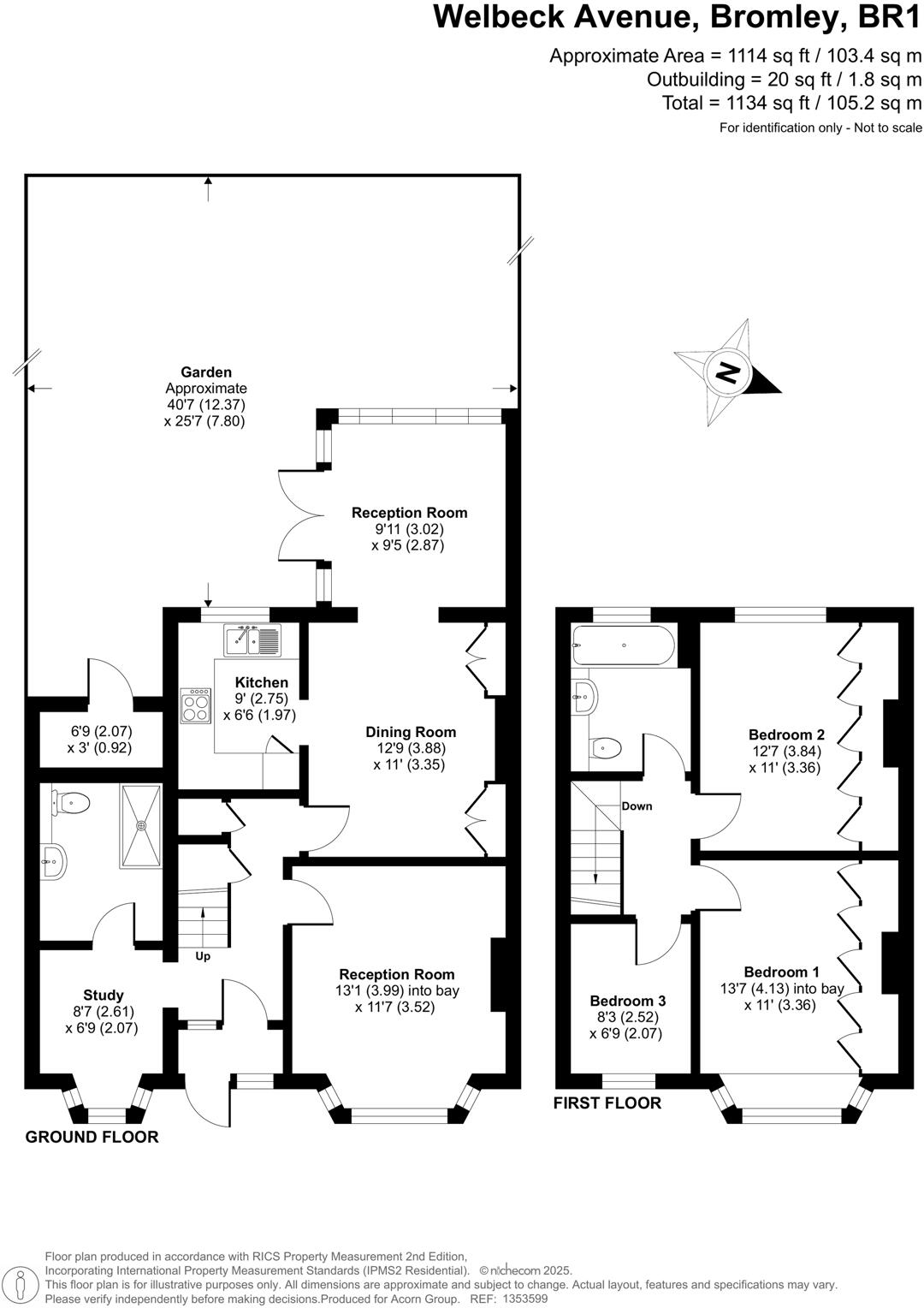
Turnkey three-bedroom family home with huge driveway and conservatory, minutes from Grove Park station..
Three double bedrooms; two bathrooms, includes guest bedroom/study upstairs and shower room on ground floor|Newly renovated throughout; ready to move into|Large rear conservatory opening to low-maintenance paved garden|Huge block-paved frontage providing substantial off-street parking|Double glazing fitted post-2002; fast broadband for home working|Solid brick construction (1930s–1940s); likely no cavity insulation|Small plot size; garden is paved rather than large lawn|Average local crime and moderate council tax
This newly renovated three-bedroom end-of-terrace on Welbeck Avenue offers ready-to-move-in space for growing families and commuters. Ground floor living is flexible: a front lounge with bay window, separate dining room, modern kitchen with integrated appliances and a large rear conservatory that opens onto a low-maintenance paved garden — ideal for weekend entertaining. A guest bedroom or study and a well-appointed shower room sit on the ground floor for convenience.
Upstairs are three bedrooms, two generous doubles with fitted wardrobes, and a sleek tiled family bathroom. Practical features include double glazing (installed post-2002), mains gas central heating with boiler and radiators, and a substantial block-paved driveway providing ample off-street parking — a rare asset for the area.
The house sits in an affluent, commuter-friendly neighbourhood with good local schools and Grove Park station within walking distance, making daily travel and family life straightforward. Broadband speeds are fast and mobile signal average, supporting remote working and modern family needs.
A few points to note: the property occupies a relatively small plot and the rear garden is paved and low-maintenance rather than expansive lawn. The house was originally constructed in the 1930s–1940s and external walls are assumed to be solid brick without cavity insulation; buyers interested in improved thermal performance may want to budget for insulation works. Council tax is moderate and local crime levels are average.
4 bedroom semi-detached house for sale in Welbeck Avenue, Bromley, BR1 — £550,000 • 4 bed • 2 bath • 1559 ft²
3 bedroom terraced house for sale in Cinderford Way, Bromley, BR1 — £450,000 • 3 bed • 2 bath • 864 ft²
3 bedroom semi-detached house for sale in Chatsworth Avenue, Bromley, BR1 — £599,950 • 3 bed • 1 bath • 905 ft²
4 bedroom semi-detached house for sale in Treewall Gardens, Bromley, BR1 — £600,000 • 4 bed • 1 bath • 1467 ft²
3 bedroom terraced house for sale in Lamerock Road, Bromley, BR1 — £430,000 • 3 bed • 1 bath • 773 ft²
3 bedroom terraced house for sale in Roundtable Road, Bromley, BR1 — £425,000 • 3 bed • 1 bath • 823 ft²










































































