Move-in ready four-bedroom house with garage, garden and no onward chain.
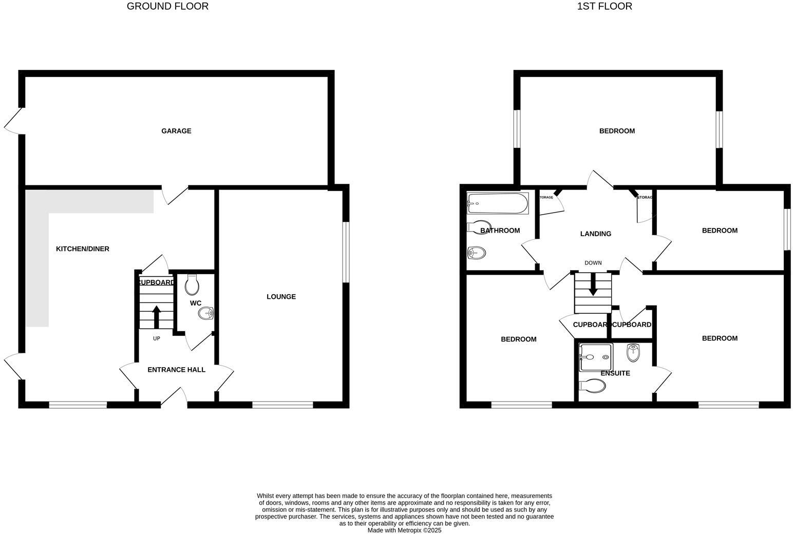
- Four bedrooms including principal with en-suite
- 18' open-plan kitchen/diner and 18' lounge
- 26' garage with internal access and private driveway
- Enclosed mature rear garden; decent corner plot
- Freehold; offered with no onward chain
- Estate fee £275pa and moderate council tax (Band D)
- Located in area with higher local crime and deprivation
- Fast broadband and excellent mobile signal
Set on a corner plot in Costessey, this well-presented four-bedroom detached house offers practical family living with a spacious 26' garage and private driveway. The ground floor centres on an 18' lounge and an 18' open-plan kitchen/diner that opens onto an enclosed, mature rear garden — good for children and outdoor entertaining. The principal bedroom benefits from an en-suite and there are three further bedrooms plus a family bathroom across the first floor.
The property is gas centrally heated, double glazed and described in excellent decorative order, so little immediate work is needed for a new owner. Useful extras include under-stairs storage, a ground-floor cloakroom and a sizeable garage with internal access. Broadband and mobile signals are strong, supporting home working and streaming.
Practical considerations: the home is in a neighbourhood with higher local crime rates and sits in a more deprived area classification, which may concern some buyers. There is an annual estate fee of £275 and a moderate council tax band D. The overall plot and accommodation are average-sized for a four-bedroom detached house — attractive for growing families but not a large executive estate.
Offered freehold and with no onward chain, this house is positioned close to schools, retail at Longwater and good transport links into Norwich. It will suit buyers seeking a ready-to-move-into family home with straightforward maintenance and potential to personalise rather than those seeking a major renovation project.
4 bedroom detached house for sale in Royal Sovereign Avenue, Costessey, Norwich, Norfolk, NR5 — £475,000 • 4 bed • 2 bath • 1706 ft²
4 bedroom detached house for sale in Britannia Way, Costessey, Norwich, Norfolk, NR5 — £350,000 • 4 bed • 2 bath • 1135 ft²
4 bedroom detached house for sale in Vanguard Chase, Costessey, Norwich, NR5 — £400,000 • 4 bed • 2 bath • 1393 ft²
4 bedroom detached house for sale in Icarus Rise, Costessey, Norwich, NR5 — £425,000 • 4 bed • 3 bath • 1360 ft²
4 bedroom detached house for sale in Vanguard Chase, Norwich, Norfolk, NR5 — £475,000 • 4 bed • 2 bath • 1788 ft²
4 bedroom detached house for sale in Victory Grove, Costessey, Norwich, NR5 — £400,000 • 4 bed • 2 bath • 1181 ft²






















































































































