**Standout Features:**
- **New Build:** High-specification five-bedroom detached house currently in planning.
- **Sizeable Plot:** Approximately 0.6 acres with a private gated driveway and south-facing garden.
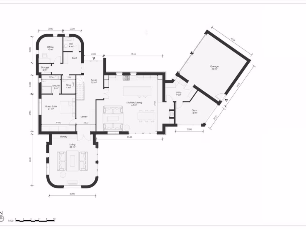
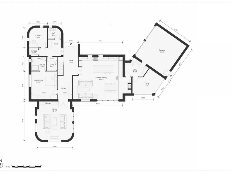
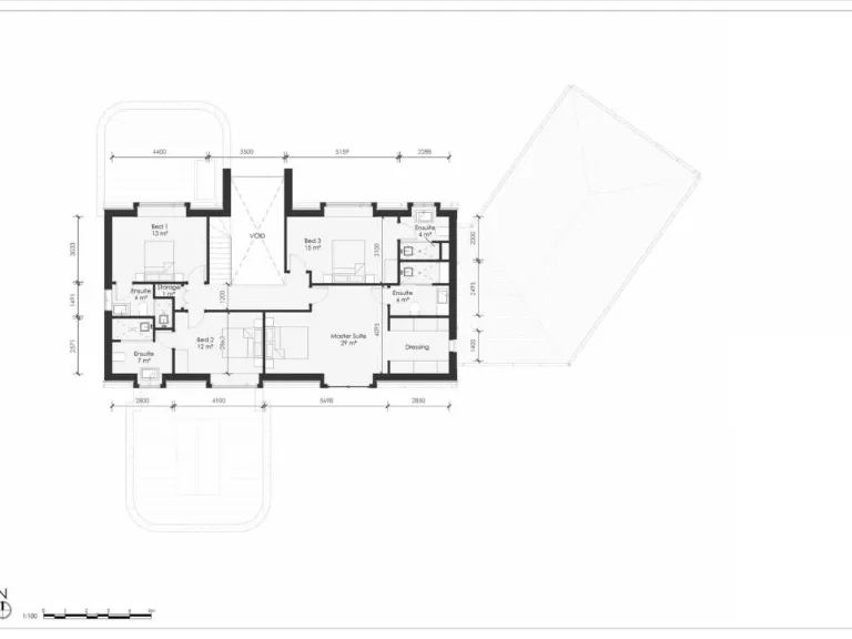
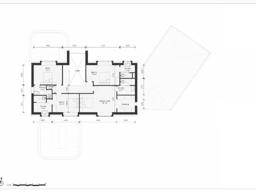
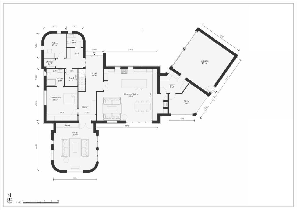
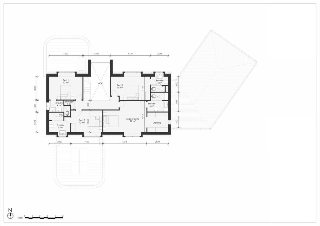
- **Spacious Layout:** 4,000 square feet accommodating five en-suite bedrooms, four reception areas, and a large double garage.
- **Prime Location:** Situated on prestigious Swithland Lane with easy access to local amenities and excellent schools.
- **Investment Potential:** Customization options available for personalized finishes.
**Summary:**
Introducing a remarkable opportunity to own a premium family home in the highly coveted Swithland Lane, Rothley. This stunning new build is set to extend approximately 4,000 square feet across two thoughtfully designed floors, offering five en-suite bedrooms and four spacious reception rooms, perfect for family gatherings and entertaining. Nestled within 0.6 acres of south-facing land, enjoy the benefits of a private gated driveway and landscaped gardens, promising peace, comfort, and privacy.
Currently in the planning application stage, this property allows potential buyers the unique chance to influence the final design and specifications of their dream home. Rothley itself is renowned for its idyllic rural charm and proximity to modern conveniences, making it ideal for families seeking a tranquil yet connected lifestyle. Local schools rate highly, ensuring educational excellence for the community.
That said, please note that completion is expected around Spring 2026, and any purchase is subject to local authority approval. Whether you're looking to invest or create your perfect family haven, this exclusive plot is poised to captivate. Don’t miss out on this golden opportunity to secure a luxurious lifestyle in one of the East Midlands’ most desirable locations.
Plot for sale in Building Plot - Swithland Lane, Rothley, LE7 — £695,000 • 5 bed • 5 bath • 4000 ft²
6 bedroom detached house for sale in Benscliffe Road, Newtown Linford, LE67 — £1,250,000 • 6 bed • 6 bath • 8307 ft²
4 bedroom semi-detached house for sale in Swithland Lane, Rothley, LE7 — £495,000 • 4 bed • 2 bath • 1690 ft²
5 bedroom detached house for sale in Brownhill Crescent, Rothley, LE7 — £1,000,000 • 5 bed • 3 bath • 2677 ft²
5 bedroom detached house for sale in Main Street, Swithland, LE12 — £1,900,000 • 5 bed • 5 bath • 3342 ft²
5 bedroom detached house for sale in Swithland Lane, Rothley, LE7 7SJ, LE7 — £890,000 • 5 bed • 3 bath • 4045 ft²


















