Spacious, modern five-bedroom family home on a private 0.37-acre plot with double garage.
Architect-designed contemporary house, built 2017
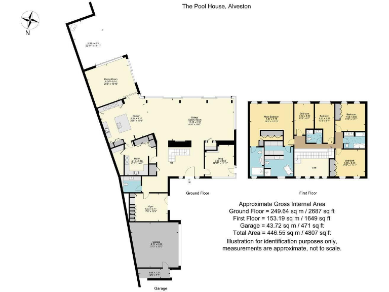
An architect-designed, contemporary family home arranged over two floors, The Pool House delivers exceptionally generous living across 4,807 sq ft. Built in 2017, the house combines high ceilings, large windows and natural materials to create a bright, modern interior with an impressive open-plan living area, bespoke breakfast kitchen and several flexible reception rooms including a snug, hobbies/gym room and home office.
Five double bedrooms occupy the first floor, with vaulted ceilings, his-and-hers dressing rooms and separate en-suite facilities to the principal bedroom. Practical comforts include underfloor heating, Cat6 wiring, EV charging point, wired audio and fast broadband — features that suit both family life and remote working.
Outside, the plot of circa 0.37 acre is landscaped with terraces, an outdoor kitchen and pizza oven, private lawns and mature planting that rise to the rear boundary for good seclusion. A resin-bound drive provides ample parking and an insulated double garage with remote shutter secures vehicles.
Notable practical points: the property is freehold with an EPC rating B and a remaining build warranty. Council tax is very expensive (Band H) and, as with many sale particulars, buyers should arrange their own inspections to confirm the condition and operation of services and appliances.
5 bedroom detached house for sale in Alveston Leys, Alveston, Stratford-upon-Avon, Warwickshire, CV37 — £2,295,000 • 5 bed • 4 bath • 4807 ft²
5 bedroom detached house for sale in Kissing Tree Way, Alveston, Stratford-upon-Avon, Warwickshire, CV37 — £2,150,000 • 5 bed • 4 bath • 5162 ft²
4 bedroom detached house for sale in Shipston Road, Stratford-Upon-Avon, CV37 — £1,295,000 • 4 bed • 3 bath • 3000 ft²
4 bedroom detached house for sale in Hawthorn Place, Stratford-upon-Avon, CV37 — £775,000 • 4 bed • 3 bath • 1986 ft²
Land for sale in Development Opportunity, Alveston Lane, Alveston, CV37 — £1,250,000 • 5 bed • 5 bath • 4670 ft²
4 bedroom house for sale in St. Marys Road, Stratford-Upon-Avon, CV37 — £1,050,000 • 4 bed • 3 bath • 2280 ft²


































































































































