Impressive 5‑bedroom converted church with cathedral living space and south courtyard..
Former Victorian church conversion with original Gothic features
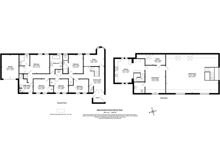
A striking former Victorian church, imaginatively converted into a spacious 5‑bedroom family home with over 3,000 sq.ft of flexible living. The property keeps many original Gothic features — stained glass, arched windows, exposed timbers and a bespoke staircase — combined with contemporary fittings such as a bespoke kitchen, utility and modern en‑suites.
All five bedrooms are on the ground floor, including two en‑suites and a principal bedroom with a stained glass window, while the entire first floor is given over to dramatic reception space: a vaulted principal living room with cathedral ceiling, a large family/dining room and study areas. Practical extras include gas central heating, a garage with electric doors, driveway parking and a secure south‑facing courtyard garden.
This is a characterful, well‑maintained home in the heart of Eynsham, close to good local schools, shops and regular transport links to Oxford. Buyers should note this is a period conversion: while beautifully presented, ongoing maintenance and sympathetic upkeep of historic fabric should be expected, and council tax is relatively high. Parking is limited to one driveway space plus the garage.
3 bedroom detached house for sale in Henleys Lane, Drayton, OX14 — £650,000 • 3 bed • 2 bath • 1653 ft²
Commercial property for sale in Cowley Road Methodist Church Centre, Jeune Street, Oxford, OX4 1BN, OX4 — £850,000 • 1 bed • 1 bath • 8517 ft²
4 bedroom end of terrace house for sale in High Street, Eynsham, Oxfordshire, OX29 — £800,000 • 4 bed • 2 bath • 2293 ft²
3 bedroom detached house for sale in Main Street, Clanfield, OX18 — £800,000 • 3 bed • 3 bath • 2246 ft²
4 bedroom detached house for sale in Queen Street, Eynsham, Witney, Oxfordshire, OX29 — £775,000 • 4 bed • 2 bath • 1834 ft²
4 bedroom semi-detached house for sale in Priory Road, Wantage, Oxfordshire, OX12 — £960,000 • 4 bed • 3 bath • 3255 ft²














































































