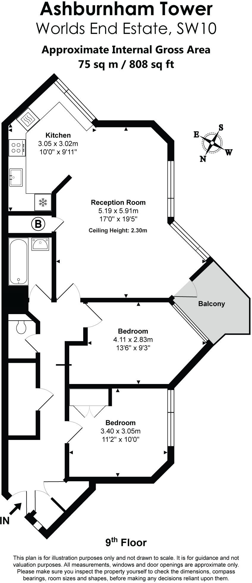
**Standout Features:**
- Two spacious double bedrooms
- Bright open-plan kitchen and living area
- Private balcony with river views
- Modern bathroom and separate toilet
- Ample storage throughout
- Heating and hot water included in service charge
- Underground parking available for rent
- Approx. 808 sq. ft. of living space
This charming two-bedroom apartment in the desirable SW10 postcode seamlessly blends comfort and modern living. Positioned on an upper floor with lift access, residents can enjoy stunning partial river views from their private balcony. The open-plan living and kitchen area is perfect for entertaining, while the two generously sized bedrooms offer a peaceful retreat.
With a modern bathroom, separate toilet, and abundant storage, this flat is ideal for first-time buyers or investors looking for a low-maintenance property in a vibrant area. The communal heating and hot water are included in the above-average service charge, making budgeting easier. Access to secure underground parking adds to the convenience of this home, while nearby amenities include local shops, cafés, and parks, all within walking distance.
Families will appreciate the access to highly-rated schools – several boasting outstanding Ofsted ratings – underscoring the area's family-friendly appeal. With excellent transport links right at your doorstep, this property represents a unique opportunity for those seeking a stylish London base. Don’t miss out on this exceptional offering!
2 bedroom apartment for sale in Blantyre Walk, Chelsea, SW10 — £545,000 • 2 bed • 1 bath • 804 ft²
2 bedroom apartment for sale in World's End Estate, London, SW10 — £635,000 • 2 bed • 1 bath • 800 ft²
2 bedroom flat for sale in Chelsea Crescent, Chelsea Harbour, London, SW10 — £1,500,000 • 2 bed • 2 bath • 1621 ft²
2 bedroom flat for sale in Chelsea Crescent, Chelsea Harbour, Chelsea, London, SW10 — £1,595,000 • 2 bed • 2 bath • 1553 ft²
2 bedroom flat for sale in Oyster Wharf, London, SW11 — £599,995 • 2 bed • 2 bath • 764 ft²
2 bedroom apartment for sale in The Boulevard, Imperial Wharf, SW6 — £825,000 • 2 bed • 2 bath • 1111 ft²


















































































