Five bedrooms, garage and garden near town amenities and commuter links.
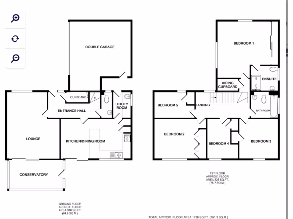
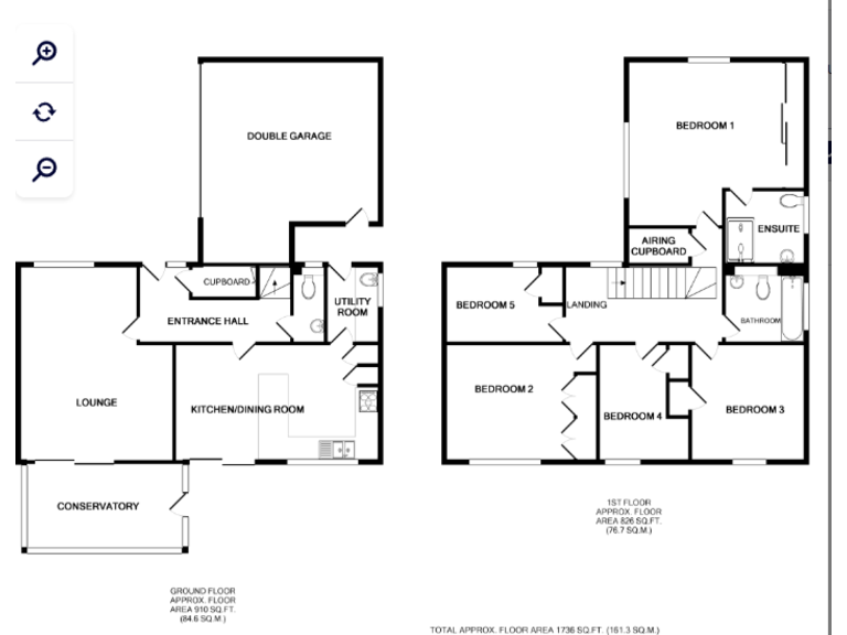
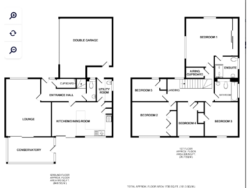
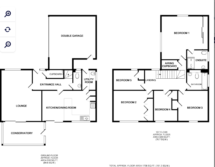
Five bedrooms with en suite to master, family bathroom and conservatory
Double garage with power, lighting and radiator; driveway for three cars
Large kitchen/diner, separate lounge and utility room
Rear garden with patio, decking, pond and three garden sheds
Leasehold with 944 years remaining; ground rent listed as £10
Council tax described as expensive — budget accordingly
Double glazing installed before 2002; walls assumed cavity without insulation
Built 1967–1975; may benefit from modern insulation and window upgrades
This spacious five-bedroom detached house on Farthing Drive is arranged over two floors and suits growing families who value versatile living space. The layout includes an en suite to the master, a large kitchen/diner, separate lounge and a conservatory that connects to a private rear garden and decking. Practical extras include a double garage with power and lighting, a driveway for up to three cars, and a sizable utility room.
The property is presented in good order with fitted kitchen appliances and a usable conservatory, but buyers should note material facts: the home is leasehold (944 years remaining) and council tax is described as expensive. The glazing was installed before 2002 and walls are assumed to be uninsulated cavity construction, so upgrading windows or insulating walls could improve comfort and running costs.
Situated on the popular Lordship Estate, this house is close to several well-rated primary and secondary schools and offers easy access to Letchworth town centre and commuter links, including the mainline station to London. The plot and room configuration give scope for modest updates or reconfiguration to suit a family’s needs, while the long lease removes typical leasehold timing pressures.
4 bedroom detached house for sale in Bell Acre, Letchworth Garden City, SG6 — £600,000 • 4 bed • 2 bath • 909 ft²
5 bedroom detached house for sale in Howard Drive, Letchworth Garden City, SG6 — £850,000 • 5 bed • 2 bath • 6288 ft²
4 bedroom detached house for sale in Broadcroft, Letchworth Garden City, Hertfordshire, SG6 — £700,000 • 4 bed • 2 bath • 1770 ft²
3 bedroom detached bungalow for sale in Aubreys, Letchworth Garden City, SG6 — £750,000 • 3 bed • 2 bath • 5313 ft²
4 bedroom detached house for sale in Whitechurch Gardens, Letchworth, SG6 2AU, SG6 — £580,000 • 4 bed • 2 bath • 1411 ft²
5 bedroom detached bungalow for sale in North Avenue, Letchworth Garden City, SG6 — £750,000 • 5 bed • 1 bath • 5486 ft²






































































































