Refurbished family home with large garden and separate outbuilding gym.
Nearly 1,800 sq ft of living space across two storeys
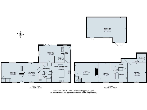
This detached three-bedroom cottage sits in semi-rural Freasley and has been comprehensively refurbished to offer nearly 1,800 sq ft of family living. The ground floor plan includes a bay-fronted sitting room with a solid-fuel fireplace, a separate dining room, and a spacious family room with vaulted ceiling and bi-folding doors that open to extensive rear gardens. A refitted kitchen with central island, adjoining utility and ground-floor shower room support practical everyday living.
Upstairs are three generous double bedrooms and a family bathroom with a roll-top bath plus a separate shower. The large plot, gravel driveway with off-street parking for several vehicles and a detached outbuilding currently used as a gym add useful flexibility — ideal for a home office, studio or leisure space. Broadband and mobile signal are reported as strong, and road links to Tamworth, the M42 and A5 are straightforward.
Buyers should note a few material facts: the property is oil-heated (individual boiler and radiators) and built with solid brick walls where no cavity insulation is assumed. Council Tax is high (Band F), and the local crime level is reported as high. The house has double glazing but installation dates are unknown. These factors affect running costs and future upgrade planning despite the recent refurbishment.
Overall this is a spacious, characterful family home in a sought-after semi-rural hamlet, offering move-in-ready accommodation with scope to personalise, extend or adapt the outbuilding to suit changing household needs.
5 bedroom cottage for sale in Norton Hill, Austrey, CV9 — £660,000 • 5 bed • 3 bath • 2519 ft²
3 bedroom detached house for sale in Owl Cottage, DE12 — £425,000 • 3 bed • 3 bath • 1001 ft²
3 bedroom detached house for sale in Bangley Lane, Hints, Tamworth, B78 — £695,000 • 3 bed • 3 bath • 2293 ft²
3 bedroom cottage for sale in Rotherhams Hill, Baddesley Ensor, Atherstone, CV9 — £285,000 • 3 bed • 2 bath • 999 ft²
5 bedroom detached house for sale in Portway Lane, Harlaston, B79 — £1,250,000 • 5 bed • 3 bath • 5096 ft²
4 bedroom detached house for sale in Stone Cottage, Uttoxeter Road, Hill Ridware, WS15 — £565,000 • 4 bed • 2 bath • 2316 ft²


































































































