**Standout Features:**
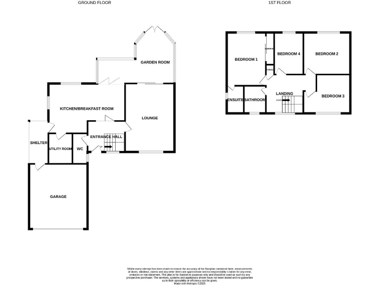
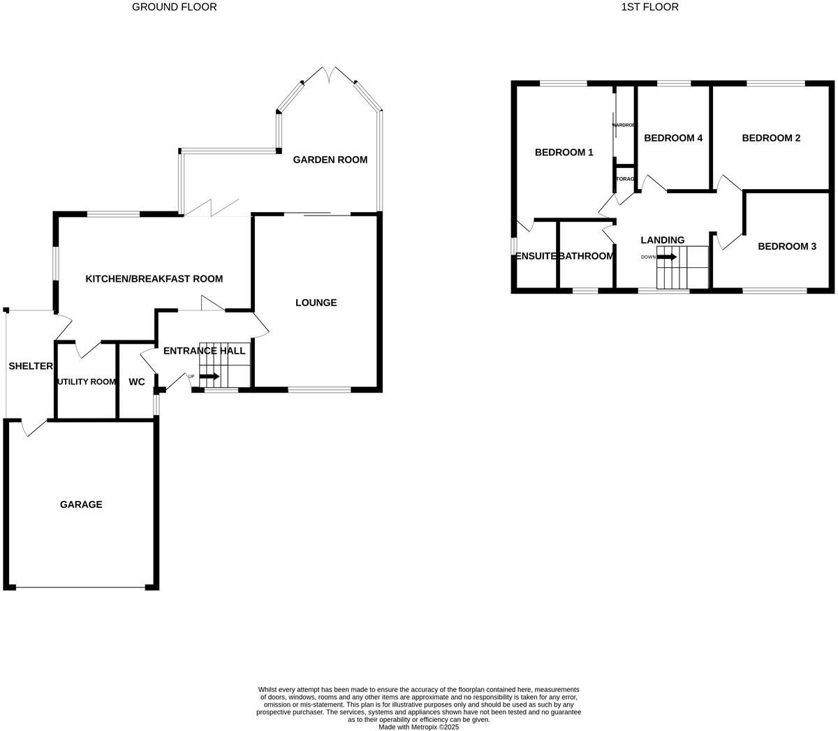
- Spacious four-bedroom executive family home
- Expansive open-plan kitchen with a central island and dining area
- Versatile garden room with bi-folding doors
- Separate lounge with a cozy wood burner fireplace
- Double garage and ample parking on a large corner plot
- Located in a quiet cul-de-sac, walking distance from the town center
This stunning four-bedroom detached home on Radbroke Close, nestled within the desirable Tatton Drive estate, offers an exceptional blend of style, space, and convenience ideal for families. The heart of the property is its expansive open-plan kitchen, featuring modern appliances, a breakfast bar, and a delightful garden room that opens up to the beautifully landscaped outdoor space—perfect for entertaining or quiet relaxation. Upstairs, the luxurious master suite boasts an ensuite bathroom, while three additional well-sized family bedrooms ensure ample living space for everyone.
Located on a generous corner plot with a secluded rear outlook, this home is situated in a quiet cul-de-sac, promoting a safe and peaceful environment. The double garage and plentiful parking accommodate multiple vehicles, ideal for busy family life. While the property is move-in ready, there are opportunities to personalize and renovate to suit your style. Coupled with its proximity to excellent schools and local amenities, this home not only provides comfort and security but also potential for future flexibility. Don’t miss out on this rare opportunity in a sought-after area; early viewing is strongly advised!
4 bedroom detached house for sale in Henshall Drive, Sandbach, CW11 — £600,000 • 4 bed • 2 bath • 1900 ft²
4 bedroom detached house for sale in Swain Drive, Winterley, Sandbach, CW11 — £450,000 • 4 bed • 2 bath • 1283 ft²
4 bedroom detached house for sale in Barlow Way, Sandbach, CW11 — £520,000 • 4 bed • 2 bath • 1669 ft²
4 bedroom detached house for sale in Adlington Drive, Sandbach, CW11 — £450,000 • 4 bed • 2 bath • 1096 ft²
5 bedroom detached house for sale in Alderley Close, Sandbach, CW11 — £650,000 • 5 bed • 3 bath • 1357 ft²
4 bedroom detached house for sale in Adlington Drive, Sandbach, Cheshire, CW11 — £475,000 • 4 bed • 2 bath • 1450 ft²






















































































































