**Standout Features:**
- Stunning sea views from living area and bedrooms
- Spacious open-plan layout with large glass-fronted balcony
- Two luxurious bathrooms delivering comfort and convenience
- Secure private parking and wheel-chair access
- Walking distance to Carlyon Bay beach and close to golf course and local amenities
- Built in 2017, includes modern fixtures and high-quality finishes
- Chain-free sale with extensive lease of 974 years remaining
**Summary:**
Discover coastal living at its finest in this luxurious two-bedroom retirement apartment located just a stone’s throw from the enchanting Carlyon Bay beach. Set within a contemporary development, this first-floor unit boasts breathtaking sea and coastal views that can be enjoyed from its expansive glass-fronted balcony—perfect for hosting gatherings or enjoying quiet moments.
Inside, the apartment features a well-appointed open-plan living area, seamlessly connecting to a high-spec kitchen equipped with integrated appliances. Each bedroom is generously sized, with the master boasting an ensuite and direct access to the balcony. Residents benefit from a well-maintained community space, secure parking, and convenient lift access, enhancing ease of living.
With nearby amenities like Charlestown’s picturesque harbor and a variety of dining options, you’ll enjoy a vibrant yet tranquil lifestyle. While the service charge of £4320 per annum is on the higher side, it contributes to exceptional communal upkeep and security—a worthy investment in your comfort. Perfect for discerning retirees seeking a peaceful yet engaging community, this property represents a unique opportunity in a highly sought-after coastal location. Don’t miss out!
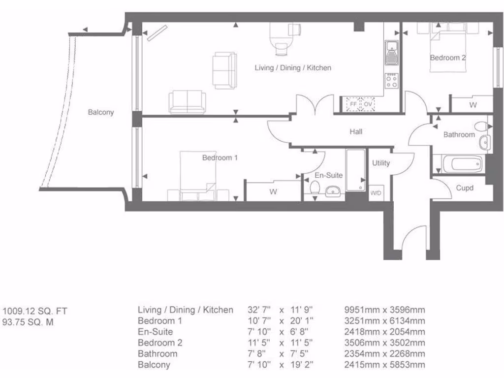
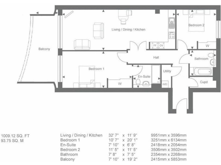
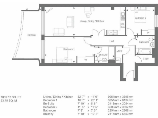
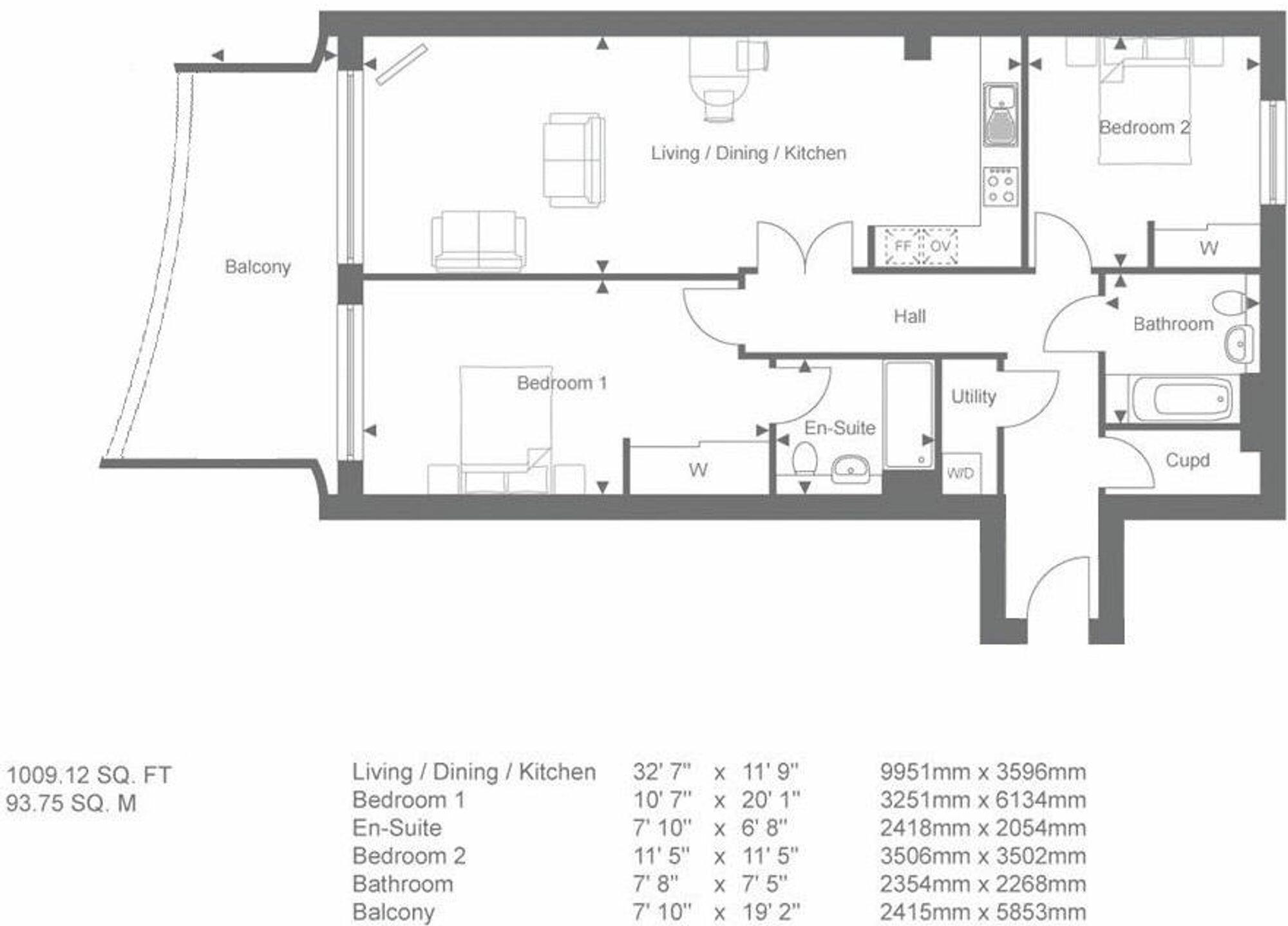
2 bedroom apartment for sale in Sea Road, Carlyon Bay, PL25 — £500,000 • 2 bed • 2 bath • 861 ft²
2 bedroom apartment for sale in Sea Road, Carlyon Bay, PL25 — £500,000 • 2 bed • 2 bath • 1018 ft²
2 bedroom apartment for sale in Sea Road, Carlyon Bay, St. Austell, PL25 — £325,000 • 2 bed • 2 bath • 991 ft²
2 bedroom apartment for sale in Ocean House, Sea Road, St. Austell, Cornwall, PL25 — £600,000 • 2 bed • 2 bath • 859 ft²
2 bedroom flat for sale in Sea Road, Carlyon Bay, PL25 — £300,000 • 2 bed • 1 bath • 904 ft²
2 bedroom apartment for sale in Sea Road, Carlyon Bay, St. Austell, PL25 — £495,000 • 2 bed • 2 bath • 8864 ft²










































































































