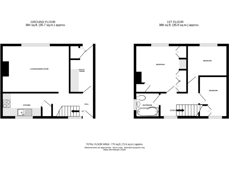
Move-in-ready three-bedroom house with a home office and large rear garden.
- Recently refitted kitchen and utility
- Dedicated insulated home office/garden room with power
- Large rear garden with new timber fencing
- Three bedrooms with fitted storage in two rooms
- Single modern bathroom (P-shaped bath with shower)
- Compact internal footprint ~770 sq ft, small overall size
- EPC rating D; potential to improve energy efficiency
- No obvious off-street parking mentioned
This recently modernised three-bedroom end-of-terrace offers a compact, move-in-ready layout with generous private outdoor space. Renovations include a refitted kitchen and utility, new central heating, new doors, fresh decoration and new floor coverings — so the house is ready for immediate occupation.
Key practical benefits are the large rear garden and a purpose-built home office/garden room with insulation, power and French doors, ideal for remote working or a hobby space. The sitting/dining room is generously proportioned for the house size, and fitted storage features in bedrooms maximise the usable footprint.
Be aware this is a modestly sized home (circa 770 sq ft) with a single bathroom and no obvious off-street parking. The EPC currently rates D and could be improved. Overall, the property suits a small family or first-time buyer seeking a well-presented, affordable freehold near good schools and local amenities in Kenilworth.
3 bedroom end of terrace house for sale in Guy Road, Kenilworth, CV8 — £290,000 • 3 bed • 1 bath • 1055 ft²
3 bedroom end of terrace house for sale in Finham Road, Kenilworth, Warwickshire, CV8 — £300,000 • 3 bed • 1 bath • 791 ft²
3 bedroom terraced house for sale in Albion Street, Kenilworth, CV8 — £325,000 • 3 bed • 1 bath • 926 ft²
4 bedroom semi-detached house for sale in Oaks Road, Kenilworth, CV8 — £495,000 • 4 bed • 2 bath • 1058 ft²
3 bedroom semi-detached house for sale in Jacox Crescent, Kenilworth, CV8 — £410,000 • 3 bed • 1 bath • 1012 ft²
3 bedroom end of terrace house for sale in Hyde Road, Kenilworth, CV8 — £385,000 • 3 bed • 2 bath • 1033 ft²


















































