**Standout Features:**
- Spacious mid-terraced Victorian property
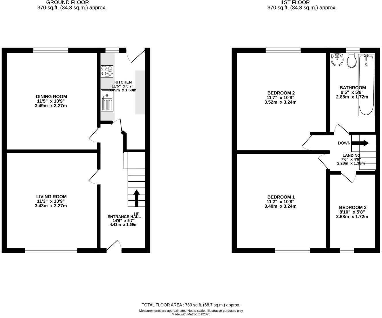
- Two generous reception rooms and a fitted kitchen
- Three good-sized bedrooms with a three-piece bathroom suite
- Private courtyard garden with walled boundaries
- Excellent transport links and local amenities nearby
- Offered chain-free, making for a quick move
This charming Victorian terraced home is perfect for families and first-time buyers looking to settle in a vibrant and cosmopolitan neighborhood. Spanning 739 square feet, the property offers a light and airy living environment with two sizable reception rooms, ideal for entertaining or relaxing. The rear dining room overlooks a private courtyard garden, providing a serene outdoor space for gatherings or personal enjoyment.
Upstairs, discover three well-proportioned bedrooms, with two particularly spacious options, complemented by a functional three-piece bathroom. While the property boasts solid brick construction and double glazing, it does not have insulation, presenting a potential opportunity for energy efficiency improvements. The area enjoys very low crime rates and is well-served by public transport, making daily commutes or city explorations convenient. Given its inviting characteristics and the absence of vendor chains, this property stands as an ideal prospect—opportunities like this don't last long in such a desirable location.
3 bedroom end of terrace house for sale in Broadfield Road, Manchester, Greater Manchester, M14 — £270,000 • 3 bed • 2 bath • 1136 ft²
3 bedroom terraced house for sale in Spencer Avenue, Whalley Range, M16 — £315,000 • 3 bed • 1 bath • 802 ft²
3 bedroom terraced house for sale in Premier Street, Manchester, Greater Manchester, M16 — £325,000 • 3 bed • 1 bath • 1340 ft²
3 bedroom terraced house for sale in Premier Street, Manchester, Greater Manchester, M16 — £290,000 • 3 bed • 1 bath • 1097 ft²
3 bedroom terraced house for sale in York Avenue, Whalley Range, Manchester. M16 0AR, M16 — £300,000 • 3 bed • 1 bath • 1098 ft²
3 bedroom end of terrace house for sale in Thornton Road, Manchester, Greater Manchester, M14 — £250,000 • 3 bed • 1 bath • 967 ft²






























































