Bright reception and private balcony in a gated development near parks and shops.
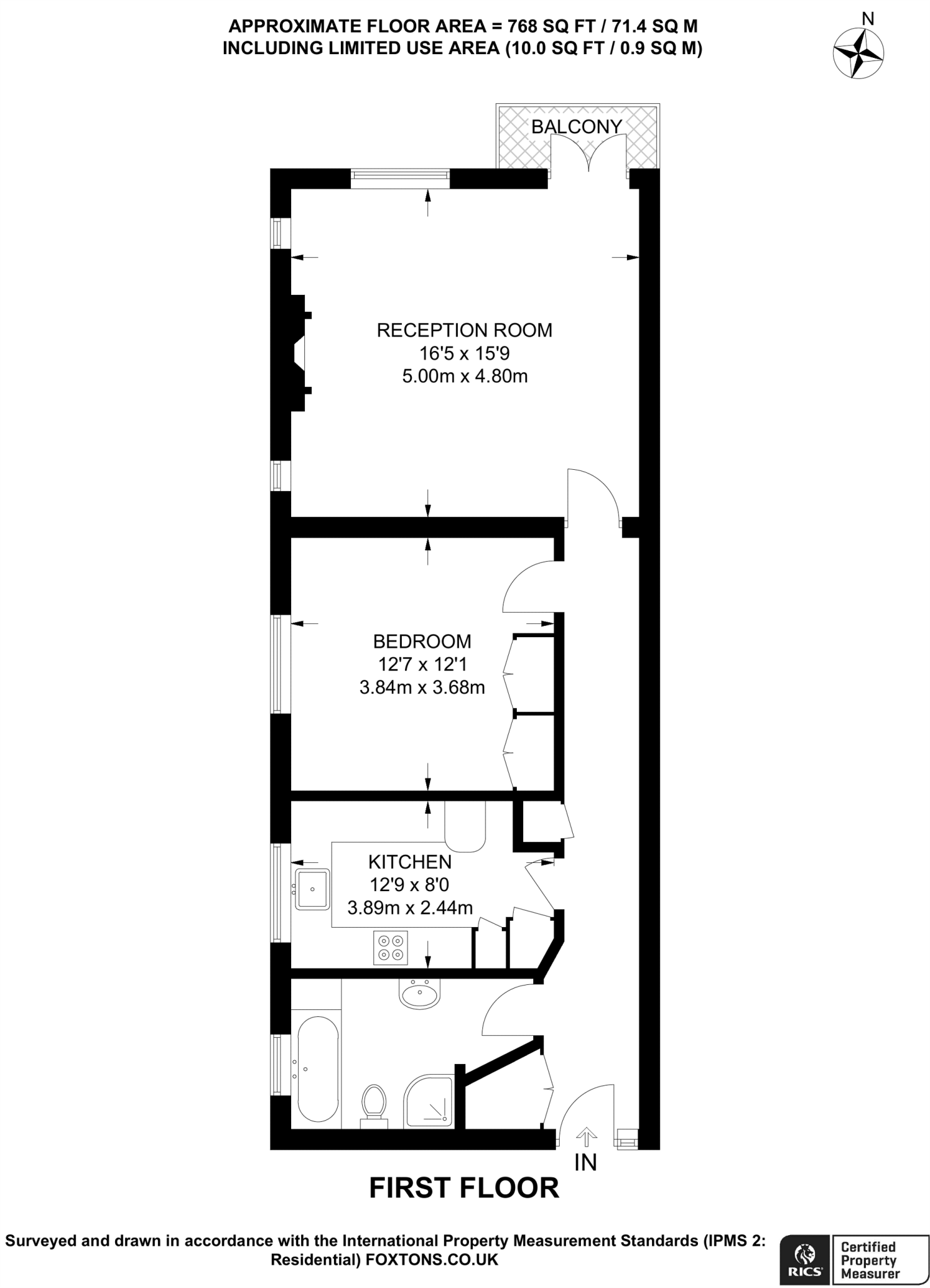
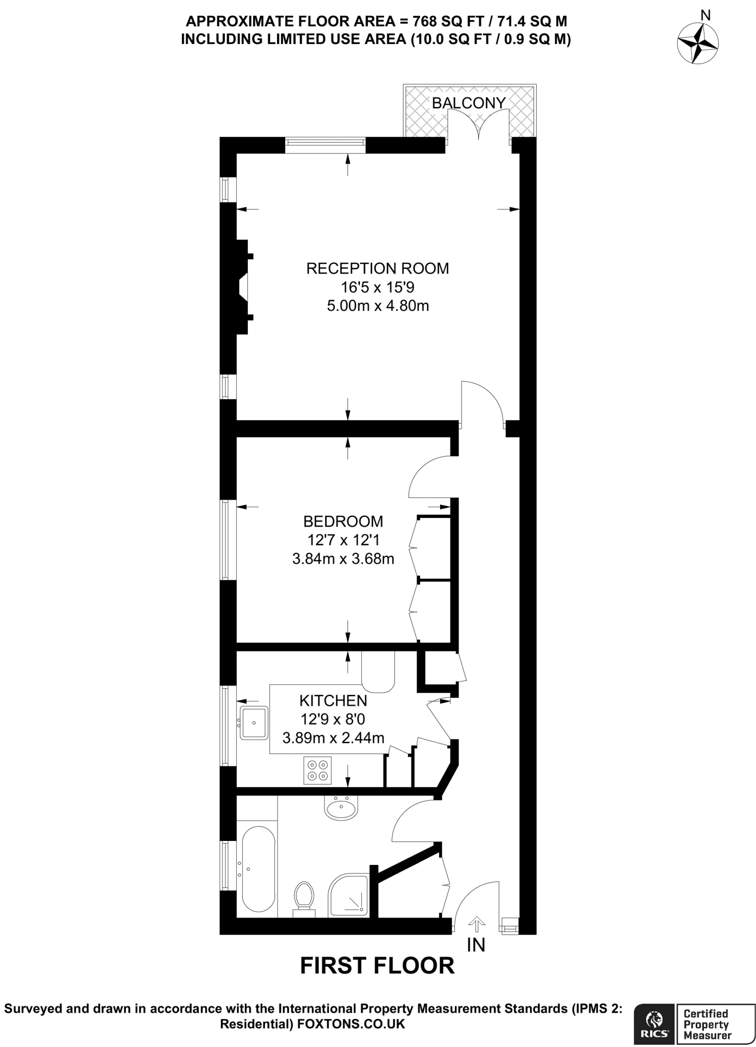
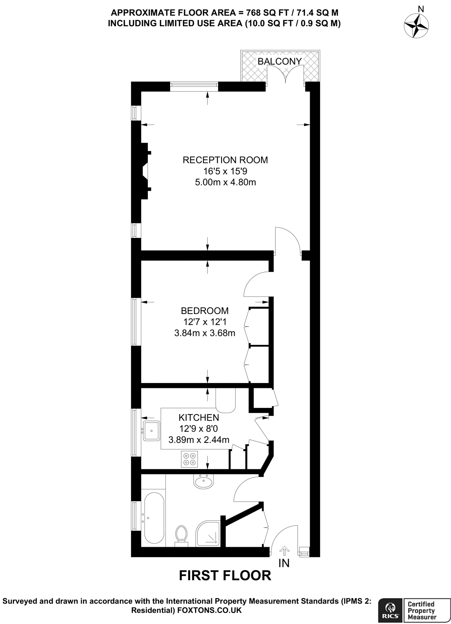
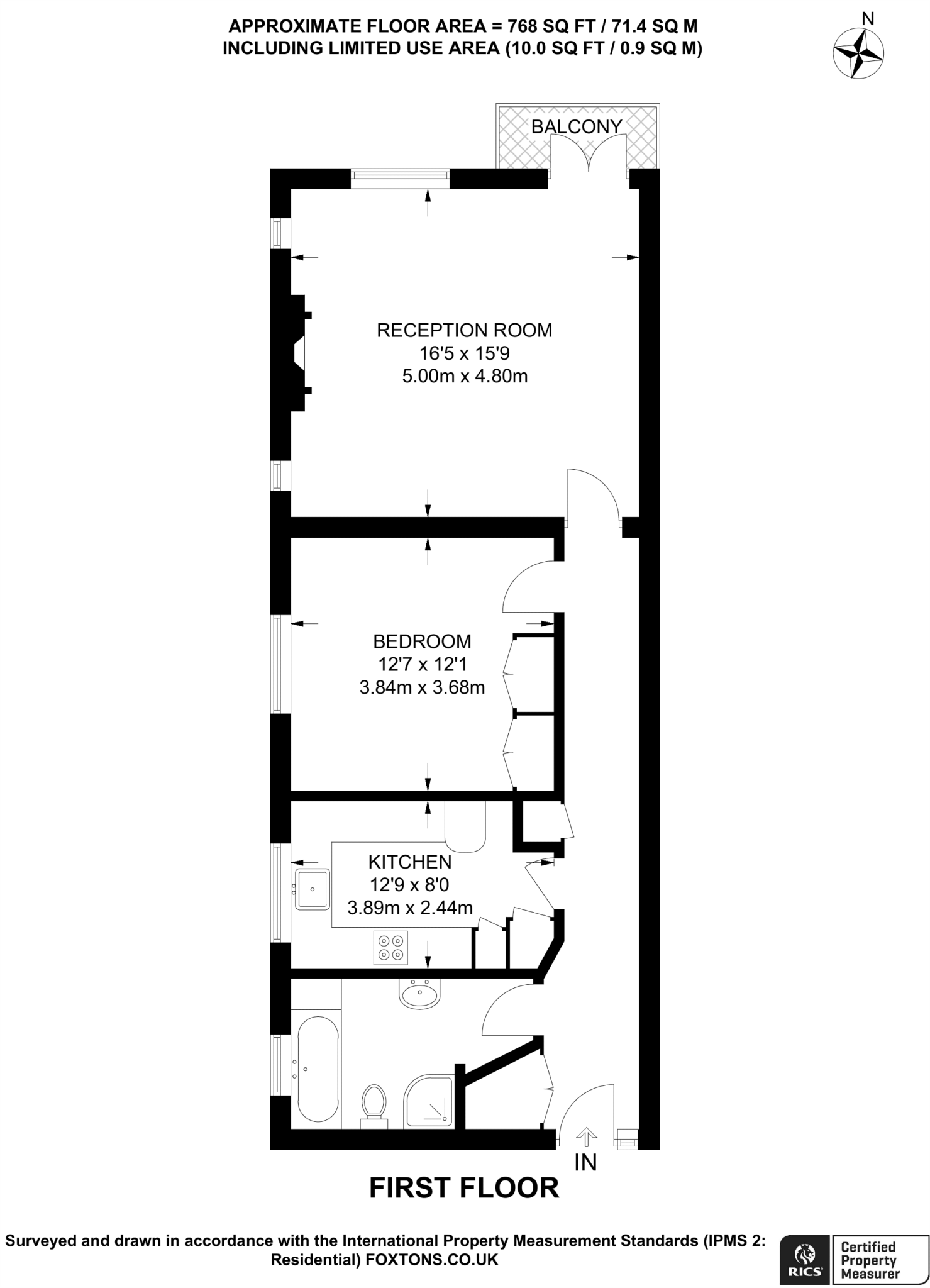
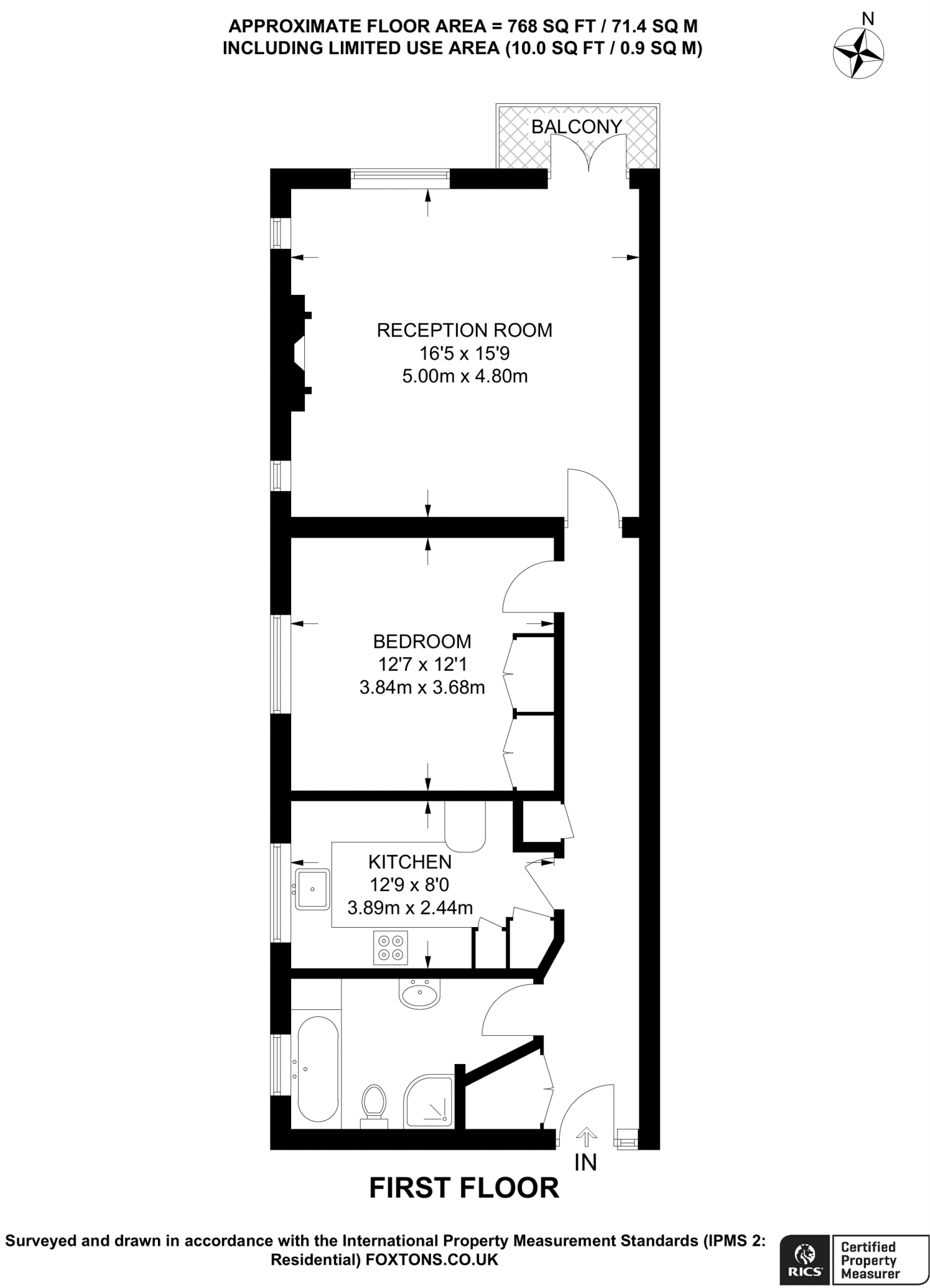
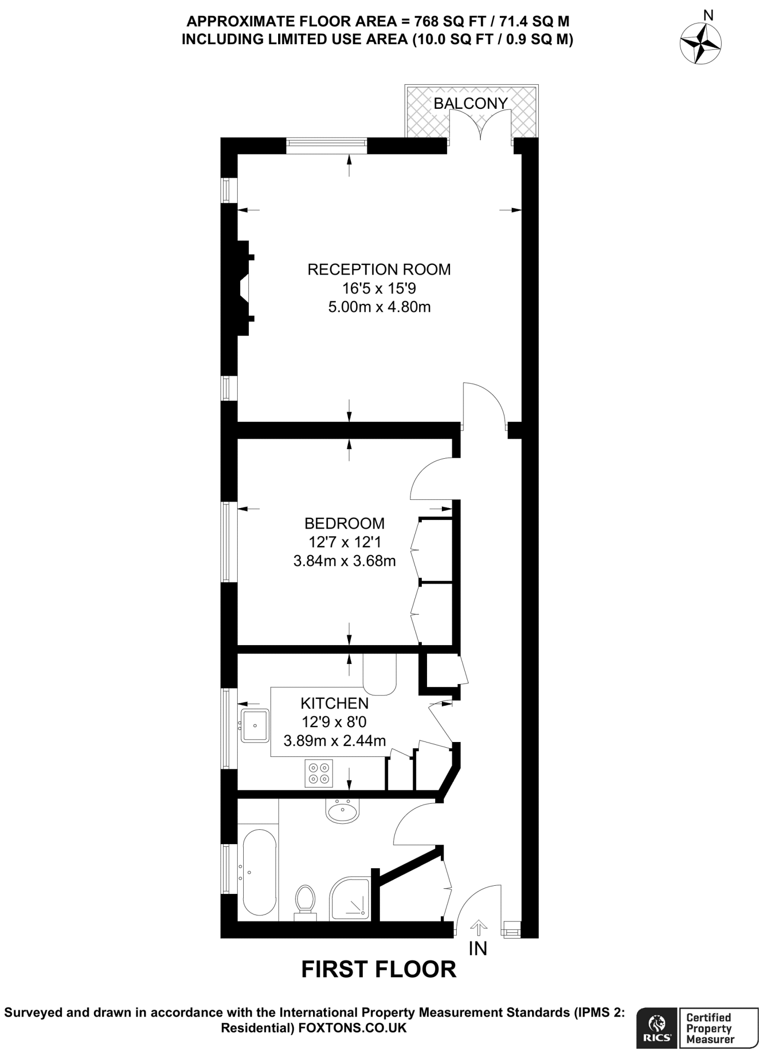
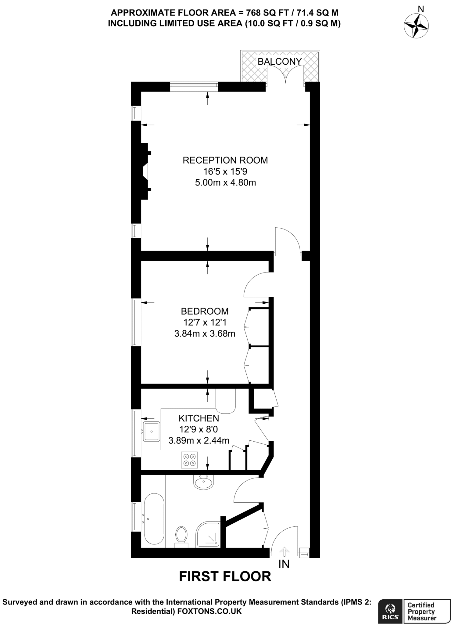
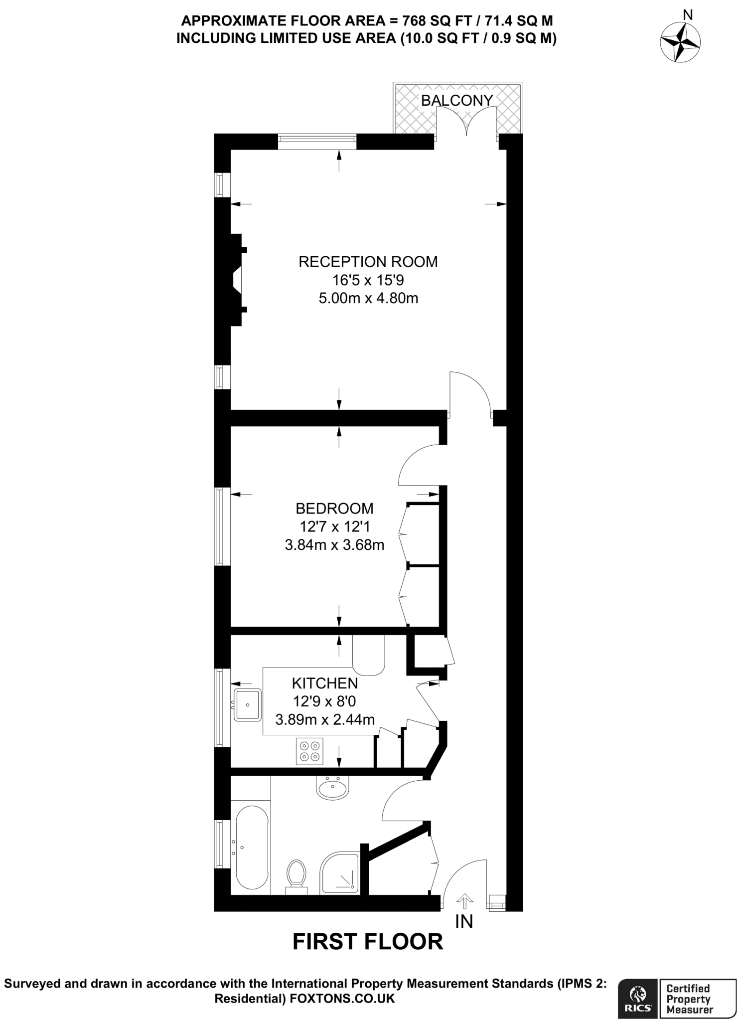
Very large 1-bed flat (approx. 768 sq ft) with generous rooms
Bright reception room opening onto private balcony
Separate kitchen; generous double bedroom
Residents off-street parking within gated development
Well-kept communal gardens; popular secure setting
Share of freehold; ground rent £200 (small)
Solid brick construction; likely no wall insulation, may need upgrades
Area crime above average; broadband speeds average
Arranged on the first floor of a popular gated development, this unusually large one-bedroom flat offers a bright reception room leading to a private balcony and a separate kitchen. At approximately 768 sq ft, the apartment feels more spacious than typical one-beds and suits someone who values living space close to shops and green space.
Residents benefit from off-street parking and well-kept communal gardens within the development. The property is offered as share of freehold with a small ground rent (£200). It sits near Brent Street amenities and Sunny Hill Park, with good local schools and reliable mobile signal.
Buyers should note the building’s age and solid brick construction; there appears to be no built-in wall insulation, so heating efficiency could be improved. Crime levels in the area are above average and broadband speeds are only average. The flat is attractive for first-time buyers or investors seeking spacious accommodation in a gated setting, but may require some energy-efficiency or cosmetic updating to maximise potential.
1 bedroom flat for sale in Hendon Lodge, 31 Sunningfields Road, Greater London, NW4 — £285,000 • 1 bed • 1 bath • 545 ft²
1 bedroom flat for sale in Barford Close, Hendon, London, NW4 — £300,000 • 1 bed • 1 bath • 510 ft²
1 bedroom flat for sale in Moorhen Drive, Hendon, London, NW9 — £330,000 • 1 bed • 1 bath • 561 ft²
2 bedroom flat for sale in Great North Way, Hendon, London, NW4 — £395,000 • 2 bed • 1 bath • 917 ft²
1 bedroom flat for sale in Shearwater Drive, Hendon, London, NW9 — £300,000 • 1 bed • 1 bath • 484 ft²
1 bedroom flat for sale in Moorhen Drive, Hendon, London, NW9 — £330,000 • 1 bed • 1 bath • 630 ft²


































































































































































































































