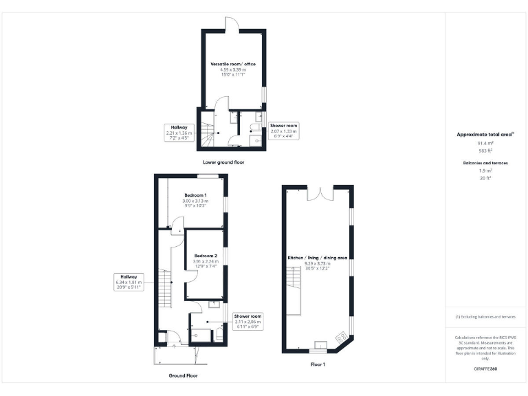
Versatile three-level stone home in Milnthorpe — character, location and flexible space..
- Detached stone-built, characterful home with vaulted living space
- Open-plan kitchen/diner/living with Juliet balcony and exposed beams
- Two double bedrooms, ground-floor shower room
- Lower-ground versatile room with separate entrance and shower room
- Off-street parking for a small car plus two resident permits nearby
- Chain free and centrally located in Milnthorpe (shops, schools, transport)
- Built pre-1900; external stone walls assumed uninsulated (energy upgrades possible)
- Small plot and limited private outdoor space
Set in the heart of Milnthorpe, this stone-built, chain-free home offers versatile three-level living with characterful features and modern convenience. The first-floor open-plan kitchen, dining and living room benefits from vaulted ceilings, exposed beams, a bespoke stone fireplace with gas fire, and patio doors to a Juliet balcony — a light-filled social hub for everyday life and entertaining.
Two double bedrooms and a well-appointed shower room sit on the ground floor, while the lower-ground level provides a second shower room and a flexible room ideal as a home office, workshop or hobby space. That lower level has its own external entrance and basic kitchenette fittings, adding practical flexibility for home-working or occasional independent use.
Practical points include off-street parking space suitable for a small car plus two resident parking permits nearby, mains gas central heating and double glazing. The property is within easy walking distance of schools, shops, healthcare and regular bus links, and the M6 is reachable within about ten minutes — convenient for commuting and everything Milnthorpe offers.
Buyers should note the property dates from before 1900 and the external stone walls are assumed to have no added insulation; some thermal or energy-efficiency upgrades may be desirable. The front external area is small and the on-site parking only fits a small car, so those needing larger private parking or garden space should check suitability. Overall this is a characterful, well-located home with flexible accommodation and clear potential for modest improvement.
2 bedroom terraced house for sale in Park Road, Milnthorpe, LA7 — £225,000 • 2 bed • 1 bath • 775 ft²
3 bedroom semi-detached house for sale in Haverflatts Lane, Milnthorpe, LA7 — £200,000 • 3 bed • 1 bath • 554 ft²
3 bedroom terraced house for sale in Church Street, Milnthorpe, LA7 — £175,000 • 3 bed • 1 bath • 755 ft²
3 bedroom terraced house for sale in Police Square, Milnthorpe, LA7 — £330,000 • 3 bed • 2 bath • 960 ft²
1 bedroom detached bungalow for sale in The Square, Milnthorpe, LA7 — £190,000 • 1 bed • 1 bath • 438 ft²
3 bedroom end of terrace house for sale in Windy Hill, Milnthorpe, Cumbria, LA7 — £355,000 • 3 bed • 2 bath • 1694 ft²






























































































