Spacious, well-equipped two-bed in a landmark development near transport and shops.
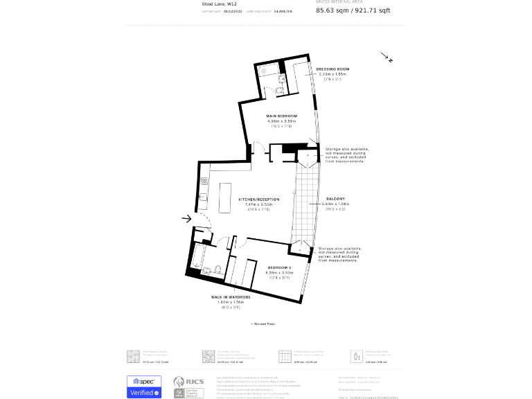
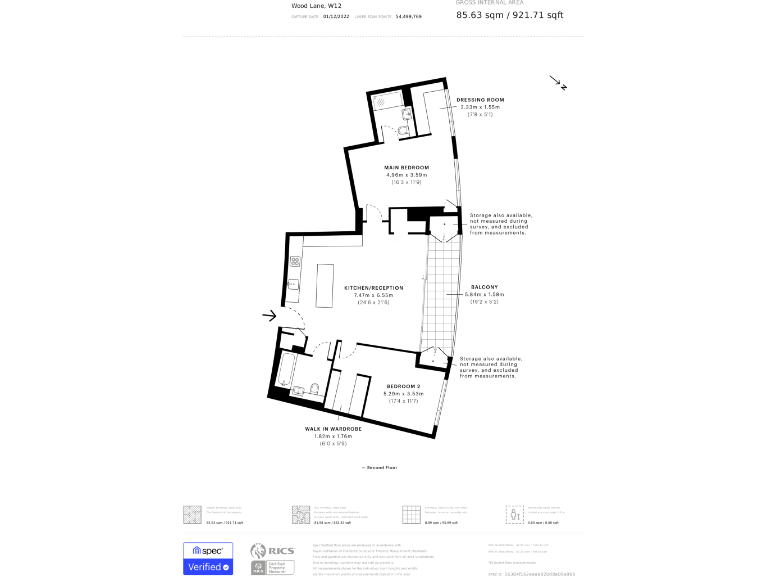
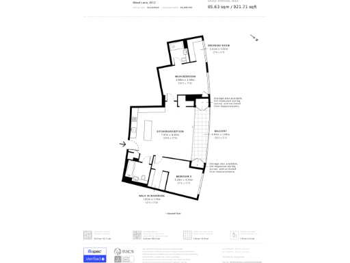
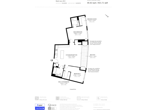
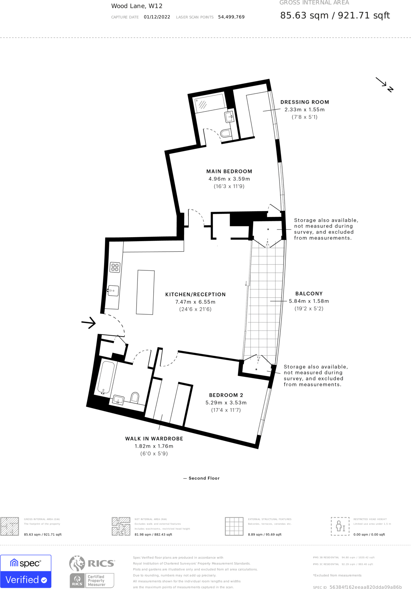
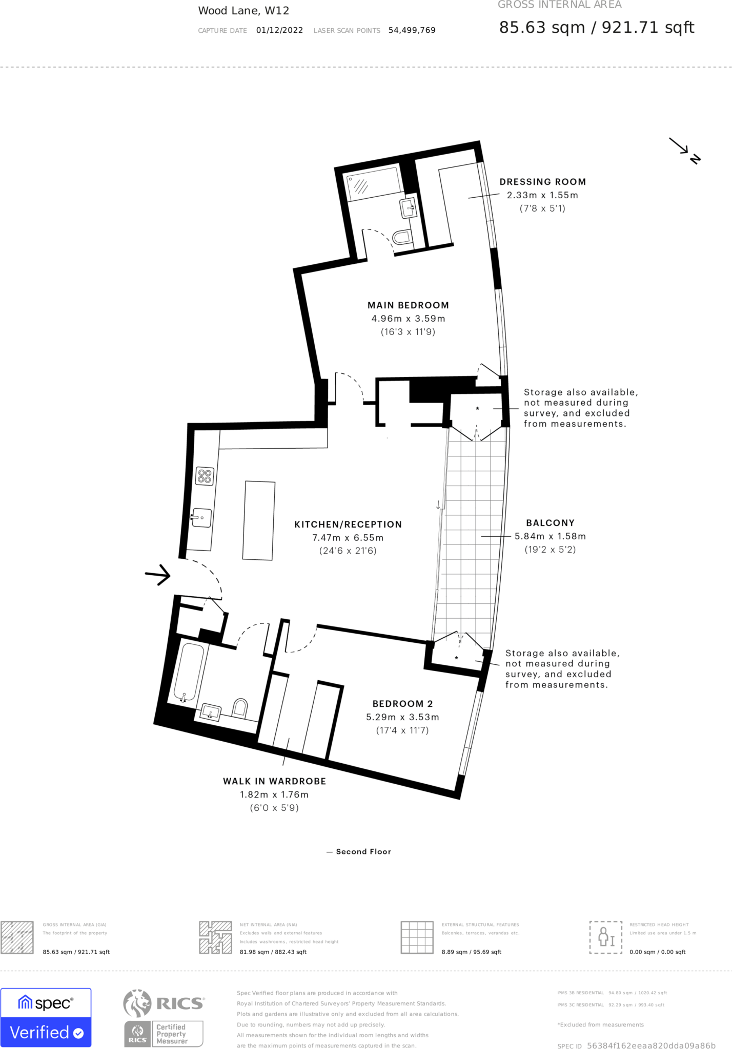
Large 921 sq ft two-bedroom apartment with private balcony
Located in Iconic Television Centre, beside White City Station
Access to Soho House gym and 24/7 concierge service
Fully integrated modern kitchen, open-plan living and high ceilings
Long lease (966 years) removes lease expiry concerns
Above-average service charge of £6,544 per year
Ground rent £600 per year — higher than typical
Area classified as very high crime and economically deprived
Set within the iconic Television Centre, this two-bedroom apartment combines contemporary design with convenient city living. The open-plan living area and fully integrated kitchen create a bright, sociable space, while a private balcony offers fresh air and views over the development. Access to Soho House gym and a 24/7 concierge add lifestyle and security benefits.
At 921 sq ft, the apartment is generous for a W12 flat and suits professionals, couples, or small families wanting proximity to White City Station and Westfield shopping and leisure. The long lease (966 years) removes typical leasehold timing concerns, and community heating provides consistent warmth.
Buyers should note practical running costs: an above-average service charge and a relatively high ground rent. The property sits in a high-crime, deprived area classification despite excellent transport links and fast broadband, which may affect resale expectations. The finish is contemporary and well-presented, but any buyer seeking a lower-cost ownership model should factor in communal fees.
This home offers a rare combination of space, amenities, and location in a landmark development, best suited to those prioritising convenience, lifestyle facilities, and a substantial apartment footprint in central West London.
2 bedroom flat for sale in Television Centre, 101 Wood Lane, London, W12 — £1,100,000 • 2 bed • 2 bath • 924 ft²
2 bedroom apartment for sale in Television Centre, London, W12 — £1,485,000 • 2 bed • 2 bath • 1440 ft²
2 bedroom apartment for sale in Television Centre, 101 Wood Lane, London, W12 — £895,000 • 2 bed • 2 bath • 901 ft²
2 bedroom flat for sale in Wood Lane, London, W12 — £1,100,000 • 2 bed • 2 bath • 872 ft²
2 bedroom apartment for sale in Wood Crescent, London, W12 — £885,000 • 2 bed • 2 bath • 862 ft²
2 bedroom apartment for sale in Television Centre, 101 Wood Lane, London, W12 — £1,100,000 • 2 bed • 2 bath • 978 ft²


















































































































