**Standout Features:**
- Recently extensively refurbished terraced house
- Modern kitchen and bathroom with contemporary designs
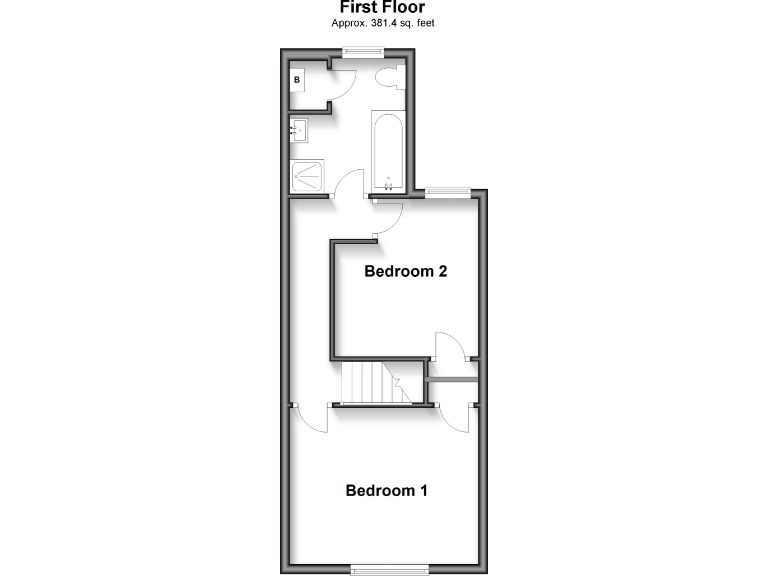
- Two spacious bedrooms and a separate upstairs bathroom
- Large, beautifully landscaped rear garden perfect for family activities
- Freehold tenure with affordable council tax
- Located in a desirable and affluent suburb
**Potential Concerns:**
- Average room sizes may not suit everyone
- Solid brick walls without insulation (assumed)
Step into this immaculate, extensively refurbished Victorian terrace, perfectly poised for first-time buyers seeking a move-in ready home. The property features a modern kitchen and bathroom, complemented by new central heating and double glazing, ensuring comfort and efficiency. Boasting two well-sized bedrooms and a separate upstairs bathroom, there’s ample space for small families or professionals.
The exterior delights with a generous, landscaped rear garden—a perfect canvas for outdoor gatherings or peaceful retreats. Nestled within a community surrounded by excellent schools, parks, and local amenities, this home offers both comfort and convenience in a highly sought-after location. With an average crime rate and fast broadband speeds, safety and connectivity are priorities here.
While the average room sizes and solid brick walls without insulation may pose minor considerations, this property’s newly renovated status and affordability at £260,000 make it an incredible opportunity. Don’t miss your chance to claim this charming home that supports a comfortable lifestyle—schedule your viewing today to avoid disappointment!
2 bedroom terraced house for sale in Mount Road, Borstal, Rochester, Kent, ME1 — £240,000 • 2 bed • 1 bath • 646 ft²
4 bedroom terraced house for sale in The Fairway, Rochester, Kent, ME1 — £350,000 • 4 bed • 1 bath • 779 ft²
2 bedroom terraced house for sale in Bryant Road, Strood, Rochester, Kent, ME2 — £240,000 • 2 bed • 1 bath • 700 ft²
3 bedroom terraced house for sale in Hayward Avenue, Strood, Rochester, Kent, ME2 — £260,000 • 3 bed • 1 bath • 719 ft²
2 bedroom terraced house for sale in Arethusa Road, Rochester, Kent. ME1 — £260,000 • 2 bed • 1 bath • 721 ft²
2 bedroom terraced house for sale in The Tideway, Rochester, Kent, ME1 — £280,000 • 2 bed • 1 bath • 679 ft²














































