Shared-ownership home with large rear garden and two parking spaces.
Shared ownership 65% interest only
South-facing corner garden, generous outdoor space
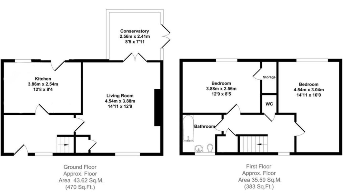
Two king-size bedrooms, conservatory with garden outlook
Allocated two off-street parking spaces
Electric room heaters; no gas central heating
EPC rating E — potential for energy improvements
Leasehold with local-connection restriction to the village
Medium flood risk; buyers should obtain detailed advice
This two-bedroom semi in Snitterfield is aimed squarely at first-time buyers seeking an affordable route into village life via shared ownership (65%). The house offers practical living space across an average-sized footprint, with two king-size bedrooms and a light conservatory overlooking a generous south-facing corner garden.
Practical benefits include two allocated off-street parking spaces and a peaceful rural setting close to good primary and secondary schools. The layout is traditional and straightforward, with a living room, kitchen and conservatory on the ground floor, and bedrooms and bathroom upstairs — a comfortable home for a couple or small family.
Buyers should note this is a leasehold shared ownership property with a local-connection restriction as part of the agreement. Heating is by electric room heaters rather than a central gas system, and the EPC is rated E, so budgets should allow for potential heating and efficiency improvements. There is a medium flood risk in the area, which buyers will want to investigate further.
Overall this property represents a sensible first-step purchase: good outdoor space, parking and a desirable village location, balanced against the constraints and running costs associated with the shared-ownership lease and existing heating/efficiency standard.
2 bedroom semi-detached house for sale in Damson Way, Bidford-On-Avon, Alcester, B50 — £108,000 • 2 bed • 1 bath • 776 ft²
2 bedroom end of terrace house for sale in Holland Meadow, Welford On Avon, Stratford-Upon-Avon, CV37 — £185,500 • 2 bed • 1 bath • 639 ft²
2 bedroom terraced house for sale in Old School Mead, Bidford-On-Avon, Alcester, B50 — £110,000 • 2 bed • 1 bath • 636 ft²
2 bedroom terraced house for sale in Old School Mead, Bidford-On-Avon, Alcester, B50 — £220,000 • 2 bed • 2 bath • 636 ft²
2 bedroom semi-detached house for sale in Damson Way, Bidford-On-Avon, Alcester, B50 — £270,000 • 2 bed • 1 bath • 776 ft²
3 bedroom semi-detached house for sale in Webb Grove, Hockley Heath, Solihull, B94 — £212,500 • 3 bed • 2 bath • 912 ft²


































































