Chain-free family home with large garden and strong school catchments.
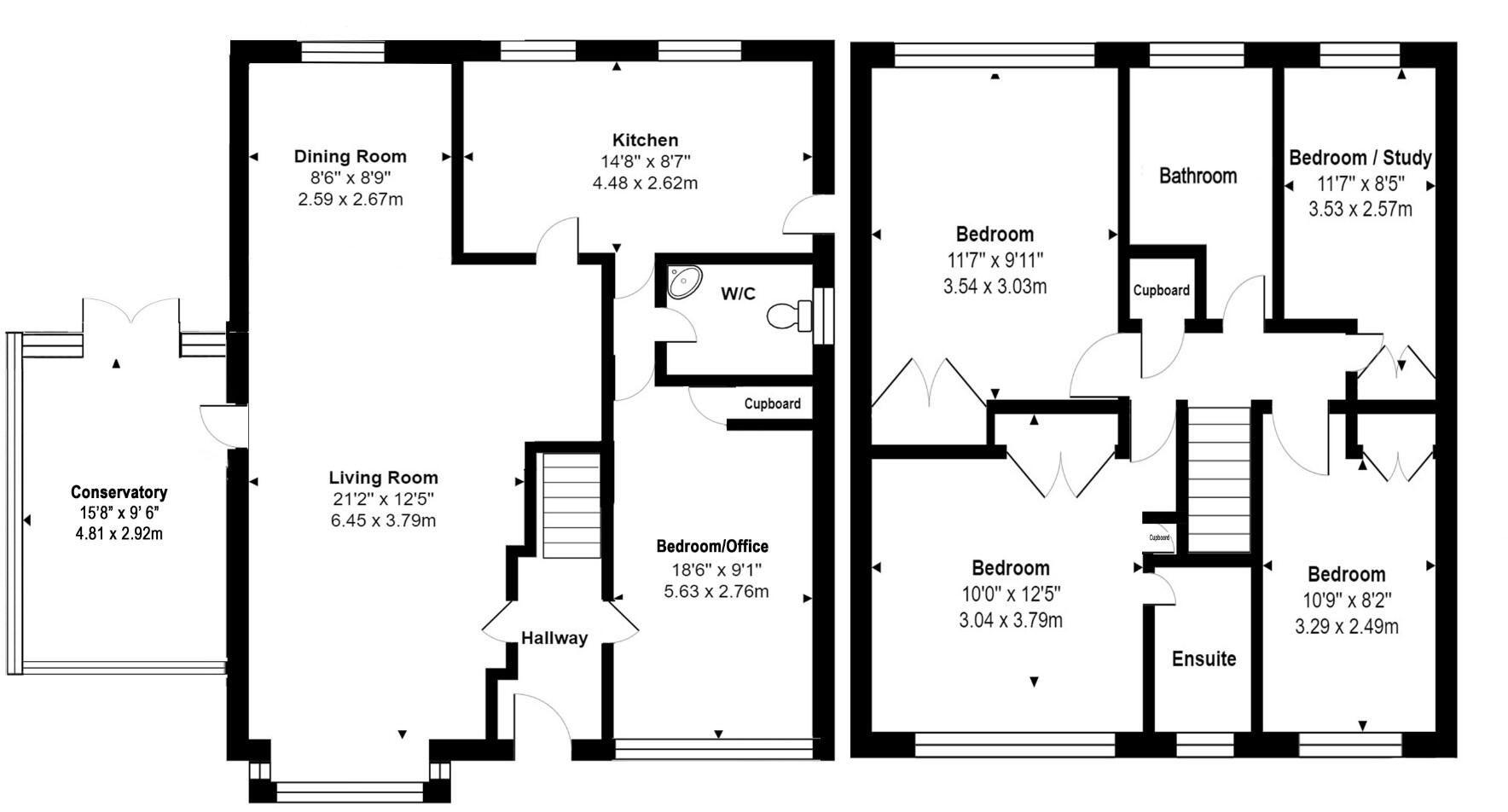
Detached five-bedroom family home with converted garage as bedroom or office
Spacious and versatile, this detached five-bedroom family home sits in sought-after Bosham within easy reach of schools, the quay and the train station. The layout includes a separate fitted kitchen, a large lounge/diner with open-plan dining/snug space, and a converted garage currently used as a fifth bedroom or home office. A sunny, lawned rear garden with patio and raised beds offers private outdoor space for children and entertaining.
Practical strengths include a large driveway with room for up to three cars, gas central heating, double glazing, fast broadband availability and no flood risk. The property is chain free with probate granted, allowing a straightforward purchase process for buyers ready to move quickly.
The house does require modernisation throughout and presents clear potential for improvement or extension (subject to planning permission). Buyers should expect refurbishment works rather than a ready-to-move-in finish; this is reflected in the marketing and offers scope to add value for growing families who want to personalise a home in a premium village location.
For families, the neighbourhood is a major draw: excellent local primary and secondary schools, low crime, pleasant countryside/seaside character and easy A27 access make daily life convenient. Investors or extend/convert buyers will also find appeal in the plot size and potential to reconfigure or enlarge the property (planning required).
4 bedroom detached house for sale in Stanbury Close, Bosham, Chichester, PO18 — £565,000 • 4 bed • 2 bath • 1596 ft²
4 bedroom detached house for sale in Stanbury Close, Bosham, PO18 — £499,950 • 4 bed • 2 bath • 2000 ft²
3 bedroom detached house for sale in Williams Road, Bosham, Chichester, West Sussex, PO18 — £490,000 • 3 bed • 1 bath • 793 ft²
2 bedroom semi-detached house for sale in Penwarden Way, Bosham, Chichester, West Sussex, PO18 — £385,000 • 2 bed • 1 bath • 1047 ft²
4 bedroom detached house for sale in Bosham Lane, Bosham, West Sussex, PO18 — £750,000 • 4 bed • 2 bath • 1881 ft²
3 bedroom semi-detached house for sale in Arnold Way, Bosham, PO18 — £355,000 • 3 bed • 1 bath • 852 ft²






































































































