Family-ready detached home near schools, amenities and excellent transport links..
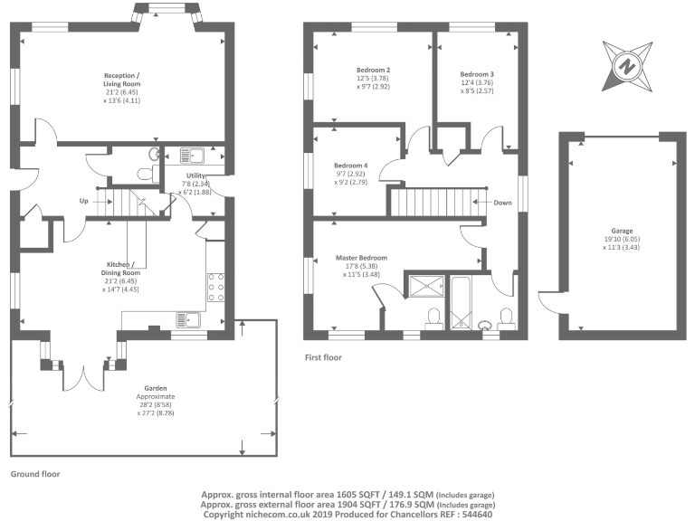
Four bedrooms with en-suite to master
Single garage with personal door and driveway parking
Ground-floor WC plus utility space
Private, enclosed rear garden; low-maintenance
No onward chain; available vacant or tenant-retained option
Close proximity to multiple Good-rated schools
Fast broadband, excellent mobile signal, low crime
Council tax above average for the area
Set on the modern Kingsmere development in Bicester, this four-bedroom detached house offers comfortable family living with practical layout and sensible running costs. The ground floor includes a handy WC, separate utility space and an open kitchen/diner that opens to a private, enclosed rear garden — ideal for children and low-maintenance outdoor time. The master bedroom benefits from an en-suite and there is a single garage with personal access plus driveway parking.
Kingsmere sits close to schools, local shops, pubs and green spaces while keeping excellent road and rail links to Oxford, London and the Midlands. Broadband and mobile signals are strong here, and the wider area is affluent with low crime, making it suitable for growing families seeking convenience and peace of mind.
The property is freehold and offered with no onward chain and available vacant, though there is also scope to retain a sitting tenant if required — useful for buyers considering an investment option. The house is an average-sized detached home (approx. 1,576 sq ft) with standard ceiling heights and typical thermal performance for its build.
Notable practical points: council tax is above average for the area, and buyers should be aware this is a modern development home rather than a period property. Overall, the home presents a straightforward, family-friendly opportunity in a well-connected village setting with potential for modest cosmetic updates to personalise living spaces.
4 bedroom link detached house for sale in Ludlow Road, Bicester, OX26 — £475,000 • 4 bed • 3 bath • 757 ft²
4 bedroom detached house for sale in Perth Road, Bicester, Oxfordshire, OX26 — £625,000 • 4 bed • 2 bath • 1535 ft²
4 bedroom detached house for sale in Kingston Drive, Bicester, Oxfordshire, OX26 — £550,000 • 4 bed • 2 bath • 1409 ft²
4 bedroom town house for sale in Fontwell Road, Bicester, OX26 — £450,000 • 4 bed • 2 bath • 1802 ft²
4 bedroom detached house for sale in Derwent Road, Bicester, OX26 — £495,000 • 4 bed • 2 bath • 1256 ft²
4 bedroom semi-detached house for sale in Whitelands Way, Bicester, OX26 — £450,000 • 4 bed • 3 bath • 1576 ft²














































































































































