Large town-centre freehold office — short lease, immediate yield, redevelopment potential..
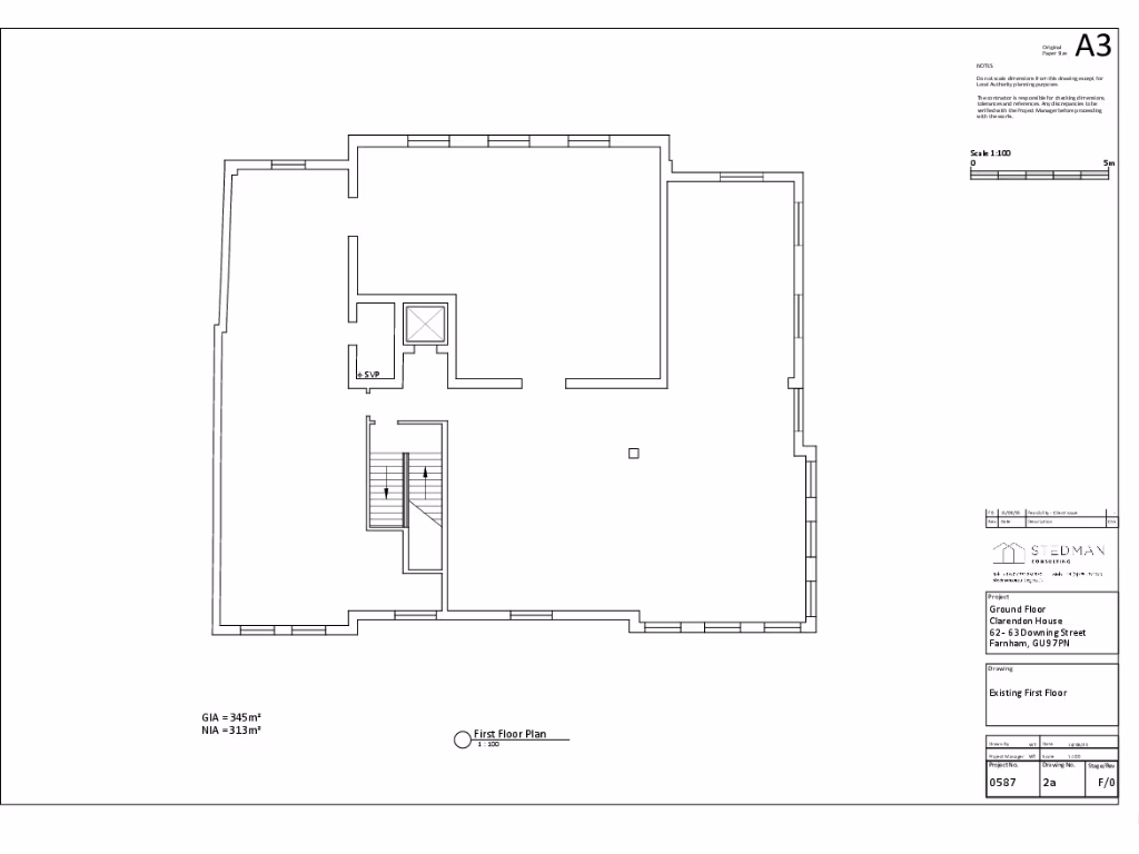
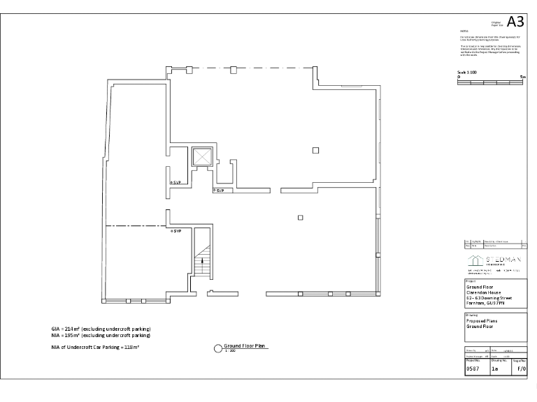
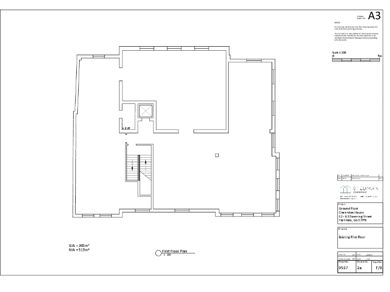
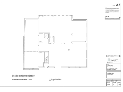
Freehold three-storey office building, 8,051 sq ft NIA
A prominent freehold office building in the heart of Farnham, Clarendon House offers a substantial town-centre footprint of 8,051 sq ft across three storeys with 15 allocated parking spaces, including undercroft parking. The property is arranged largely open plan with plentiful natural light on three elevations, kitchen and WCs on every floor and shower facilities at ground level — suited to continued office use or conversion to alternative uses subject to planning consent.
Currently let in its entirety to Leightons Holdings Limited at a passing rent of £155,000 pa. The lease expires on 29 April 2026, making this an obvious short-term income asset for a buyer seeking immediate yield or a near-term redevelopment/refurbishment opportunity once vacant.
Key positives include the freehold tenure, strong town-centre position within walking distance of Farnham station and retail amenities, and good road links to the M3/M25 corridors. Material drawbacks are the imminent lease expiry (one year remaining), which will deter many mortgage lenders, and the town centre’s higher recorded crime level — both factors to weigh when assessing funding, holding strategy and refurbishment plans.
This building will suit an investor comfortable with lease-end repositioning, an owner-occupier able to take vacant possession in the short term, or a developer seeking a central site with flexible floor plates. Any change of use or significant works will require the necessary planning consents and should factor in refurbishment and security improvements.
Office for sale in Park House & Katherine House, South Street, Farnham Surrey, GU9 7QQ, GU9 — £1,500,000 • 1 bed • 1 bath • 5528 ft²
Office for sale in 232 Farnborough Road, Farnborough, GU14 7JR, GU14 — £595,000 • 1 bed • 1 bath • 2782 ft²
Office for sale in 161 Fleet Road, Fleet, Hampshire, GU51 3PD, GU51 — £750,000 • 1 bed • 3 bath • 4522 ft²
Office for sale in ESPA House, Millenium Centre, Crosby Way, Farnham, GU9 7XX, GU9 — £1,750,000 • 1 bed • 1 bath • 8257 ft²
High street retail property for sale in 61 High Street, Leatherhead, KT22 8AQ, KT22 — £525,000 • 1 bed • 1 bath • 1583 ft²
2 bedroom house for sale in Borelli Mews, Farnham, GU9 — £425,000 • 2 bed • 1 bath • 688 ft²


















