Bright family home near Victoria Park with garden and transport links.
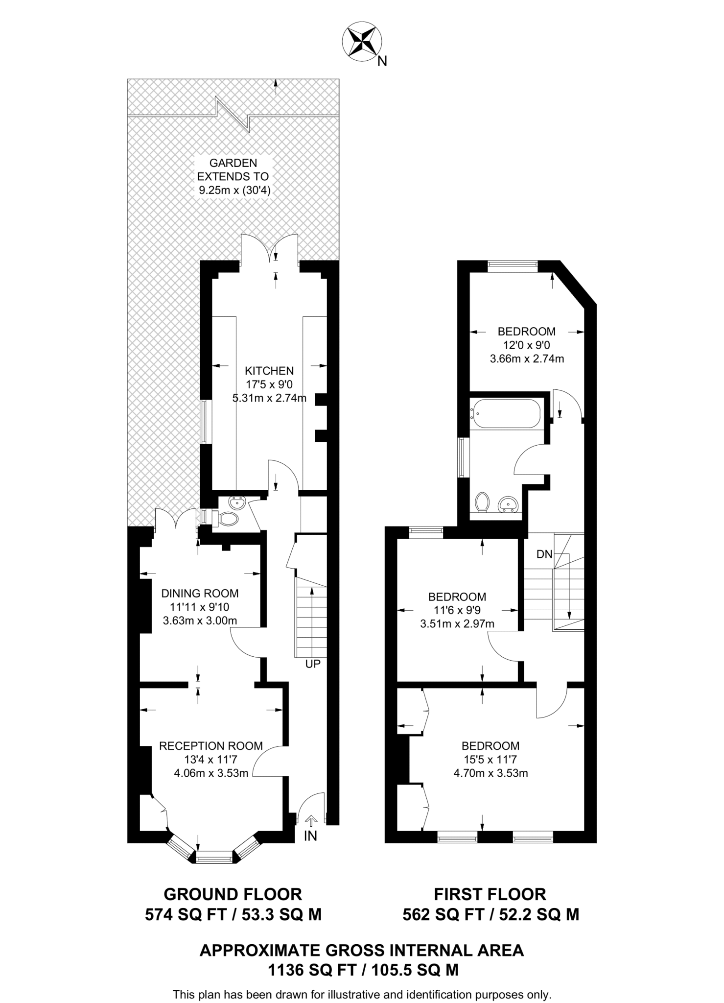
Bay-fronted double reception room with period features
This bay-fronted Victorian end-of-terrace blends period charm with modern living across two floors. The bright double reception room and a contemporary separate kitchen with double doors create a natural flow to the private rear garden, ideal for relaxed family time and weekend entertaining. The property is offered freehold and with no onward chain, simplifying purchase.
Three well-proportioned bedrooms and a stylish bathroom suit a growing family, while Homerton Station and local buses provide straightforward links into the City and wider London. Victoria Park is a short walk away, offering extensive green space and leisure options. Nearby schools include several Good-rated primaries and the Outstanding Mossbourne Victoria Park Academy.
There is practical scope for improvement: the house was built 1900–1929 with solid brick walls (insulation assumed absent) and some roof maintenance appears necessary. Double glazing is present but install date is unknown. The main heating runs from a mains-gas boiler and radiators. Buyers should budget for possible insulation, roof works and a cosmetic refresh to fully modernise the home and improve energy performance.
Be aware the property sits in an area with higher crime levels and wider deprivation indicators; buyers should consider local safety measures and factor this into plans. For purchasers seeking period character close to green space and city links, this property offers strong potential once the essential maintenance and upgrade items are addressed.
3 bedroom terraced house for sale in Millfields Road, Lower Clapton, London, E5 — £1,100,000 • 3 bed • 1 bath • 1239 ft²
3 bedroom end of terrace house for sale in Chevet Street, Hackney, London, E9 — £975,000 • 3 bed • 1 bath • 1042 ft²
4 bedroom terraced house for sale in Bushberry Road, E9 — £1,150,000 • 4 bed • 2 bath • 1289 ft²
3 bedroom terraced house for sale in Wick Road, Hackney, London, E9 — £725,000 • 3 bed • 2 bath • 956 ft²
3 bedroom terraced house for sale in Elderfield Road, Lower Clapton, London, E5 — £1,125,000 • 3 bed • 1 bath • 1482 ft²
3 bedroom end of terrace house for sale in RECTORY ROAD, Manor Park, London, E12 — £480,000 • 3 bed • 2 bath • 1172 ft²














































































