Secure modern flat near Victoria Park with open-plan living and easy City access.
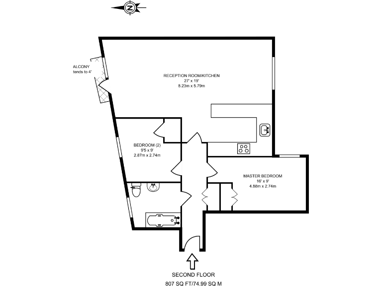
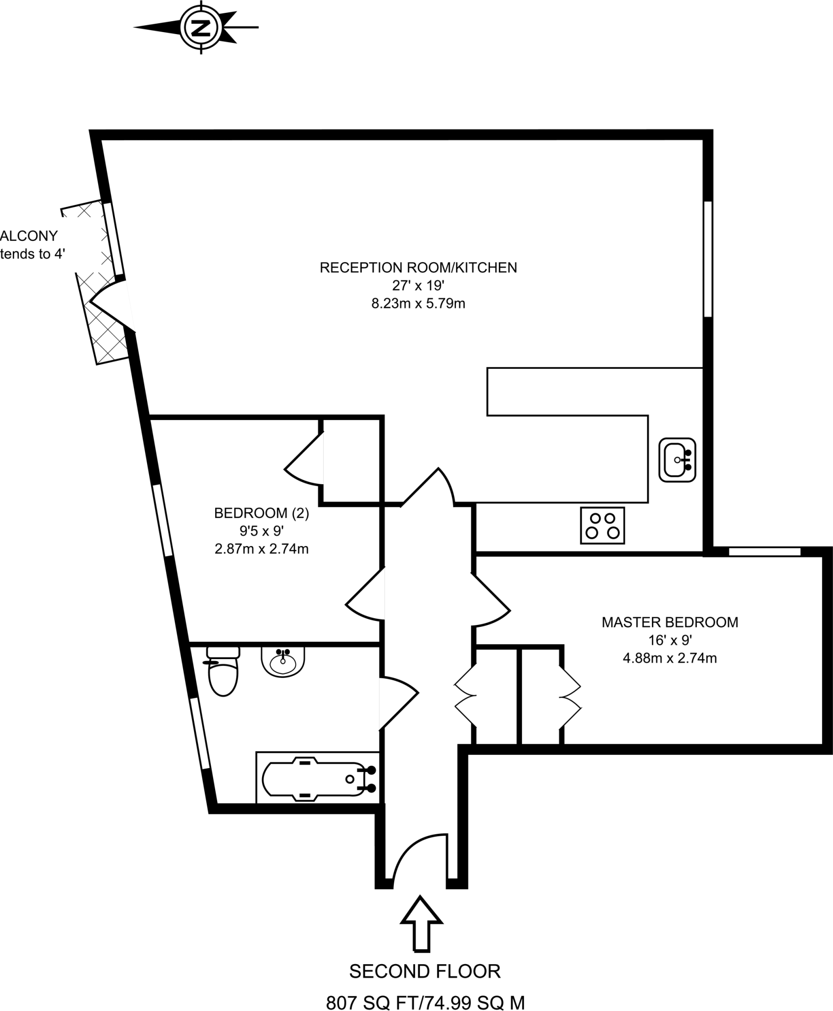
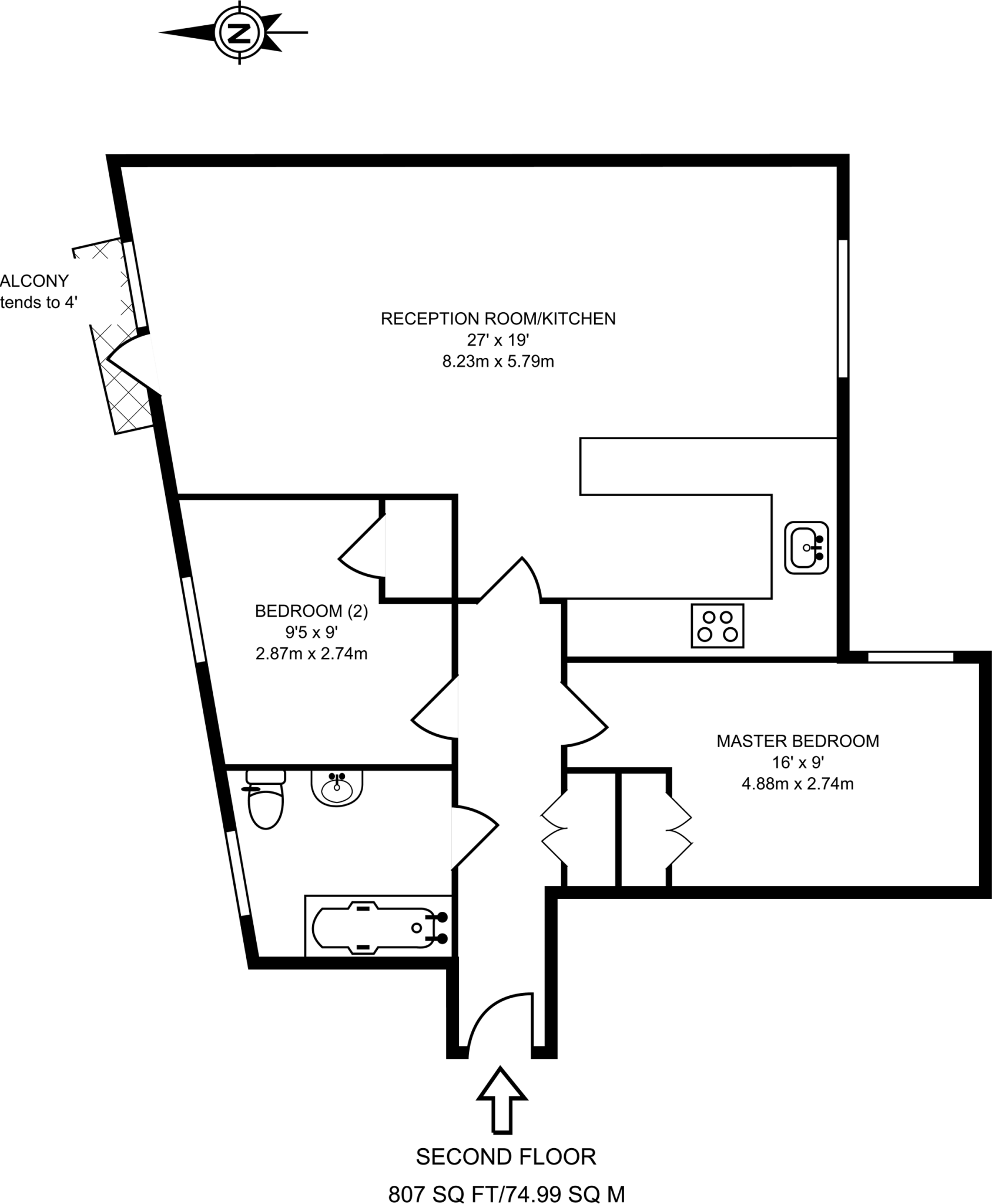
Second-floor two-bedroom apartment with balcony
A bright two-bedroom second-floor apartment in a secure modern development, minutes from Victoria Park and Bethnal Green Underground. The open-plan reception and kitchen open onto a balcony, giving extra living space and street views. Both bedrooms are well proportioned and the bathroom is sleek and contemporary.
Practical costs are straightforward: a 107-year lease remains, service charge about £1,850 pa and ground rent £300 pa. Heating is electric with room heaters rather than gas central heating, which may mean higher running costs compared with gas-heated flats.
The area offers excellent transport into the City, Shoreditch and Docklands and a wide range of local amenities, cafes and parks. Note local crime levels are higher than average and the neighbourhood is classified as deprived, factors to weigh for families and buyers seeking quieter streets.
Overall this is a sensible purchase for a first-time buyer or investor seeking a ready-to-live-in, low-maintenance flat near central London attractions, with potential to add value through cosmetic updating where desired.
2 bedroom flat for sale in The Watergarden Apartments, Sceptre Road, Bethnal Green, London, E2 — £525,000 • 2 bed • 2 bath • 710 ft²
2 bedroom apartment for sale in Sceptre Road, London, E2 — £500,000 • 2 bed • 2 bath • 668 ft²
2 bedroom flat for sale in Treadway Street, Bethnal Green, London, E2 — £500,000 • 2 bed • 1 bath • 626 ft²
2 bedroom apartment for sale in Calcraft House, Bonner Road, Bethnal Green, E2 — £440,000 • 2 bed • 1 bath • 623 ft²
2 bedroom flat for sale in City View House, Bethnal Green Road, Bethnal Green, London, E2 — £490,000 • 2 bed • 1 bath • 630 ft²
2 bedroom flat for sale in Hollybush Place, Bethnal Green, London, E2 — £400,000 • 2 bed • 1 bath • 614 ft²


















































































