**Standout Features:**
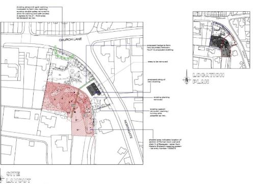
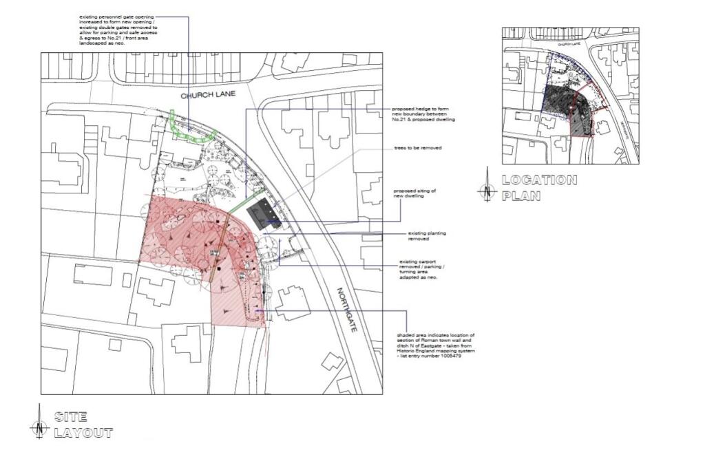
- Outline planning permission (2022/1037/ful) granted for a two-storey detached 2-bedroom chalet
- Prime uphill location in historic Lincoln
- Gated driveway and private walled garden
- Close proximity to well-rated schools and university
- Excellent mobile and broadband connectivity
**Summary:**
Discover a unique opportunity to build your dream home in a prime location adjacent to Northgate in Lincoln. With outline planning permission already secured for a modern two-storey chalet, this generously sized plot offers potential for a stylish 2-bedroom residence featuring an open-plan living space, study, utility area, and family bathroom. The property currently benefits from a gated driveway and a private walled garden, perfect for creating an intimate outdoor oasis.
Situated in the vibrant historic district of Lincoln, you'll enjoy easy access to an array of amenities, including shops, restaurants, and recreational facilities. The area boasts excellent educational options, including well-respected primary and secondary schools within walking distance. Although the local crime rate is above average, the plot’s affluent surroundings provide a comforting sense of community.
With its substantial size and gated privacy, this property is ideal for families or investors looking to capitalize on the demand for modern homes in sought-after neighborhoods. Don’t miss this exceptional chance to secure a location to create a bespoke living space tailored to your needs—invest in your future today!
Land for sale in Carline Road, Lincoln, Lincolnshire, LN1 — £180,000 • 1 bed • 1 bath
Land for sale in Building Plot Adj, 38 Victoria Street , Lincoln, Lincolnshire, LN1 — £80,000 • 1 bed • 1 bath
5 bedroom detached house for sale in House & Building Plot, 21 Northgate, Lincoln, Lincolnshire, LN2 — £1,250,000 • 5 bed • 3 bath • 3023 ft²
Land for sale in Carline Road, Lincoln, LN1 — £475,000 • 1 bed • 1 bath
4 bedroom detached house for sale in 2 Cottesford Place, James Street, Lincoln, Lincolnshire, LN2 1QF, LN2 — £650,000 • 4 bed • 1 bath • 3896 ft²
Residential development for sale in Residential Development, 20 Carline Road, Lincoln, LN1 1HG, LN1 — £475,000 • 1 bed • 1 bath • 4811 ft²






















































