Bright family home with large garden, double garage and garden studio.
Three double bedrooms in well‑proportioned layout
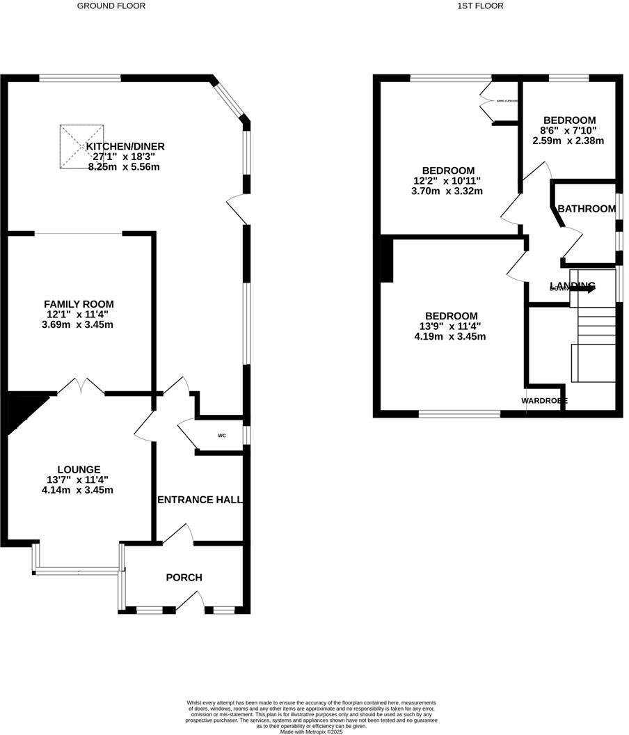
Set beside Alexandra Park, this newly renovated three‑bedroom semi delivers comfortable family living with substantial outdoor space. A bright bay‑front living room and extended open‑plan kitchen/dining area capture natural light and connect directly to a tiered rear garden and patio, making indoor‑outdoor life easy for children and entertaining.
The house dates from the 1930s but has been updated throughout: modern kitchen units, contemporary bathroom, spotlit open plan space and an electric up‑and‑over garage door. A detached double garage and powered garden studio add practical workspace and secure parking — useful for home working, hobbies or storage.
Local amenities are strong: short walk to Hastings town centre, good transport links, fast broadband and excellent mobile signal. Primary schools nearby include Good and Outstanding options; the nearest secondary (Ark Alexandra Academy) currently requires improvement, which is important for families to note.
Practical points are straightforward: freehold tenure, no flood risk, low crime and an affluent neighbourhood. The multi‑storey layout means stairs between floors, and as a 1930s property there may be ongoing upkeep typical of older homes despite recent renovations. Overall this is a well‑presented family home with generous garden and useful outbuildings, ready for everyday living or further personalisation.
3 bedroom semi-detached house for sale in St. Helens Road, Hastings, TN34 — £375,000 • 3 bed • 2 bath • 1295 ft²
3 bedroom semi-detached house for sale in St. Helens Road, Hastings, TN34 — £365,000 • 3 bed • 1 bath • 1152 ft²
3 bedroom semi-detached house for sale in St. Helens Road, Hastings, TN34 — £350,000 • 3 bed • 1 bath • 882 ft²
3 bedroom semi-detached house for sale in St. Helens Road, Hastings, TN34 — £415,000 • 3 bed • 2 bath • 862 ft²
3 bedroom semi-detached house for sale in St. Helens Road, Hastings, TN34 — £390,000 • 3 bed • 1 bath • 1646 ft²
5 bedroom semi-detached house for sale in Lower Park Road, Hastings, TN34 — £685,000 • 5 bed • 2 bath • 2036 ft²






















































































