Characterful two-bedroom home with parking, garden and utility outhouse — ideal first purchase.
Bright dual-aspect living room with rustic fireplace and shutters
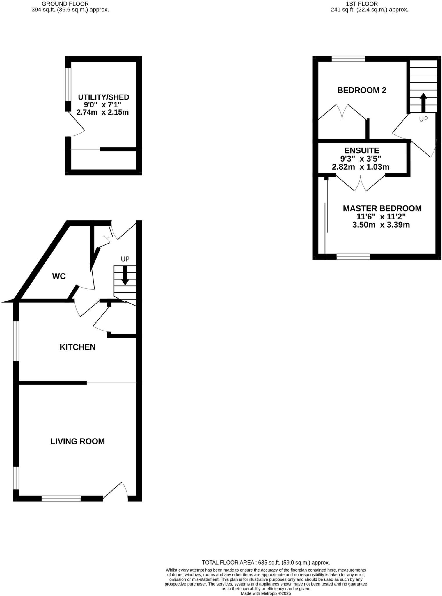
This compact two-bedroom end-of-terrace offers a blend of Victorian character and practical living in the heart of historic Nantwich. A bright, dual-aspect living room with shutters and a rustic fireplace makes for an immediate cosy welcome, while the open flow to the kitchen keeps day-to-day living straightforward and sociable. Two double bedrooms with built-in wardrobes include an ensuite to the principal bedroom, useful for first-time buyers or those downsizing.
Outside the property continues to be practical: a driveway for two cars provides rare off-street parking, a front garden with a small summer house creates a pleasant outdoor space, and a side seating area surrounded by mature hedges offers privacy. A separate outhouse with plumbing for a washing machine and room for a freezer keeps utilities out of the main rooms.
Buyers should note this is a small home (about 603 sq ft) in a pre-1900 solid-brick building; there is no confirmed wall insulation and the EPC is rated E, so energy improvements could be needed to reduce bills. Double glazing is present but install dates are unknown. The property is freehold and ready to occupy but has clear scope for targeted updating and insulation work to improve comfort and running costs.
Location is a genuine strength: Nantwich’s medieval streets, shops, regular market and good primary/secondary schools make this an appealing neighbourhood. Commuters have good road access and rail links nearby. Be aware the local recorded crime level is higher than average, so buyers should review local safety data and take that into account alongside the town’s benefits.
2 bedroom terraced house for sale in Barony Buildings, Nantwich, CW5 — £200,000 • 2 bed • 1 bath • 776 ft²
2 bedroom terraced house for sale in South Crofts, Nantwich, Cheshire, CW5 — £245,000 • 2 bed • 1 bath • 890 ft²
2 bedroom terraced house for sale in Rigbys Row, Nantwich, Cheshire, CW5 — £155,000 • 2 bed • 1 bath • 633 ft²
2 bedroom terraced house for sale in Taylor Drive, Nantwich, CW5 — £230,000 • 2 bed • 1 bath • 657 ft²
3 bedroom end of terrace house for sale in Queens Drive, Nantwich, CW5 — £250,000 • 3 bed • 1 bath • 883 ft²
2 bedroom end of terrace house for sale in Pratchetts Row, Nantwich, Cheshire, CW5 — £159,950 • 2 bed • 1 bath • 627 ft²


























































