Easy-care coastal living with communal gardens and long lease.
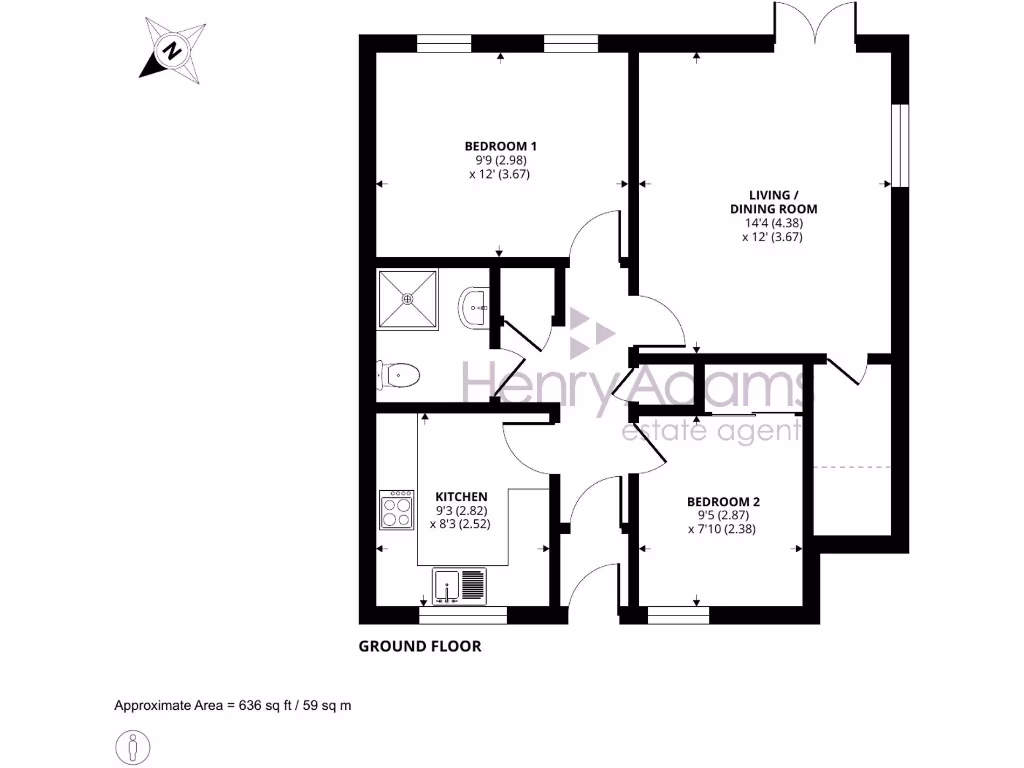
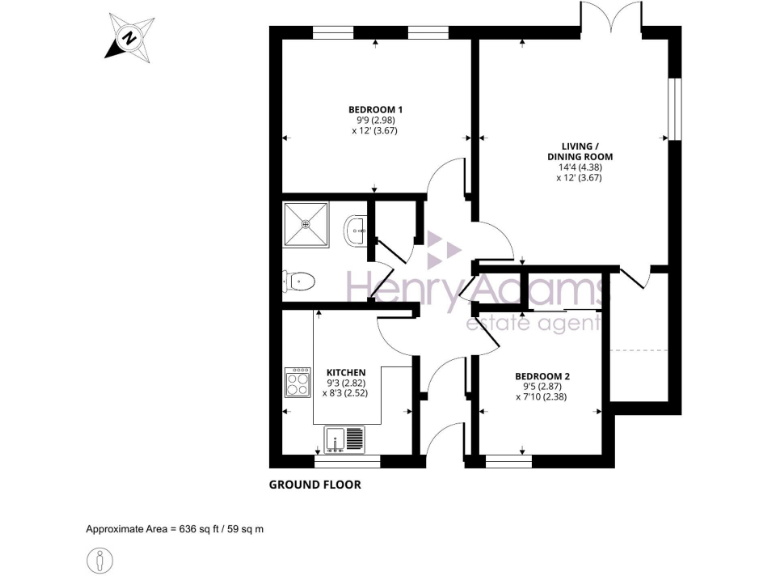
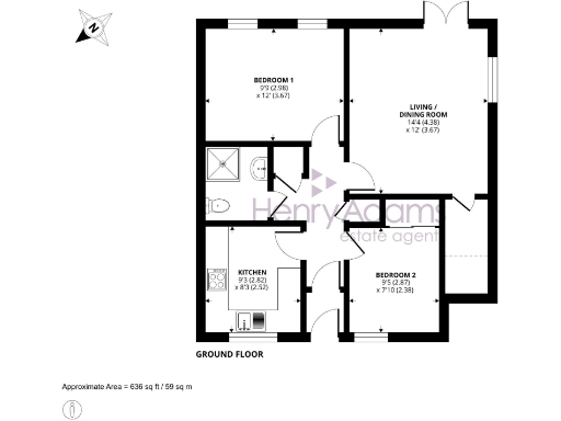
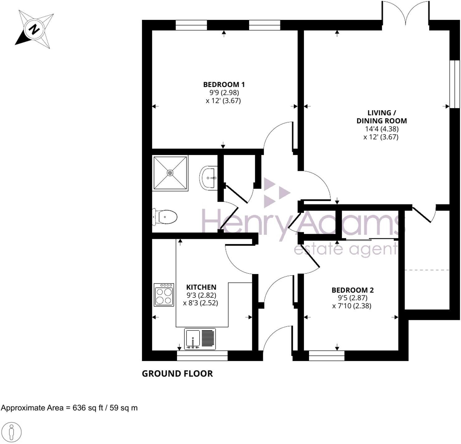
Ground-floor retirement flat for ages 60+ only
Two double bedrooms with built-in wardrobes
Living room opens to patio with a sea glimpse
Communal sea-facing patio, gardens, laundry, residents' lounge
149-year lease remaining; long-term security
Service charge approx £2,556 per year
Electric storage heating; EPC rating E
Off-street parking available on first-come, first-served basis
This ground-floor retirement flat in Selsey offers low-maintenance coastal living for buyers aged 60 and over. Two double bedrooms with built-in wardrobes and a bright living room that opens onto a private patio give comfortable, easy-care accommodation. Residents benefit from communal gardens, a sea-facing patio, laundry room and lounge for socialising.
Practical details support long-term ownership: the lease has 149 years remaining and the communal service charge is £2,556 per year. Heating is by electric storage heaters and the EPC rating is E; broadband and mobile signal are average for the area. Off-street parking is available on a first-come, first-served basis and external storage is included.
The flat is well suited to downsizers or retirement buyers wanting modest, level living close to the coast. The wet room layout can aid accessibility, while the communal outdoor spaces provide social and leisure opportunities without high maintenance. Note the limited private garden space and shared parking, which may not suit buyers needing dedicated off-road parking or larger outdoor areas.
2 bedroom retirement property for sale in Clayton Road, Selsey, PO20 — £170,000 • 2 bed • 1 bath • 634 ft²
2 bedroom retirement property for sale in Hillfield Road, Selsey, PO20 — £148,800 • 2 bed • 1 bath • 677 ft²
1 bedroom terraced house for sale in The Willows, Off Manor Farm Court, Selsey, PO20 0JT, PO20 — £155,000 • 1 bed • 1 bath • 553 ft²
1 bedroom apartment for sale in Barrack Lane, Aldwick, Bognor Regis, West Sussex, PO21 — £100,000 • 1 bed • 1 bath • 498 ft²
4 bedroom detached house for sale in Warner Road, Selsey, Chichester, West Sussex, PO20 — £429,500 • 4 bed • 2 bath • 1264 ft²
1 bedroom retirement property for sale in The Willows, Manor Farm Court, Selsey, PO20 — £125,000 • 1 bed • 1 bath • 507 ft²










































