**Standout Features:**
- Immaculate 1,058 sq.ft Grade A office suite
- 7 allocated parking spaces
- Newly renovated with fresh paint and carpet tiles
- Flexible layout with open plan area and dedicated meeting rooms
- Prime location adjacent to popular retail outlets
- Excellent transport connections, including nearby bus and train services
**Summary:**
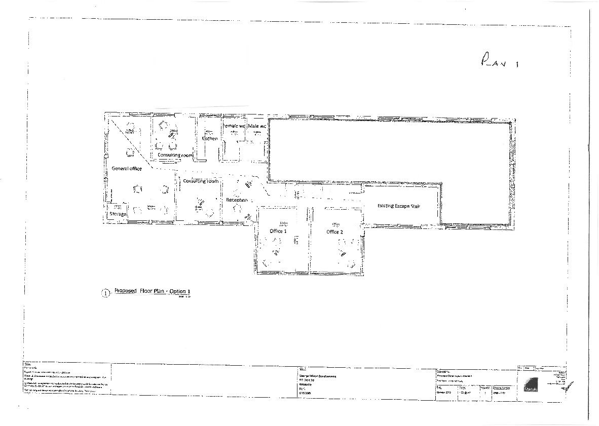
Discover a rare opportunity to acquire an exceptional Grade A office suite located in the heart of Whitstable, Kent. This newly renovated space features a large open plan area designed to foster productivity, complemented by a boardroom suitable for 8-10 people and two additional meeting rooms. You’ll also appreciate the convenience of a kitchenette and dedicated toilet facilities. Benefiting from 7 allocated parking spots, this office caters to your professional needs while offering easy accessibility via a bus stop just 100m away and a train station a short drive or stroll from your doorstep.
Situated within Markerstudy Business Park, enjoy the vibrant local amenities that include Halfords, Aldi, and Marks & Spencer, perfect for workday conveniences. With a 999-year leasehold at a competitive price of £220,000, this property not only serves as a remarkable workspace but also represents a solid investment opportunity. Potential buyers should act quickly, as prime office space like this is rarely available for long. Schedule your viewing today!
Light industrial facility for sale in Units 35 & 36, John Wilson Business Park, Reeves Way, Canterbury, Whitstable , Kent, CT5 3QT, CT5 — £435,000 • 1 bed • 1 bath • 5836 ft²
Office for sale in 3-5 Oaten Hill Place, Canterbury, CT1 — £300,000 • 1 bed • 1 bath • 1159 ft²
Office for sale in Beer Cart Lane, Canterbury, CT1 — £200,000 • 1 bed • 1 bath • 746 ft²
Office for sale in The Links, Herne Bay, Kent, CT6 — £155,000 • 1 bed • 1 bath • 957 ft²
Commercial property for sale in Canterbury Road, Whitstable, CT5 — £725,000 • 1 bed • 3 bath • 1000 ft²
Commercial property for sale in Tower Parade, Whitstable, CT5 — £385,000 • 1 bed • 1 bath • 624 ft²






















