Affordable renovation opportunity close to town amenities and transport.
Vacant three-bedroom mid-terrace with long rear garden
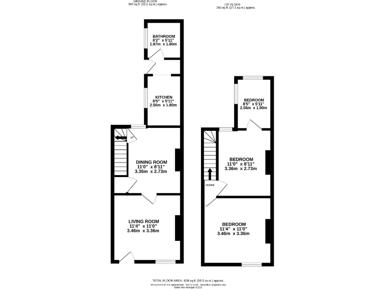
Small overall size — around 57 sqm (638 sq ft)
Double glazing and mains gas central heating present
Requires renovation; interior and garden are dated
Single-skin rear extension may affect mortgageability
Area classed very deprived; crime rate above average
Sold by livestream auction; guide price £70k–£90k
Admin fee and buyer’s premium payable on exchange
This three-bedroom mid-terrace in Lowestoft offers a low-entry purchase with sizeable upside for a buyer willing to renovate. The house is vacant, freehold and benefits from gas central heating, double glazing and a long rear garden. Its compact 57 sqm floor area and city-centre location place everyday shops, transport and several schools within easy reach.
The property requires improvement to realise its potential: the single-skin rear extension may limit mortgage options and the interior and garden are dated and in need of repair. The area is classified as very deprived with above-average crime, so buyer suitability is important.
Sold at livestream auction with guide price £70,000–£90,000, the sale suits cash buyers, investors or first-time buyers happy to carry works. There are additional sale costs to note (administration and buyer’s premium payable on exchange) — check the legal pack before bidding. Viewing opportunities are arranged prior to auction.
3 bedroom terraced house for sale in 29 Winifred Road, Great Yarmouth, Norfolk NR31 0BL, NR31 — £70,000 • 3 bed • 1 bath • 818 ft²
2 bedroom terraced house for sale in Beresford Road, Lowestoft, NR32 — £100,000 • 2 bed • 1 bath • 2401 ft²
3 bedroom semi-detached house for sale in Victoria Road, Lowestoft, NR33 — £170,000 • 3 bed • 1 bath • 829 ft²
3 bedroom terraced house for sale in Hall Road, Carlton Colville, NR33 — £100,000 • 3 bed • 1 bath • 672 ft²
3 bedroom terraced house for sale in 2 Queens Square, Regent Road, Great Yarmouth, Norfolk NR30 2AG, NR30 — £130,000 • 3 bed • 1 bath • 1086 ft²
2 bedroom terraced house for sale in 1 Sidegate Road, Great Yarmouth, Norfolk NR30 1JX, NR30 — £60,000 • 2 bed • 1 bath • 506 ft²






































































