**Property Highlights:**
- Modern semi-detached house built in 2006
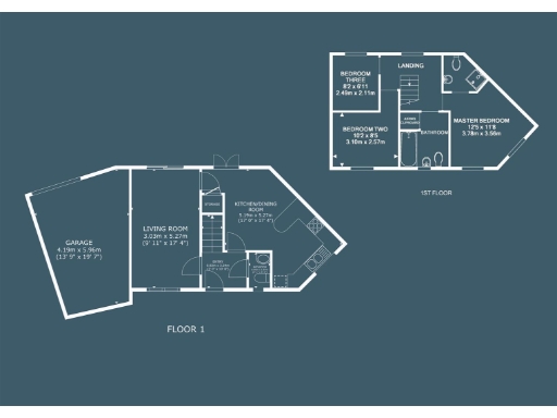
- 3 spacious bedrooms, including a master with en-suite
- 2 bathrooms and a downstairs cloakroom
- Open-plan kitchen/diner with inviting living space
- Enclosed rear garden, perfect for family activities
- Large single garage and gated driveway for secure parking
- EPC Rating: C
- Ideal location near Bridgwater Town Centre and M5 access
Nestled in a sought-after area of Bridgwater, this modern three-bedroom semi-detached property offers an excellent blend of comfort and practicality for families or investors. The open-plan kitchen/diner creates an inviting atmosphere, perfect for entertaining, while the separate lounge provides a cozy retreat. The spacious master bedroom features an en-suite, complemented by two additional bedrooms and a well-appointed family bathroom. An enclosed rear garden adds a private outdoor space for children to play or for summer gatherings.
While the property is in good condition, being built in 2006, prospective buyers should be aware that it is located in a transitional neighborhood with higher crime rates and some area deprivation. However, this presents a unique opportunity for renovations and personalization, setting the stage for future value appreciation. Located conveniently near schools and amenities, this home exudes potential and delivers a comfortable living environment. Don’t miss out on this family-friendly home; it won’t be on the market for long!
3 bedroom semi-detached house for sale in Castle Green Walk, Bridgwater, TA6 — £275,000 • 3 bed • 2 bath • 1335 ft²
3 bedroom detached house for sale in Halyard Drive, Bridgwater, TA6 — £300,000 • 3 bed • 2 bath • 1152 ft²
3 bedroom semi-detached house for sale in Griffen Close, Bridgwater, TA6 — £220,000 • 3 bed • 1 bath • 701 ft²
3 bedroom semi-detached house for sale in Carver Close, Wembdon, Bridgwater, Somerset, TA6 — £330,000 • 3 bed • 2 bath • 918 ft²
3 bedroom semi-detached house for sale in Knightsbridge Way, Bridgwater, TA6 — £265,000 • 3 bed • 1 bath • 835 ft²
3 bedroom semi-detached house for sale in Colley Lane, Bridgwater, TA6 — £289,000 • 3 bed • 2 bath • 685 ft²


























































































