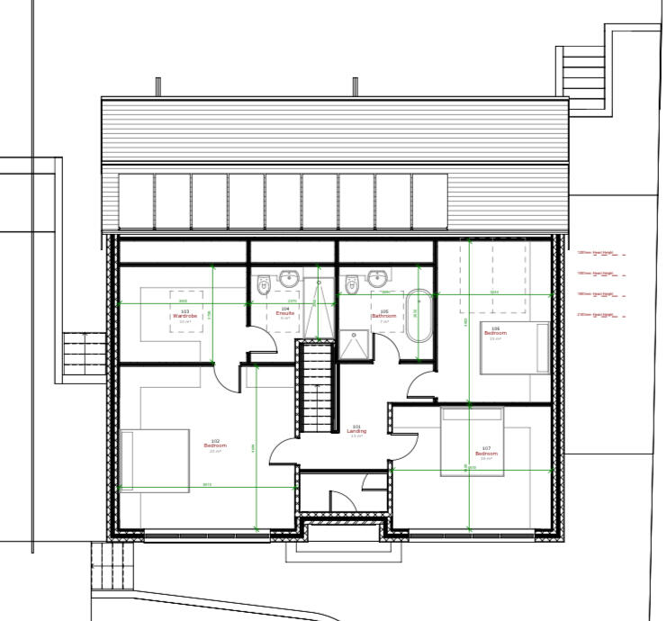
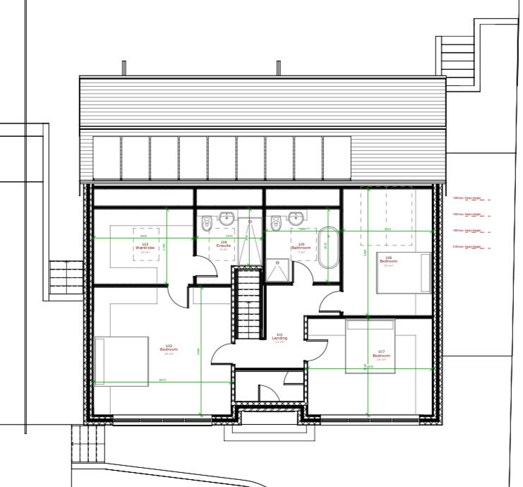
Large Lostock plot with approved planning for a 3,150 sq ft detached home — chain free.
Approved planning for a 3,150 sq ft detached home (Ref: 17927/24)
Substantial 0.24-acre plot opposite Bolton Golf Club
Existing two-bed bungalow provides immediate occupation or demolition option
Detached double garage, long driveway and excellent parking
Basement storage with conversion potential (subject to consent)
Leasehold: c.894 years remaining; ground rent £10 pa
Council Tax Band E — above-average running costs
Property dated (1930s–1940s); cavity walls assumed uninsulated
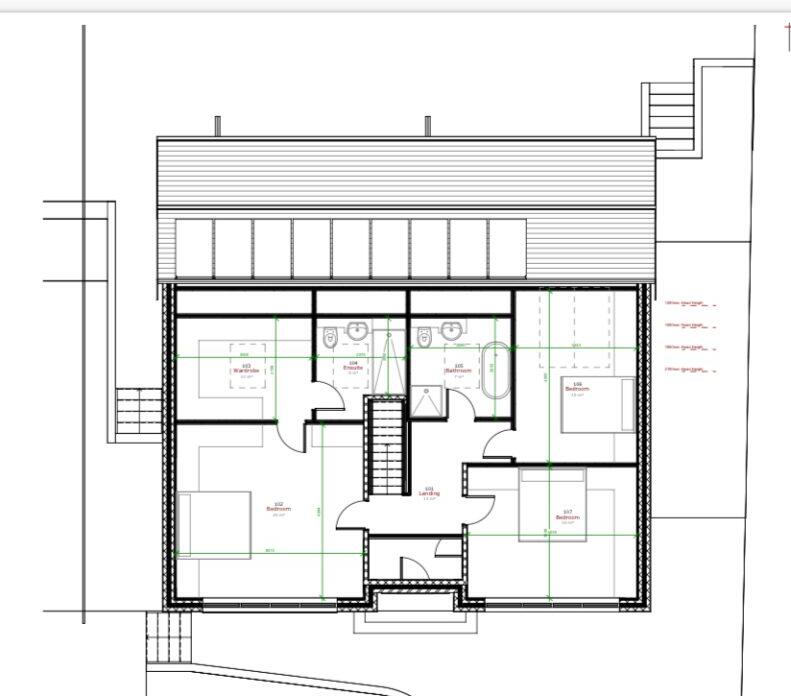
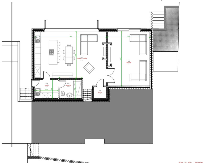
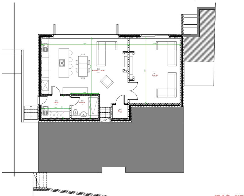
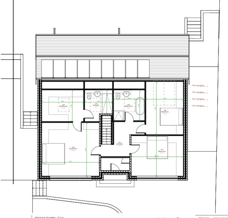
A rare development opportunity in Lostock with approved planning to build a bespoke detached house of approximately 3,150 sq ft (Ref: 17927/24). The site occupies a substantial 0.24-acre plot opposite Bolton Golf Club, with open views and a large rear garden. The existing two-bedroom bungalow provides immediate sheltered accommodation while works or demolition proceed.
The parcel appeals to self-builders, developers and investors who value location and scale. Approved planning (11 June 2024) removes a major planning barrier and accelerates project delivery. Existing features include a long driveway, detached double garage with power, extensive lower-level basement storage and main services on site (mains gas, electric, water, sewerage).
Buyers should note material facts: the property is leasehold (999-year original term with c.894 years remaining) and sits in Council Tax Band E (above average running costs). The bungalow dates from c.1930–1949 and will require refurbishment or demolition to realise full potential; walls are cavity-built with no known insulation. The sale is offered with no onward chain which may suit a quick start to redevelopment.
This opportunity combines a desirable Lostock address, excellent transport links and a large plot with planning consent already granted — a clear value driver for the right buyer prepared to manage renovation or build costs.
4 bedroom detached house for sale in St Andrews Road , Lostock , Bolton, BL6 — £1,125,000 • 4 bed • 5 bath • 10000 ft²
3 bedroom detached bungalow for sale in 29 Regent Road, Lostock, Bolton, BL6 4DG, BL6 — £1,100,000 • 3 bed • 2 bath • 3162 ft²
Land for sale in Dentdale Close, Lostock, Bolton, BL1 — £900,000 • 1 bed • 1 bath • 3000 ft²
3 bedroom detached house for sale in 22 Chorley New Road, Bolton. BL6 4AT, BL6 — £455,000 • 3 bed • 1 bath • 1038 ft²
5 bedroom detached house for sale in 8 Kilworth Drive, Lostock. Bolton. BL6 4RP, BL6 — £550,000 • 5 bed • 3 bath • 1247 ft²
Detached house for sale in Knowsley Fold, Heaton, BL1 5DQ, BL1 — £1,300,000 • 1 bed • 1 bath • 8500 ft²






















































































































































































































































































