Ready-to-move-in home with garden and parking, close to good local schools.
New build (2025) with 10-year warranty and ready Summer 2025
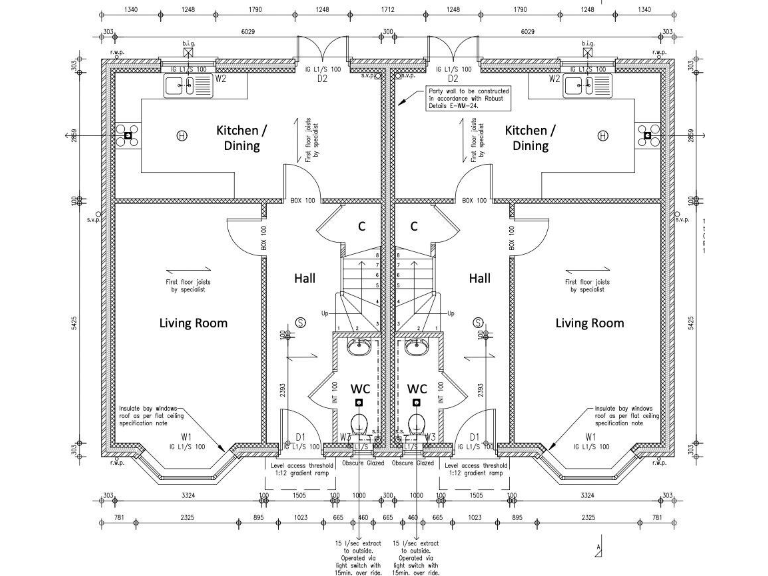
Open-plan kitchen/diner, separate lounge and downstairs WC
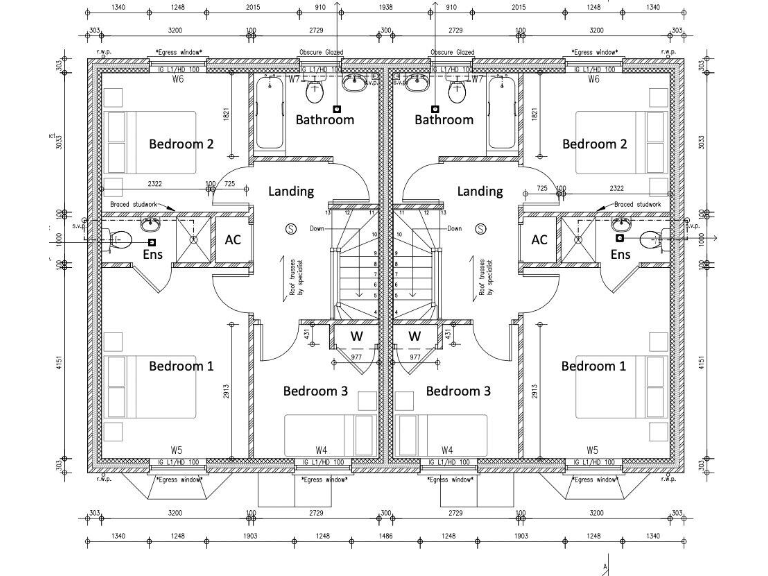
Master bedroom with ensuite; two further bedrooms and family bathroom
Air source heat pump and double glazing for lower running costs
Off-street parking for two cars and good-sized rear garden
Part of a 38-home development — not an isolated plot
Council tax band currently unknown; completion timing applies
Local area shows pockets of deprivation despite village amenities
Step into a brand-new three-bedroom home finished in 2025 with over 1,100 sq ft of flexible living space. The ground floor offers an open-plan kitchen/dining area, separate lounge and a downstairs WC — useful for family life and entertaining. The master bedroom includes an ensuite shower room and two further bedrooms share a family bathroom. The new kitchen and bathroom reduce immediate maintenance and the property comes with a 10-year build warranty.
Practical running costs are reduced by the air source heat pump heating and double glazing. Off-street parking for two cars and a good-sized rear garden suit family routines and outdoor play. The house sits on a small development of 38 homes in Gorefield village, a quiet rural setting close to Wisbech with good road links for commuting. Local schools rated Good are within easy reach.
A few practical points to note: this is a new-build plot completing Summer 2025, so possession is not immediate. The area records pockets of deprivation and the council tax band is not yet provided. The home is offered freehold, has low flood risk and benefits from fast broadband and excellent mobile signal — useful for remote working or study.
3 bedroom semi-detached house for sale in Back Road, Gorefield (4 Bedroom) , PE13 — £254,950 • 3 bed • 2 bath • 1076 ft²
3 bedroom detached bungalow for sale in Back Road, Gorefield (3 Bedroom) , PE13 — £429,950 • 3 bed • 3 bath • 1500 ft²
3 bedroom semi-detached house for sale in De-Havilland Road, Wisbech, PE13 — £200,000 • 3 bed • 2 bath • 798 ft²
3 bedroom semi-detached house for sale in De-Havilland Road, Wisbech, PE13 — £200,000 • 3 bed • 2 bath • 789 ft²
2 bedroom end of terrace house for sale in The Elms, Emneth, Wisbech, Norfolk, PE14 0DY, PE14 — £185,000 • 2 bed • 1 bath
3 bedroom semi-detached house for sale in De Havilland Road, Wisbech, Cambs, PE13 3AN, PE13 — £200,000 • 3 bed • 2 bath • 849 ft²






























































































































































