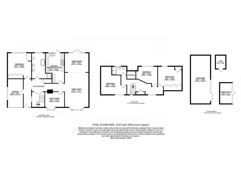
**Standout Features:**
- Four spacious bedrooms and two modern bathrooms
- Contemporary kitchen and large living spaces
- Peaceful location on a quiet single-track lane
- Generous rear garden with summer house, workshop, and shed
- Garage with internal access and utility plumbing
- Eco-friendly features including solar hot water system
- Excellent mobile signal and good local school options
**Potential Concerns:**
- Oil heating system may require upkeep.
- Slow broadband speeds may not suit remote work needs.
- Average crime rate; suitable for those wary of security.
Nestled in a tranquil setting along a picturesque single-track lane in Hemel Hempstead, this four-bedroom detached house invites you to embrace spacious living in a charming rural environment. Ideal for families or anyone seeking a serene lifestyle, the property boasts over 2,000 sq ft of well-appointed space, including two inviting reception rooms and a contemporary kitchen—perfect for gatherings or cozy evenings.
The expansive rear garden is a standout feature, showcasing a summer house, workshop, and storage shed that provide perfect versatility for hobbies or outdoor entertaining. Enjoy the flow of natural light in the welcoming entryway accented by modern finishes. Additional highlights include a garage with internal access, oil heating, and eco-friendly solar hot water to reduce energy costs.
With excellent mobile connectivity and a selection of reputable schools nearby, this property harmoniously blends rural charm with modern convenience. Consider the future potential for renovations or extensions, making this a unique opportunity that won't last long. Don’t miss out on your chance to own a piece of peaceful countryside living!
4 bedroom detached house for sale in High Street Green, Hemel Hempstead, HP2 — £975,000 • 4 bed • 3 bath • 2300 ft²
4 bedroom detached house for sale in Belswains Lane, Hemel Hempstead, HP3 — £760,000 • 4 bed • 2 bath • 1800 ft²
3 bedroom detached house for sale in Rabley Heath Road, Welwyn, AL6 — £1,500,000 • 3 bed • 3 bath • 3000 ft²
4 bedroom detached house for sale in Beechwood Park, Hemel Hempstead, Hertfordshire HP3 — £925,000 • 4 bed • 2 bath • 2073 ft²
4 bedroom detached house for sale in Staines Green, Hertford, SG14 — £1,500,000 • 4 bed • 3 bath • 3536 ft²
3 bedroom semi-detached house for sale in Leverstock Green Road, Hemel Hempstead, HP3 — £625,000 • 3 bed • 2 bath • 1105 ft²


















































































