Spacious period house with garden, parking and excellent schools nearby.
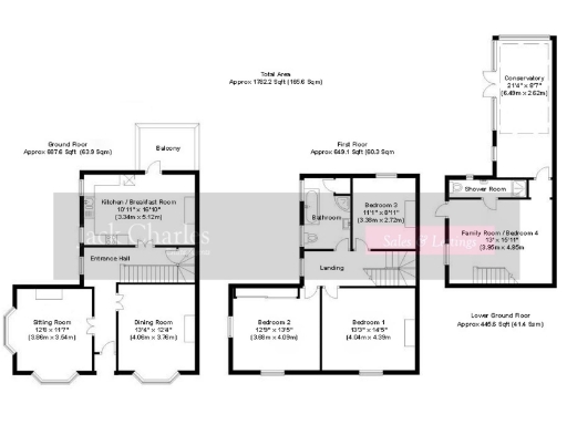
Approx 1,782 sq ft over three floors, flexible 3/4 bedroom layout
An imposing detached Victorian family home arranged over lower ground, ground and first floors, offering generous room proportions across approximately 1,782 sq ft. The house retains period character — bay windows, high ceilings and exposed red brick — and provides flexible living with 3/4 bedrooms, 3/4 reception rooms and a conservatory. The kitchen/breakfast room opens to a balcony with town and North Downs views, while a sizeable rear garden and off-street parking for two cars add practical family appeal.
The location is a major strength: Tonbridge town centre and High Street amenities are close by, with Tonbridge station offering fast commuter links to London. There are several highly regarded schools within easy reach, making the house well suited to families who want space and convenient transport and education options. The property is freehold and being sold with no onward chain, which simplifies a swift purchase.
There is scope to add value: previously approved (now lapsed) planning sought two-storey side and rear extensions, a car port and boundary alterations, indicating potential for enlargement subject to re-application. The house will suit buyers seeking a period home to modernise rather than a turnkey move-in — some upgrading and possible insulation works are likely given solid brick construction and unknown glazing/install dates.
Practical points to note: council tax is above average for the area and walls are original solid brick (assumed uninsulated). Flood risk is low and broadband and mobile signals are strong. Viewings are recommended to appreciate scale, period detail and the development potential on offer.
4 bedroom detached house for sale in Hadlow Road, Tonbridge, Kent, TN9 — £750,000 • 4 bed • 2 bath • 1685 ft²
4 bedroom detached house for sale in Pembury Road, Tonbridge, TN9 2HX, TN9 — £1,100,000 • 4 bed • 1 bath • 2540 ft²
3 bedroom semi-detached house for sale in Judd Road, Tonbridge, TN9 — £495,000 • 3 bed • 1 bath • 956 ft²
4 bedroom semi-detached house for sale in St. Marys Road, Tonbridge, Kent, TN9 — £525,000 • 4 bed • 2 bath • 1014 ft²
3 bedroom terraced house for sale in Springwell Road, Tonbridge, Kent, TN9 — £575,000 • 3 bed • 2 bath • 1549 ft²
5 bedroom semi-detached house for sale in The Drive, Tonbridge, Kent, TN9 — £950,000 • 5 bed • 2 bath • 2000 ft²


















































































































