Two-bedroom renovation project with garden, driveway and extension potential near schools and shopping..
- Vacant freehold two-bedroom semi-detached property
- Driveway for multiple vehicles and private rear garden
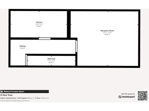
- Approximately 699 sq ft; average-sized rooms and layout
- Needs minor refurbishment throughout; budget for works
- Possible rear extension potential (subject to planning permission)
- Located in a very deprived area with above-average crime
- Fast broadband and excellent mobile signal throughout
- Sold at online auction on 18th December 2025; legal pack available
A vacant two-bedroom semi-detached house on a quiet cul-de-sac, offered freehold at auction. The property provides straightforward living accommodation: entrance hallway, lounge, kitchen, two bedrooms and an upstairs bathroom. Externally there is a rear garden and a driveway with space for multiple vehicles.
The house requires minor refurbishment throughout but is solidly proportioned (around 699 sqft) and offers clear scope to add value. Rear extension potential is noted (subject to planning) which will appeal to buyers able to invest time and budget. Fast broadband and excellent mobile signal suit modern needs.
Buyers should factor in the wider context: the postcode sits in a very deprived area with above-average crime rates, and neighbouring streets reflect mixed condition. The auction sale (Underthehammer online) means a quicker completion route, but purchasers must review the legal pack and budget for renovation costs and any planning applications.
For investors or hands-on owner-occupiers this is a low-entry opportunity close to local schools, shops and Merry Hill Shopping Centre. With sensible investment and planning, the property offers practical upside in a suburban location with good transport links.
2 bedroom semi-detached house for sale in 3,
Corbyns Hall Road, Brierley Hill, DY5 — £35,000 • 2 bed • 1 bath • 830 ft²
2 bedroom terraced house for sale in 95 Planet Road, Brierley Hill, DY5 — £20,000 • 2 bed • 1 bath
4 bedroom terraced house for sale in 132 Fenton Street, Brierley Hill, DY5 3HJ, DY5 — £25,000 • 4 bed • 1 bath • 1381 ft²
2 bedroom semi-detached house for sale in Newtown, Brockmoor, Brierley Hill, DY5 — £170,000 • 2 bed • 1 bath • 551 ft²
3 bedroom semi-detached house for sale in Nottingham Way, BRIERLEY HILL, DY5 1UH, DY5 — £210,000 • 3 bed • 1 bath
3 bedroom semi-detached house for sale in 44 Pine Green, Dudley, DY1 — £129,000 • 3 bed • 1 bath • 958 ft²


























































































