Large three-bed terrace with planning option for detached home on included plot.
Freehold Victorian end-terrace, 1,532 sq ft internal area
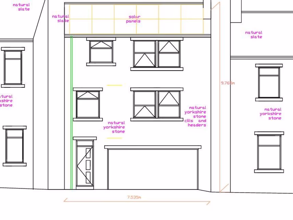
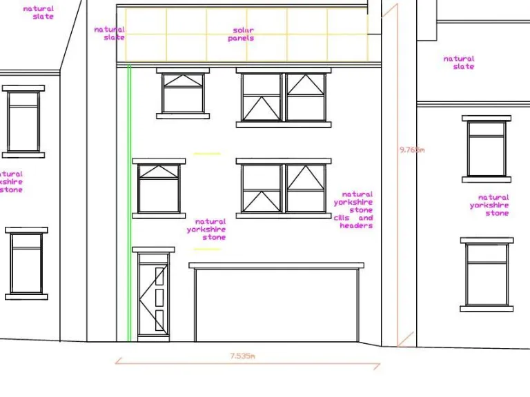
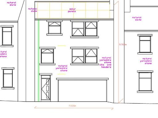
A deceptively spacious Victorian end-terrace on Piggott Street, offered freehold with a generous adjacent plot. The house provides three good reception rooms, three bedrooms and cellar/storage across 1,532 sq ft — room proportions uncommon for this terrace type. The interior is well presented with a modernised kitchen, period fireplaces and double glazing; move-in ready for buyers wanting immediate occupation.
The included side plot has an active planning application (ref 23-01297-FUL) for a detached three-bedroom house with integral garage. That planning application — sold as part of the title — creates genuine development upside for investors or owners seeking to extend, redevelop or create additional income, subject to planning approval and completion of the application process.
Practical points to note: the property has a single bathroom, sandstone walls likely without cavity insulation (as-built), an EPC rating of D and on-street parking only. The area scores as deprived with above-average crime levels — factors that will influence tenant demand, resale pricing and insurance. Buyers should commission their own surveys and check planning progress before committing.
This home will suit purchasers who want more internal space than typical terraces, and buyers comfortable with a nearby development opportunity. Investors looking for rental income or a small development play, and families wanting substantial living rooms and easy access to Brighouse amenities, should view to assess potential in person.
2 bedroom terraced house for sale in Piggott Street, Brighouse, HD6 — £119,000 • 2 bed • 1 bath • 391 ft²
3 bedroom end of terrace house for sale in Highfield Road, Brighouse, HD6 — £225,000 • 3 bed • 1 bath • 948 ft²
3 bedroom end of terrace house for sale in Bradford Road, Brighouse, West Yorkshire, HD6 — £150,000 • 3 bed • 1 bath • 1180 ft²
1 bedroom terraced house for sale in William Henry Street, Brighouse, HD6 — £107,000 • 1 bed • 1 bath • 728 ft²
3 bedroom semi-detached house for sale in Thornton Road, Brighouse, HD6 — £179,950 • 3 bed • 1 bath • 849 ft²
3 bedroom terraced house for sale in Sherburn Road, Brighouse, HD6 — £160,000 • 3 bed • 2 bath • 888 ft²


















































































