Grade II listed cottage with original exposed timbers and open fireplace
Large, private tiered rear garden with paved terrace and lawns
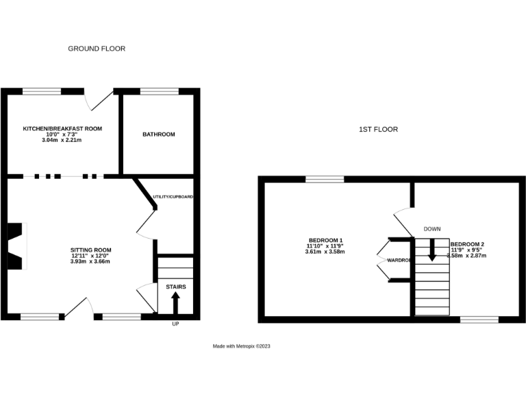
Compact overall size — approximately 476 sq ft, low ceilings
Sold Freehold and chain free — immediate completion possible
Listed status and conservation area restrict alterations and works
Small flying freehold and rear right of way affect title details
Electric heating; services noted as untested, EPC exempt
Close to village amenities, good broadband and excellent mobile signal
This Grade II listed, timber-framed cottage sits near the top of Shilling Street in historic Lavenham and offers immediate character: exposed beams, a brick open fireplace and low-eaved charm. The accommodation is compact (about 476 sq ft) with a cosy sitting room, kitchen/breakfast room, bathroom and two first-floor bedrooms. The rear garden is a standout feature — private, well-established and tiered for seating and lawn.
Important practical points are clear: the property is listed and in a conservation area, which will restrict alterations. A small flying freehold and a rear right of way affect the title. Heating is electric, services are untested and the building’s low ceilings and compact rooms suit a couple, single occupant or those seeking a character holiday let rather than a large family home.
Sold with no onward chain and freehold tenure, the cottage offers a rare opportunity to secure a period home in an affluent, low-crime village location close to shops, pubs and the primary school. Buyers should factor in listed-building consent for changes and potential maintenance associated with an older timber-framed property.
For someone looking to downsize into village life, buy a character holiday-let, or renovate sympathetically, this cottage delivers authentic historic charm and a generous private garden — but expect limits on extension and modernisation due to its listed status.
1 bedroom terraced house for sale in Lavenham, Sudbury, Suffolk, CO10 — £230,000 • 1 bed • 1 bath • 388 ft²
2 bedroom terraced house for sale in Prentice Street, Lavenham, Sudbury, CO10 — £450,000 • 2 bed • 1 bath • 1000 ft²
1 bedroom end of terrace house for sale in Lavenham, Sudbury, Suffolk, CO10 — £235,000 • 1 bed • 1 bath • 455 ft²
2 bedroom terraced house for sale in Lavenham, Sudbury, Suffolk, CO10 — £350,000 • 2 bed • 1 bath • 559 ft²
2 bedroom terraced house for sale in Church Street, Lavenham, Sudbury, Suffolk, CO10 — £280,000 • 2 bed • 1 bath • 530 ft²
2 bedroom terraced house for sale in High Street, Lavenham, Sudbury, Suffolk, CO10 — £385,000 • 2 bed • 1 bath • 639 ft²






















































































