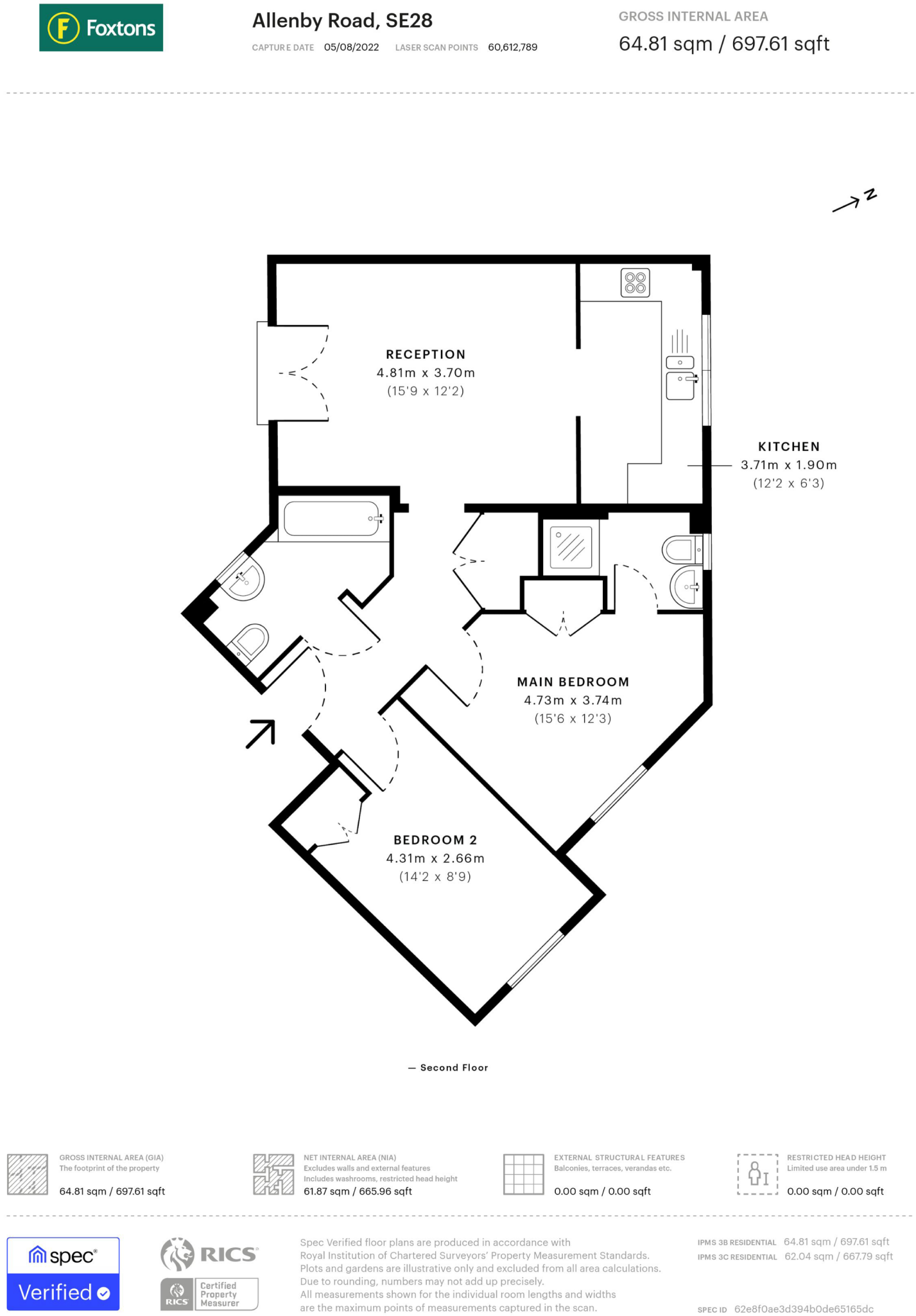
Bright modern flat with great transport links and usable living space.
2 double bedrooms with built-in wardrobes and principal ensuite shower room|Open-plan reception with dining space and balcony access|Modern fitted kitchen with integrated appliances and wooden finish|Approx 697 sq ft — average-sized flat, practical layout|Constructed 2003–2006; double glazing and mains gas central heating|Leasehold tenure — confirm lease length and service charges|Excellent transport: Elizabeth Line, Thames Clipper, Woolwich Arsenal DLR|Local area: mixed schools, higher measured deprivation locally
Set on the second floor beside the Royal Arsenal, this bright two-bedroom flat blends modern finishes with convenient transport links. The open-plan reception and fitted kitchen create an airy living space that opens onto a balcony, while two double bedrooms include built-in wardrobes for sensible storage. The principal bedroom benefits from an ensuite shower room, with a separate family bathroom providing convenience for guests.
Well connected to central London via the Elizabeth Line, Thames Clipper and Woolwich Arsenal DLR, the property suits first-time buyers and investors seeking easy commuting. The building was constructed in the early 2000s and has double glazing, mains gas heating and a practical timber-frame build. Local amenities, healthcare and a mix of primary and secondary schools are all within short reach.
Buyers should note the flat is leasehold and located in an area with higher measured deprivation; check lease length and service charges before offer. Crime levels are average and broadband and mobile signals are strong, making the home ready for modern working needs.
2 bedroom flat for sale in Hopton Road, Woolwich, London, SE18 — £450,000 • 2 bed • 2 bath • 725 ft²
2 bedroom apartment for sale in East Lodge, Pettacre Close, Thamesmead West, SE28 0PB, SE28 — £315,000 • 2 bed • 1 bath • 678 ft²
2 bedroom flat for sale in Hopton Road, Woolwich, London, SE18 — £550,000 • 2 bed • 2 bath • 765 ft²
2 bedroom flat for sale in Allenby Road, London, SE28 — £300,000 • 2 bed • 2 bath • 722 ft²
2 bedroom flat for sale in Building 50, Woolwich Riverside, London, SE18 — £515,000 • 2 bed • 2 bath • 672 ft²
2 bedroom flat for sale in Warehouse Court, Woolwich Riverside, London, SE18 — £520,000 • 2 bed • 2 bath • 710 ft²






























































































































