Three-bedroom energy-efficient home beside Holt Country Park, ideal for downsizers.
Hand-crafted flint front with traditional Norfolk character
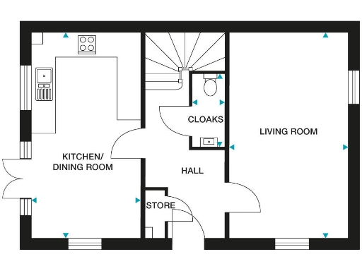
Set on a large plot beside Holt Country Park, this hand-crafted flint front new-build combines traditional Norfolk character with modern, energy-efficient systems. The Newbury offers three bedrooms (master with en-suite), a generous living room and a spacious kitchen/dining area with French doors opening to a partly walled garden. A single garage and driveway provide private parking.
Built with underfloor heating to the ground floor and an air source heat pump, the house is designed for low running costs and minimal maintenance compared with older stock. The plot is described as huge, giving scope for private outdoor living and garden landscaping. A show home is available to view on site.
Practical points to note: the property is freehold and marketed as suitable for retirement living, but the wider area records above-average crime and local deprivation indicators. Broadband speeds are reported as slow, though mobile signal is excellent. The house is part of a small high-quality development adjacent to 100 acres of protected woodland and lies within easy driving distance of the north Norfolk coast and local schools.
Overall this home will suit buyers seeking a low-maintenance, energy-efficient 3-bedroom on a large plot close to green space — particularly downsizers or those moving to the area for a quieter, park-adjacent setting. Buyers who rely on very fast wired broadband or who prioritise the lowest-crime neighbourhoods should factor those constraints into their decision.
4 bedroom detached house for sale in Beresford Road,
Holt,
Norfolk,
NR25 6EW, NR25 — £675,000 • 4 bed • 1 bath • 1659 ft²
3 bedroom semi-detached house for sale in Beresford Road,
Holt,
Norfolk,
NR25 6EW, NR25 — £415,000 • 3 bed • 1 bath • 1205 ft²
2 bedroom semi-detached house for sale in Beresford Road,
Holt,
Norfolk,
NR25 6EW, NR25 — £295,000 • 2 bed • 1 bath • 790 ft²
4 bedroom detached house for sale in Beresford Road,
Holt,
Norfolk,
NR25 6EW, NR25 — £575,000 • 4 bed • 1 bath • 1438 ft²
3 bedroom detached house for sale in Beresford Road, Holt, NR25 — £435,000 • 3 bed • 1 bath • 1016 ft²
3 bedroom semi-detached house for sale in Beresford Road,
Holt,
Norfolk,
NR25 6EW, NR25 — £325,000 • 3 bed • 1 bath • 897 ft²






























































