Period investment property producing income, sold with existing tenancies..
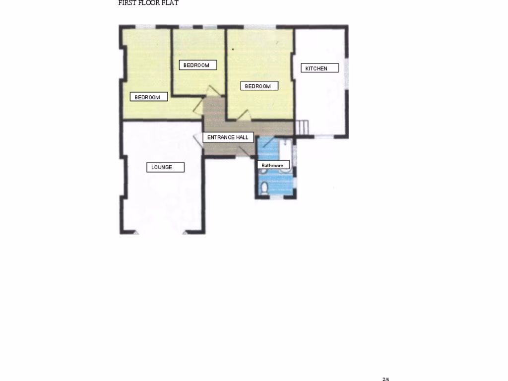
- Arranged as three self-contained flats, total eight bedrooms
A substantial three-storey Victorian semi-detached house arranged as three self-contained flats, offered freehold and currently producing a reported annual income of £18,120. The building retains period character — bay windows, half-timbered gable and high ceilings — and sits on a decent plot with narrow frontage and one off-street parking space. Broadband is fast and mobile signal excellent, with no recorded flood risk.
The property is offered subject to existing tenancies and will interest investors and property speculators who can manage tenanted stock. Flats are large for lettings (Flat 1: 86 sq m, Flat 2: 82 sq m, Flat 3: 80 sq m) and individual EPCs range from D64, D61 down to E54; council tax bands A and B. Built before 1900 with solid brick walls likely without cavity insulation, the building will benefit from targeted improvement works to reduce running costs and enhance rental value.
Condition is lived-in and dated in places — redecoration, modernization of kitchens/bathrooms, and possible energy upgrades will be needed to maximise returns. Note the area records high crime levels and very high deprivation, factors that affect tenant profiles and achievable rents. This is a clear investment/refurbishment opportunity: purchase for steady current income or add value through refurbishment and re-gearing the tenancies.
5 bedroom house for sale in Mostyn Road, Colwyn Bay, Conwy, LL29 — £250,000 • 5 bed • 3 bath • 811 ft²
6 bedroom semi-detached house for sale in Woodland Road East, Colwyn Bay, Conwy, LL29 — £125,000 • 6 bed • 2 bath • 2330 ft²
3 bedroom flat for sale in Conway Road, Llandudno, Conwy, LL30 — £350,000 • 3 bed • 3 bath • 1893 ft²
6 bedroom semi-detached house for sale in Caroline Road, Llandudno, Conwy, LL30 — £335,000 • 6 bed • 1 bath • 775 ft²
6 bedroom block of apartments for sale in Caroline Road, Llandudno, LL30 — £300,000 • 6 bed • 6 bath
4 bedroom flat for sale in Greenfield Road, Colwyn Bay, LL29 — £159,950 • 4 bed • 3 bath • 722 ft²






























































