Compact, move-in-ready two-bedroom home with private gardens and fast links to central London.
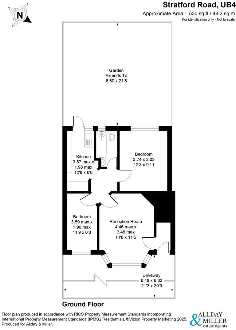
Ground-floor two-bedroom maisonette with private front and rear gardens
Short drive to Hayes & Harlington Elizabeth Line station
Off-street parking; no communal service charge
99-year lease remaining; ground rent £100 per year
Presented in good condition; neutral décor and laminate flooring
Solid brick walls with likely no insulation; glazing pre-2002
Exterior shows peeling render and weathering needing cosmetic work
Local crime levels above average — consider security measures
A compact two-bedroom ground-floor maisonette offering private front and rear gardens and off-street parking. The home is presented in good, move-in-ready condition with a bright bay-front reception room, a fitted kitchen and neutral finishes throughout — ideal for buyers wanting a manageable first property or a straightforward rental let.
Location is a strong practical draw: short drive to Hayes & Harlington Elizabeth Line station, easy access to the A40/M40 and local amenities including Lombardy Retail Park. Several well-rated primary and secondary schools lie within easy reach, making the property suitable for families with young children or for buy-to-let landlords targeting school catchments.
Notable facts to consider: the property is leasehold (99 years remaining) with a small ground rent of £100 and no service charge. The building dates from the 1930s–40s with solid brick walls (likely no cavity insulation) and double glazing installed before 2002; some external render shows weathering and would benefit from cosmetic attention. Crime levels in the immediate area are above average — buyers should factor this into their plans.
Overall this is a modestly sized, well-located maisonette that balances ready-to-live-in condition with scope for value-adding cosmetic updates and insulating improvements. Practical commuting links and local schools give it clear appeal to first-time buyers and investors seeking a low-management property.
2 bedroom maisonette for sale in Botwell Lane, Hayes, UB3 — £325,000 • 2 bed • 1 bath • 522 ft²
2 bedroom maisonette for sale in Willow Tree Lane, Hayes, UB4 — £300,000 • 2 bed • 1 bath • 584 ft²
2 bedroom maisonette for sale in Silverdale Gardens, Hayes, UB3 — £335,000 • 2 bed • 1 bath • 437 ft²
2 bedroom maisonette for sale in Stratford Road, Hayes, UB4 — £304,950 • 2 bed • 1 bath • 603 ft²
2 bedroom maisonette for sale in Nestles Avenue, Hayes, UB3 — £305,000 • 2 bed • 1 bath • 636 ft²
2 bedroom maisonette for sale in Tudor Square, Hayes, UB3 — £280,000 • 2 bed • 1 bath • 402 ft²






















































