Spacious six-bedroom listed farmhouse with large gardens near Ashford.
Grade II listed Georgian farmhouse (restrictions apply)
Approximately half-acre mature gardens and lawned areas
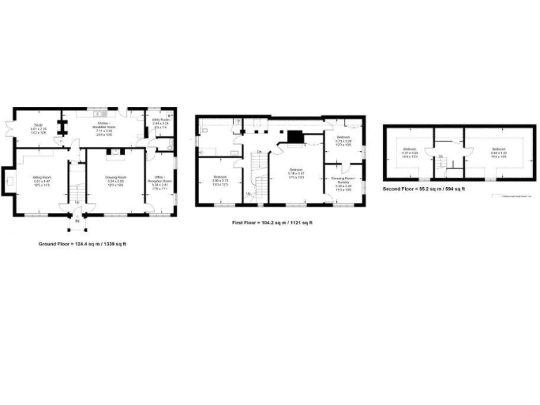
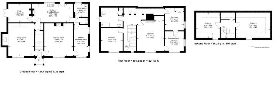
Six bedrooms across three floors — versatile family space
Newly renovated interiors while retaining period features
Single family bathroom for six bedrooms — may need updating
Off-street parking for multiple vehicles via private driveway
No flood risk; situated in a low-crime village setting
Very large plot with potential for garden projects (subject to consent)
Park Farmhouse is a rare, fully renovated Grade II listed Georgian farmhouse set in around half an acre of mature garden in Shadoxhurst. The house retains high ceilings, large period windows and original brickwork while providing extensive living space across three floors — six bedrooms offer flexibility for families, home offices or guests.
The principal reception rooms include a large kitchen/breakfast room, two formal reception rooms, a study and a cosy living room with a wood-burning stove. Recent renovation work has upgraded the interiors and bathroom to modern standards, while many period features have been carefully preserved.
Buyers should note the Grade II listing: external and some internal alterations will be restricted and will require listed-building consent, which can add time and cost to future changes. The property currently has a single family bathroom for six bedrooms, which may require adaptation for some household needs.
This home suits a family seeking a substantial country house within easy reach of Ashford’s services and transport links, or buyers looking for a characterful primary residence with generous gardens and parking. Low crime, no flood risk and a very large plot add practical appeal, but planning constraints and the single bathroom are important considerations.
3 bedroom house for sale in The Street, Borden, Sittingbourne, Kent, ME9 — £650,000 • 3 bed • 2 bath • 2351 ft²
5 bedroom detached house for sale in Lees Road, Brabourne Lees, Ashford, Kent, TN25 — £960,000 • 5 bed • 3 bath • 3681 ft²
4 bedroom detached house for sale in Church Lane, Shadoxhurst, Ashford, Kent, TN26 — £900,000 • 4 bed • 3 bath • 2421 ft²
5 bedroom detached house for sale in Park Farm Close, Shadoxhurst, Ashford, Kent, TN26 — £650,000 • 5 bed • 2 bath • 2000 ft²
5 bedroom detached house for sale in Badlesmere, Faversham, ME13 — £1,500,000 • 5 bed • 4 bath • 4064 ft²
7 bedroom detached house for sale in Marden Road, Cranbrook, Kent, TN17 — £1,600,000 • 7 bed • 4 bath • 4324 ft²










































































































































































































































