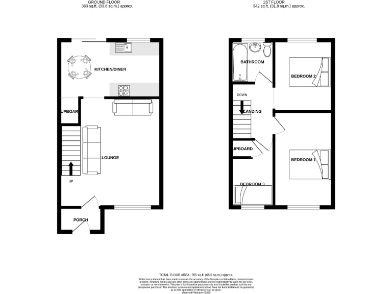
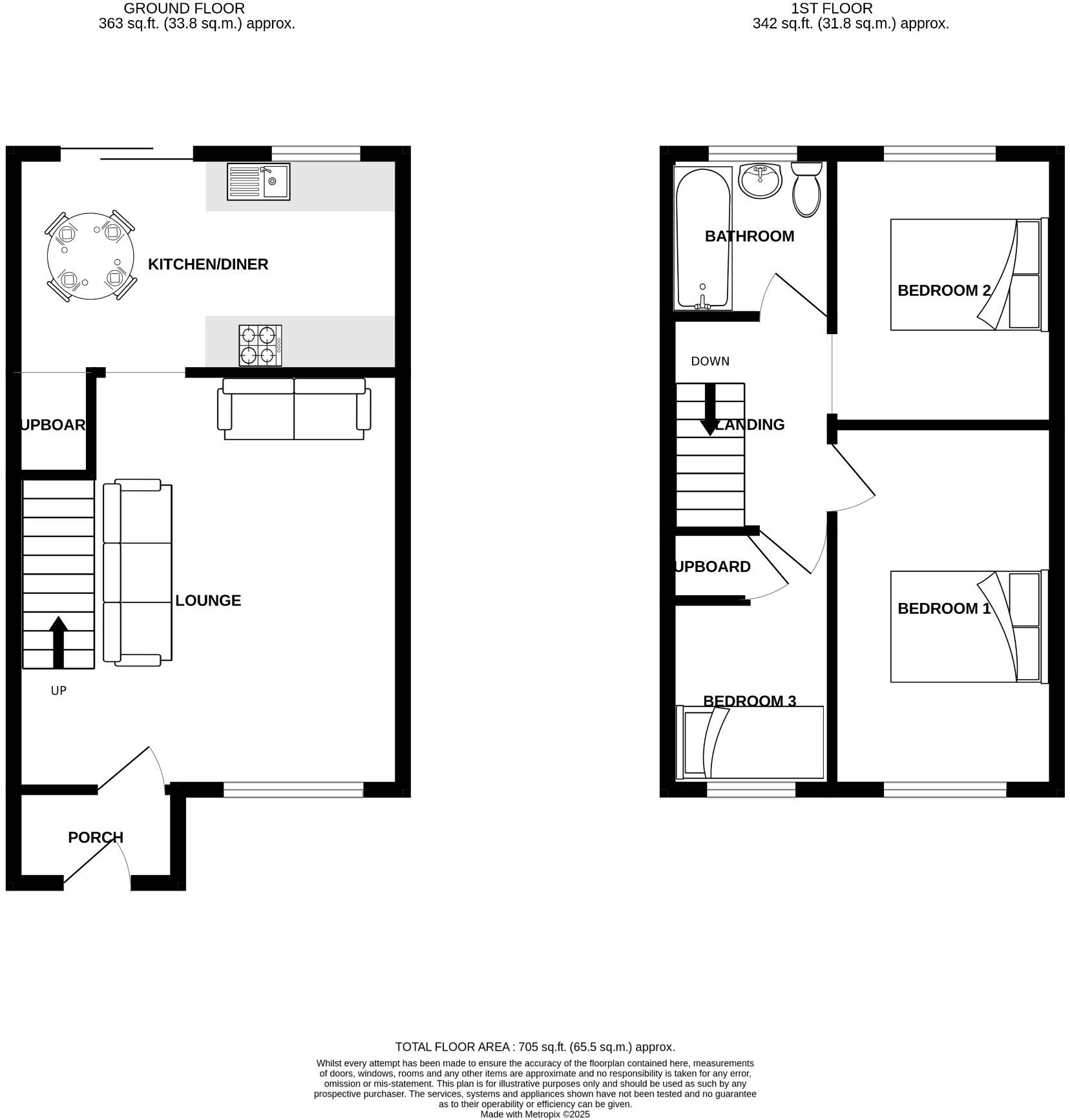
- Three bedrooms within compact 705 sq ft footprint
- South-facing low-maintenance rear garden with paved patio
- Detached garage and artist-in-concrete driveway
- Contemporary kitchen and modern bathroom installed
- UPVC double glazing and combination boiler present
- Third bedroom and bathroom are small, limited space
- Freehold, Council Tax Band B, very low local crime
- Buyers should verify gas, electrical and heating systems
Set at the end of a peaceful cul-de-sac in Great Sutton, this three-bedroom semi delivers comfortable, well-presented living across a compact 705 sq ft footprint. The lounge is generous for the house size and the contemporary kitchen-diner opens to a south-facing rear garden with paved patio and low-maintenance artificial lawn — ideal for families wanting outdoor space without heavy upkeep.
Practical extras include a detached garage, artist-in-concrete driveway, UPVC double glazing and a combination boiler. The property is freehold with a low Council Tax Band B and sits in a very low-crime, affluent neighbourhood with excellent mobile signal and fast broadband — good for home working and family connectivity.
Room sizes are modest: the third bedroom and bathroom are small, and overall the house is best suited to buyers seeking a manageable family home, downsizers or first-time buyers wanting a turn-key property with scope to personalise. Building services and appliances have not been tested; purchasers should arrange their own checks. Sold at a competitive price for the area, it offers sensible value with straightforward maintenance needs.
3 bedroom semi-detached house for sale in Humber Road, Great Sutton, Ellesmere Port, Cheshire, CH66 — £199,995 • 3 bed • 1 bath • 711 ft²
3 bedroom semi-detached house for sale in Kendal Drive, Great Sutton, CH66 — £250,000 • 3 bed • 1 bath • 878 ft²
3 bedroom semi-detached house for sale in Baker Drive, Great Sutton, Ellesmere Port, Cheshire, CH66 — £240,000 • 3 bed • 1 bath • 795 ft²
3 bedroom semi-detached house for sale in Hope Farm Road, Great Sutton, CH66 — £245,000 • 3 bed • 1 bath • 865 ft²
3 bedroom semi-detached house for sale in Kendal Drive, Great Sutton, CH66 — £235,000 • 3 bed • 1 bath • 1084 ft²
3 bedroom terraced house for sale in Horstone Crescent, Great Sutton, CH66 — £225,000 • 3 bed • 1 bath • 1146 ft²


































































